Extensive country house with pool and huge garden — renovation opportunity for a family buyer.
Six double bedrooms, each with en suite bathroom
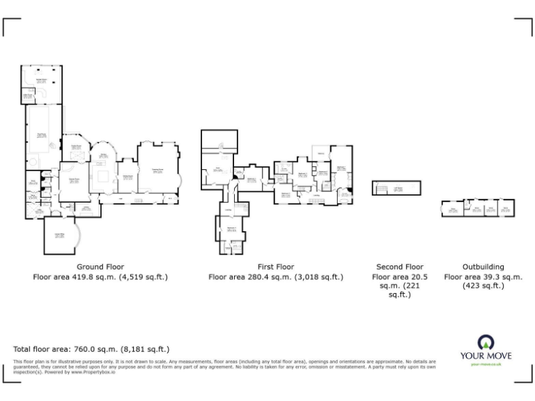
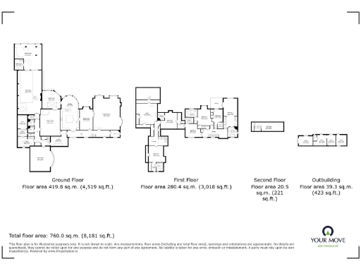
Approximately 7,758 sq ft living space across multiple floors
Private indoor swimming pool and hot tub, plus gym area
Seven reception rooms including a home office and dining kitchen
Large mature garden, 0.91-acre plot with outbuildings and garage
Requires renovation; EPC rating G and likely energy upgrades needed
Oil-fired boiler and underfloor heating; cavity walls assumed uninsulated
Chain free sale; rural location with average broadband and mobile
Set on about 0.91 acres within the South Downs National Park, this substantial detached period house offers enormous space and scope for a family seeking a bespoke country home. At approximately 7,758 sq ft the property includes seven reception rooms, six double bedrooms all with en suite bathrooms, a private indoor pool and hot tub, and a dedicated office — versatile rooms for family life, leisure and home working.
The house requires renovation and updating throughout, presenting a clear opportunity to redesign interiors and improve energy performance. The EPC rating is G; heating is oil-fired with underfloor systems, and the cavity walls are assumed uninsulated. These are material considerations that will affect running costs and renovation scope.
Outside, mature gardens, direct kitchen access and garage parking suit families who value outdoor space and privacy. The plot’s size and outbuildings offer potential for extension or landscaping (subject to planning). The property is chain free, easing timescales for a purchaser prepared to undertake the works.
Practical notes: broadband and mobile signal are average in this rural setting, council tax is described as quite expensive, and the property was built c.1900–1929 so buyers should factor in period maintenance. For those seeking an expansive home in a tranquil, affluent countryside location, this house provides a rare blank-canvas opportunity.
4 bedroom detached house for sale in Ingoldfield Lane, Newtown, PO17 — £1,250,000 • 4 bed • 3 bath • 4523 ft²
5 bedroom detached house for sale in Chapel Road, Meonstoke, Southampton, Hampshire, SO32 — £1,800,000 • 5 bed • 2 bath • 3700 ft²
7 bedroom detached house for sale in Chalk Hill, Soberton, SO32 — £1,500,000 • 7 bed • 4 bath • 4414 ft²
4 bedroom detached house for sale in South Drive, Winchester, SO22 — £1,950,000 • 4 bed • 3 bath • 2311 ft²
4 bedroom detached house for sale in Hoads Hill, Wickham, PO17 — £850,000 • 4 bed • 2 bath • 2786 ft²
5 bedroom detached house for sale in Chapel Road, Meonstoke, Hampshire, SO32 — £1,800,000 • 5 bed • 3 bath • 3688 ft²














































































