Extensively renovated 4-bedroom detached with huge parking and development potential (STPP)..
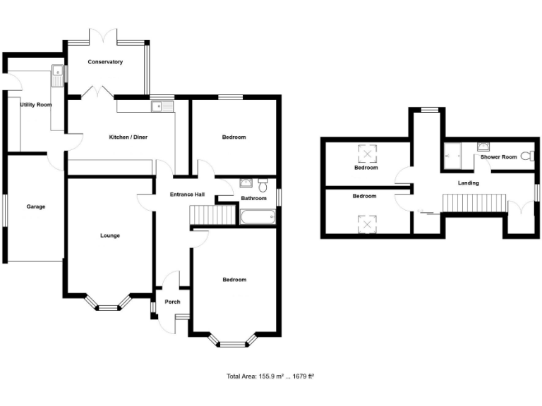
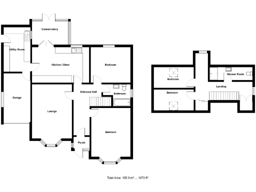
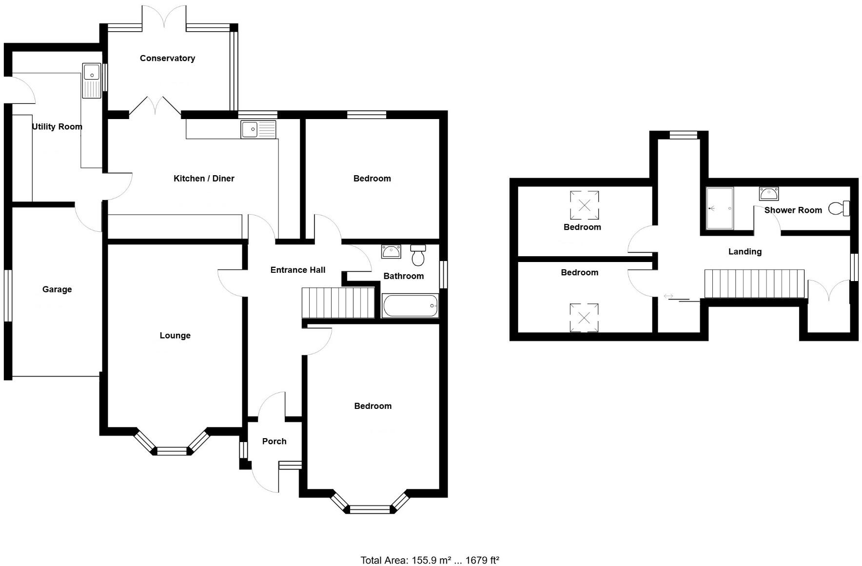
Four double bedrooms across two storeys
Set back from Norwich Road in Barham, this extensively renovated 1930s detached house offers spacious, flexible family living across two storeys. The house is presented in near-new condition with a contemporary 17' kitchen, large utility, conservatory and generous reception room with feature fireplace. Two double bedrooms and a newly fitted bathroom are on the ground floor, with two further double bedrooms and a shower room upstairs — ideal for multigenerational living or home working.
The property sits on a notably large plot with extensive gravel parking for up to 15 cars and direct access to a single garage. A secluded rear garden leads to an additional enclosed parcel of land with vehicular access, providing genuine scope to extend the garden or explore a separate dwelling, annex or studio (subject to planning consent).
Practical strengths include double glazing throughout, gas central heating, an insulated loft and modern fixtures. Nearby Claydon and Ipswich provide schools, shops and transport links including the A14 and Ipswich rail to London. This location suits families seeking space, easy commuting and village amenities.
Buyers should note the additional parcel’s development potential is subject to planning permission and any change will require consents. The property dates from the 1930s and, while recently remodelled, cavity walls are assumed to lack built-in insulation — further insulation upgrades may be desirable for long-term running costs. Internal inspection is recommended to appreciate the scale and finish on offer.
4 bedroom detached bungalow for sale in Norwich Road, Barham, Ipswich, Suffolk, IP6 — £550,000 • 4 bed • 2 bath • 1679 ft²
4 bedroom detached house for sale in Woolner Close, Barham, Ipswich, Suffolk, IP6 — £425,000 • 4 bed • 2 bath • 1398 ft²
3 bedroom detached house for sale in Norwich Road, Claydon, Ipswich, Suffolk, IP6 — £260,000 • 3 bed • 1 bath • 1066 ft²
2 bedroom terraced house for sale in Millers Court, Barham, Ipswich, Suffolk, IP6 — £215,000 • 2 bed • 1 bath • 576 ft²
3 bedroom detached house for sale in Old Rectory Close, Barham, Ipswich, Suffolk, IP6 — £385,000 • 3 bed • 1 bath • 982 ft²
4 bedroom detached house for sale in Hazel Rise, Claydon, Ipswich, Suffolk, IP6 — £535,000 • 4 bed • 2 bath • 1657 ft²










































































