Extended four-bedroom house with large garden and good school links.
Superb 28' sitting room with patio doors to garden
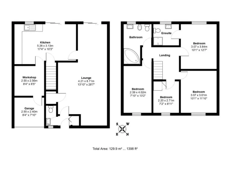
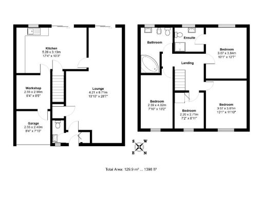
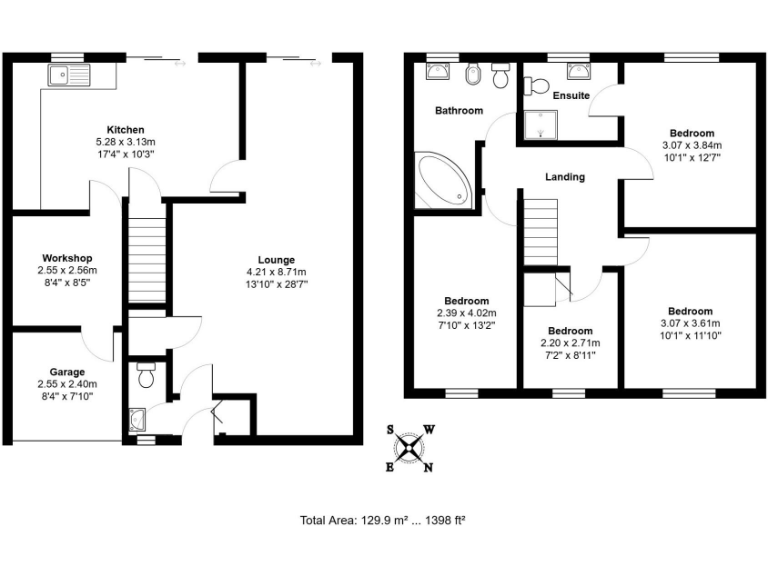
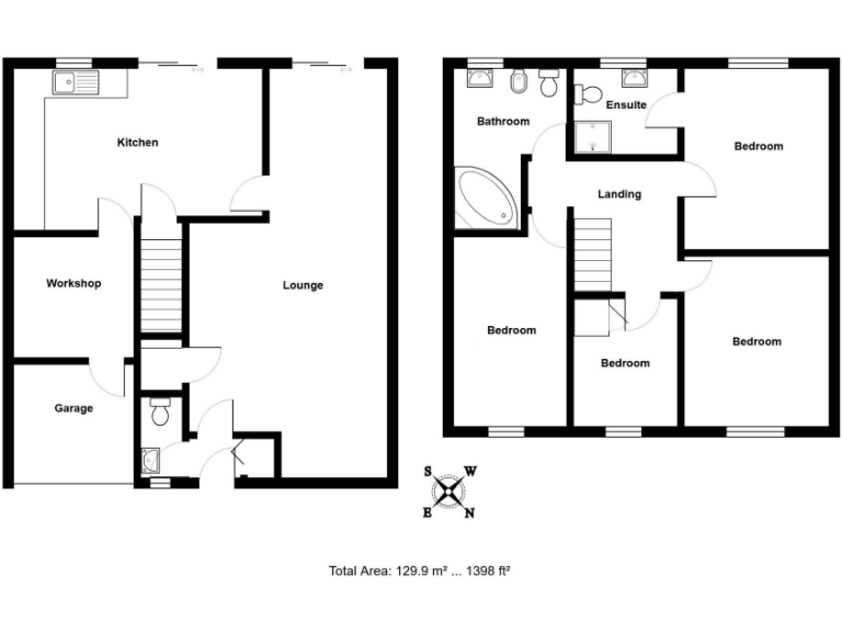
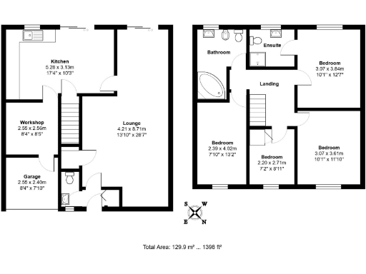
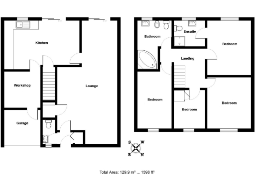
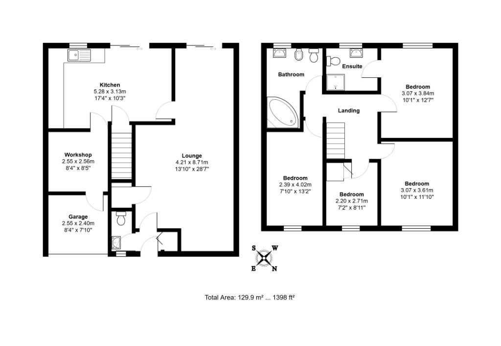
This extended four-bedroom detached house in a quiet Barham cul-de-sac is designed for family living. The ground floor offers a superb 28' sitting room and an impressive 17' kitchen/dining room, both with patio doors that open onto a generous rear garden — ideal for children and family entertaining. The property benefits from gas central heating, solar panels and an Energy Rating of B, helping running costs.
Upstairs a galleried landing leads to four bedrooms, including a master with en-suite, and a large family bathroom with a corner jacuzzi bath. Practical features include a ground-floor cloakroom, built-in storage, loft access and a workshop/garage that provides useful utility space and potential for adaptation.
The house occupies a convenient position within walking distance of Barham/Claydon village amenities and well-regarded schools, with Ipswich about three miles away and easy access to the A14. The plot is set back with a block-paved drive and a fenced rear garden with patio, lawn and powered timber shed — a private outdoor space for family life.
A few points to note: the garage has been sub-divided which reduces single-car storage capacity and may need reversing for full garage use. The PVC double glazing was installed before 2002, so some window upgrading might be considered over time. Broadband speeds are average for the area, and while the accommodation is well planned, some buyers may want to modernise cosmetic fittings to personal taste.
4 bedroom detached house for sale in Norwich Road, Barham, Ipswich, Suffolk, IP6 — £550,000 • 4 bed • 2 bath • 1679 ft²
4 bedroom detached house for sale in Coopers Way, Barham, IP6 — £400,000 • 4 bed • 2 bath • 1332 ft²
4 bedroom detached bungalow for sale in Norwich Road, Barham, Ipswich, Suffolk, IP6 — £550,000 • 4 bed • 2 bath • 1679 ft²
2 bedroom semi-detached house for sale in Coopers Way, Barham, Ipswich, Suffolk, IP6 — £200,000 • 2 bed • 1 bath • 582 ft²
2 bedroom terraced house for sale in Millers Court, Barham, Ipswich, Suffolk, IP6 — £215,000 • 2 bed • 1 bath • 576 ft²
5 bedroom detached house for sale in Barham, Ipswich, IP6 — £675,000 • 5 bed • 3 bath • 2795 ft²


































































