Three-bed detached, secluded garden, garage and no onward chain.
Three bedrooms with built-in wardrobes
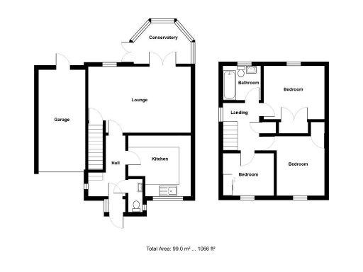
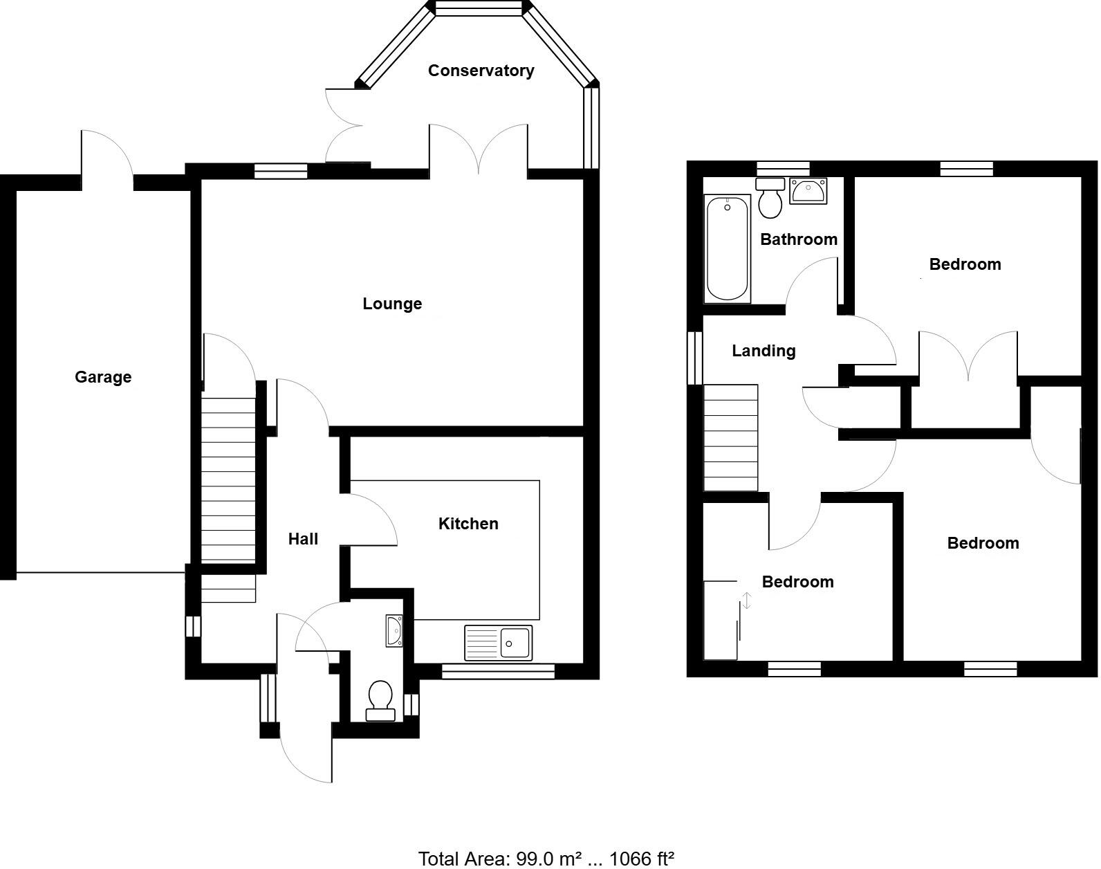
This three-bedroom detached family home sits in the heart of Claydon within easy walking distance of shops, schools and local services. The house offers a generous sitting room with sliding doors into a conservatory that opens onto a secluded, well-established rear garden — ideal for quiet outdoor living and gardening. An 18' garage and gravel drive provide convenient parking and storage.
The interior is liveable but requires cosmetic updating throughout; built-in wardrobes in all three bedrooms and a useful understairs storage cupboard reduce immediate storage needs. Double glazing was installed after 2002 and the property is gas-heated via a boiler and radiators. Sold with no onward chain, it will suit buyers who want to move in and gradually personalise, or investors seeking refurbishment potential.
Buyers should note the property requires renovation work to modernise finishes and possibly improve insulation: the walls are solid brick with no insulation noted (assumed). There is a single family bathroom and only one WC on the ground floor, which may be a limitation for larger families. Overall, the home combines a convenient village location, off-street parking and private garden with straightforward scope for improvement.
3 bedroom semi-detached house for sale in Thornhill Road, Claydon, Ipswich, Suffolk, IP6 — £290,000 • 3 bed • 2 bath • 1129 ft²
3 bedroom semi-detached bungalow for sale in Thornhill Road, Claydon, IP6 — £270,000 • 3 bed • 1 bath • 2841 ft²
3 bedroom terraced house for sale in Norwich Road, Claydon, Ipswich, Suffolk, IP6 — £239,995 • 3 bed • 1 bath • 915 ft²
2 bedroom semi-detached house for sale in Coopers Way, Barham, Ipswich, Suffolk, IP6 — £215,000 • 2 bed • 1 bath • 582 ft²
3 bedroom detached bungalow for sale in Phillipps Road, Barham, Ipswich, Suffolk, IP6 — £295,000 • 3 bed • 1 bath • 579 ft²
4 bedroom detached house for sale in Woolner Close, Barham, Ipswich, Suffolk, IP6 — £425,000 • 4 bed • 2 bath • 1398 ft²






















































