Ready-to-move luxury park home for over-50s — modern, low-maintenance living near the River Hamble..
Brand-new, fully furnished luxury park home
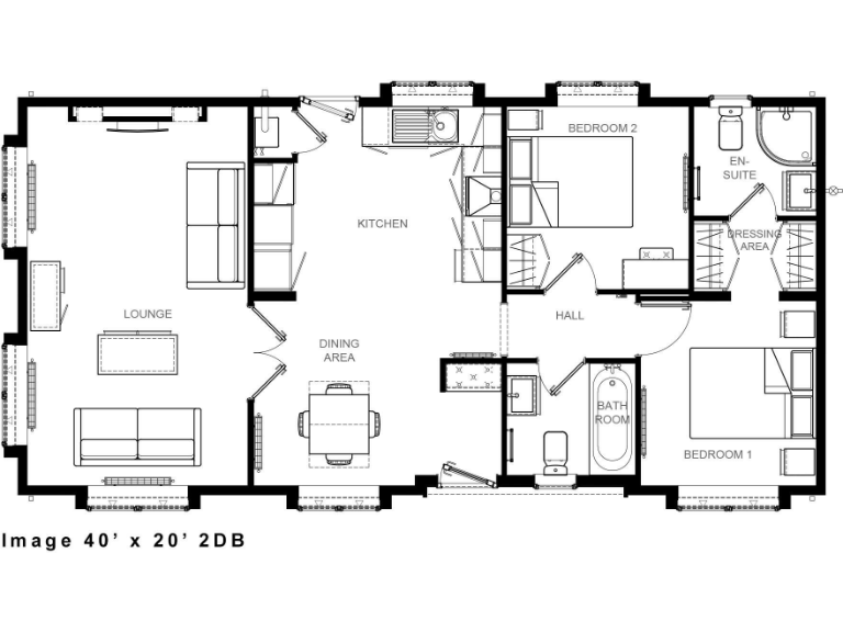
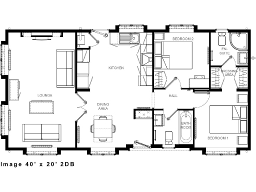
Two double bedrooms and two bathrooms, single-level layout
High-spec kitchen with integrated appliances and modern finishes
Exclusive over-50s residential park; pets considered (one cat or dog)
Virtual freehold — park home not mortgageable in the usual way
Site fee £280/month (c. £3,360 pa); reviewed annually (CPI linked)
Council Tax Band A — very cheap; broadband speeds reported as slow
Large driveway and sizeable plot; low-maintenance exterior finish
This brand-new, fully furnished 44'x20' park home offers low-maintenance retirement living in a mature residential park near the River Hamble. The interior has a modern kitchen with integrated appliances, generous living and dining space, two double bedrooms and two bathrooms — designed for comfortable, single-level living.
The park is exclusively for the over 50s and allows one cat or one dog, making it suitable for downsizers seeking community facilities and nearby amenities. Local shops, a library, health centre and regular transport links to Southampton are within easy reach; leisure options include sailing, golf and swimming locally.
Practical considerations are straightforward but important: the property is sold as a virtual freehold park home and is not mortgageable in the usual way. Annual site costs are significant — a site fee of £280 per month (c. £3,360 pa) — and fees are reviewed annually in line with CPI. Prospective buyers should check park rules, the Mobile Homes Act 2013 implications, and seek legal advice before purchase.
For buyers seeking a ready-to-move-into, high-specification retirement home with minimal upkeep and good local amenities, this home represents strong convenience and lifestyle value. Those prioritising mortgage finance or the lowest ongoing costs should factor the pitch fee and virtual freehold status into their decision.
2 bedroom park home for sale in Southampton, Hampshire, SO31 — £269,000 • 2 bed • 2 bath • 800 ft²
1 bedroom park home for sale in Southampton, Hampshire, SO45 — £169,000 • 1 bed • 1 bath • 418 ft²
1 bedroom park home for sale in Southampton, Hampshire, SO45 — £159,000 • 1 bed • 1 bath • 400 ft²
2 bedroom detached bungalow for sale in Hamble Park, Warsash, SO31 — £315,000 • 2 bed • 2 bath • 880 ft²
2 bedroom park home for sale in Whitehaven Park, Chapel Lane, Langley, Southampton, SO45 — £199,995 • 2 bed • 1 bath • 544 ft²
2 bedroom detached bungalow for sale in Hamble Park, Warsash, SO31 — £299,500 • 2 bed • 2 bath • 733 ft²






































































































