Compact, modern retirement home with picturesque New Forest setting and part-exchange available.
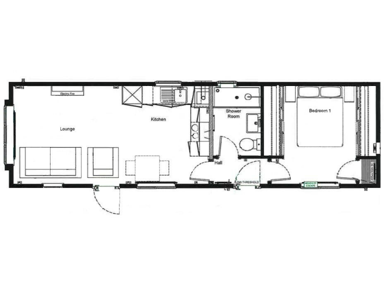
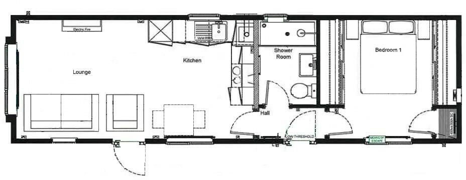
Brand-new, fully furnished 38'x11' park home
This brand-new, fully furnished 38'x11' park home offers easy, low-maintenance retirement living in a tucked-away New Forest setting. The open-plan living and kitchen area, double bedroom and contemporary finishes make the layout simple and practical for one or two people.
The park sits in a semi-rural village location with links to the M27, local shops in Marchwood and nearby leisure attractions including the New Forest and Southampton. Off-street parking and a small fenced garden add convenience; the community is for over-50s and described as welcoming and like-minded.
Important practical points: the home sits on a leased pitch (virtual freehold) so these units are generally not mortgageable and buyers should consult a solicitor. Site fees are currently £294/month and the stated ground rent is £3,528 per year — a significant ongoing cost. Manufacturer’s show-home images may not exactly match the finished unit and the overall internal area is compact (approx. 418 sq ft).
This property suits downsizers seeking a modern, ready-to-use retirement base with low day-to-day maintenance and good access to countryside amenities. It will appeal to buyers prioritising location and community over internal space, provided they accept the annual site charges and tenure arrangements.
1 bedroom park home for sale in Southampton, Hampshire, SO45 — £159,000 • 1 bed • 1 bath • 400 ft²
2 bedroom park home for sale in Southampton, Hampshire, SO45 — £270,000 • 2 bed • 2 bath • 800 ft²
2 bedroom park home for sale in Whitehaven Park, Chapel Lane, Langley, Southampton, SO45 — £199,995 • 2 bed • 1 bath • 544 ft²
2 bedroom park home for sale in The Residence, New Forest Park, Blackfield, Southampton, Hampshire, SO45 1XP, SO45 — £270,000 • 2 bed • 2 bath
2 bedroom park home for sale in Southampton, Hampshire, SO31 — £285,000 • 2 bed • 2 bath • 880 ft²
2 bedroom park home for sale in Chandler's Ford, Hampshire, SO52 — £250,000 • 2 bed • 2 bath • 800 ft²


















































































