Low-maintenance two-bed retirement home with part-exchange available..
Brand-new, fully furnished 40'x20' park home
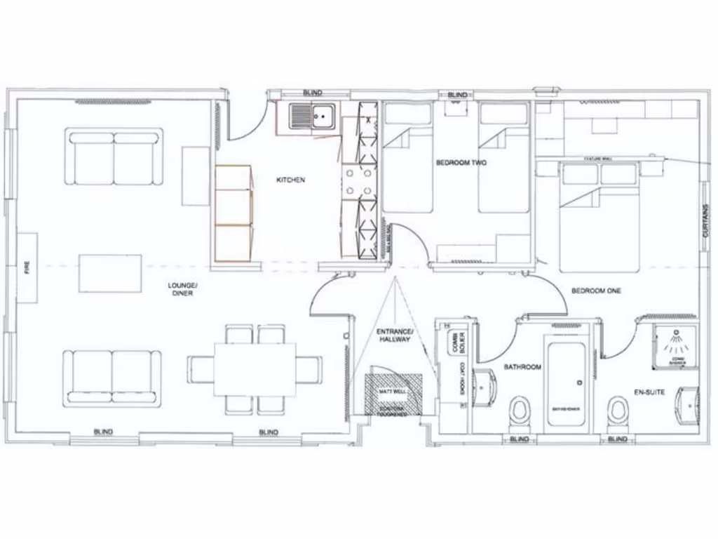
This brand-new, fully furnished 40'x20' park home offers straightforward, low-maintenance retirement living in a well-established residential park near the River Hamble. The bright open-plan living space, modern fitted kitchen and two double bedrooms make this bungalow-style home ready to move into. Pets are considered (one cat or one dog), and local shops, health services and leisure facilities are within easy reach.
The park is exclusively for the over-50s and benefits from a friendly community atmosphere, nearby sports facilities and good road and rail links to Southampton and beyond. The home includes mains gas central heating, double glazing and a brick skirt with paths and steps included in the price. Council Tax is low (Band A), and there is no local flooding risk.
Important practical points: the property is sold as a park home on a Virtual Freehold arrangement, which typically cannot be mortgaged — buyers should seek independent legal advice. Current site fees are £280 per month and the stated ground rent is £3,360 per year, which is high and reviewed annually in line with CPI. Photos may be of a manufacturer’s show model and some specifications or layouts on-site may differ.
Part-exchange is available for a quicker sale. This home will suit someone seeking a modern, ready-to-live retirement property with easy upkeep and community living, provided they are comfortable with park tenure, ongoing pitch fees and potential broadband limitations.
2 bedroom park home for sale in Southampton, Hampshire, SO31 — £285,000 • 2 bed • 2 bath • 880 ft²
1 bedroom park home for sale in Southampton, Hampshire, SO45 — £169,000 • 1 bed • 1 bath • 418 ft²
1 bedroom park home for sale in Southampton, Hampshire, SO45 — £159,000 • 1 bed • 1 bath • 400 ft²
2 bedroom detached bungalow for sale in Hamble Park, Warsash, SO31 — £299,500 • 2 bed • 2 bath • 733 ft²
2 bedroom detached bungalow for sale in Hamble Park, Warsash, SO31 — £315,000 • 2 bed • 2 bath • 880 ft²
2 bedroom park home for sale in Southampton, Hampshire, SO45 — £270,000 • 2 bed • 2 bath • 800 ft²






















































































































