**Standout Features:**
- No onward chain for quick and easy purchase
- Shared ownership opportunity (30% share)
- Recently built (2023) ground floor apartment
- One double bedroom with generous living space
- Modern kitchen with integrated appliances
- Private balcony and allocated parking space
- Close to local amenities and good commuter links
- Affordable council tax band B
**Potential Concerns:**
- Shared ownership may limit future resale options
- Low broadband speeds in the area
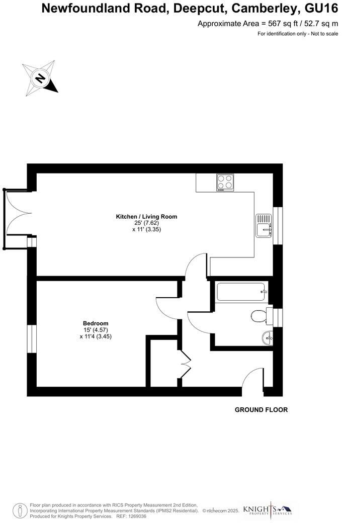
Discover the perfect blend of modern living and convenience in this stylish ground floor apartment within the desirable Mindenhurst Development. Built in 2023, this well-presented one-bedroom home boasts a spacious open-plan kitchen/living room, modern fittings, and a private balcony. With no onward chain, the process of making this your own could not be smoother.
Enjoy the benefits of shared ownership at just a 30% share, making it an ideal choice for first-time buyers or small families looking for affordability in a vibrant area. Conveniently located near local amenities and excellent commuter links, this apartment not only promises comfort but is an excellent entry point into the property market.
Experience the ease of urban living with one allocated parking space and proximity to well-rated schools, parks, and essential services. However, do be aware of shared ownership terms and consider the slower broadband connections when planning your lifestyle. Don't miss this unique opportunity—schedule a viewing today and envision your new life at this contemporary haven.
1 bedroom apartment for sale in 21 Newfoundland Road, Deepcut, Camberley, GU16 — £217,500 • 1 bed • 1 bath • 567 ft²
2 bedroom apartment for sale in 10 Cyprus Road, Deepcut, GU16 6TH, GU16 — £142,500 • 2 bed • 1 bath • 655 ft²
1 bedroom flat for sale in Woodside Close, Bagshot, Surrey, GU19 — £240,000 • 1 bed • 1 bath • 488 ft²
1 bedroom flat for sale in Woodside Close, Bagshot, Surrey, GU19 — £60,000 • 1 bed • 1 bath • 487 ft²
1 bedroom apartment for sale in Sopwith Drive, Farnborough, GU14 — £96,000 • 1 bed • 1 bath • 624 ft²
2 bedroom apartment for sale in White Wood Vale, Frimley, Camberley, GU16 — £150,000 • 2 bed • 1 bath • 731 ft²














































