**Standout Features:**
- Modern one double bedroom ground floor apartment
- Recently constructed (2020) with high specification
- Allocated parking space
- Scenic woodland views
- 100% shared ownership option available
- Low service charge: £174.38 annually
- No onward chain
**Potential Concerns:**
- Leasehold tenure
- Compact living space may not suit all buyers
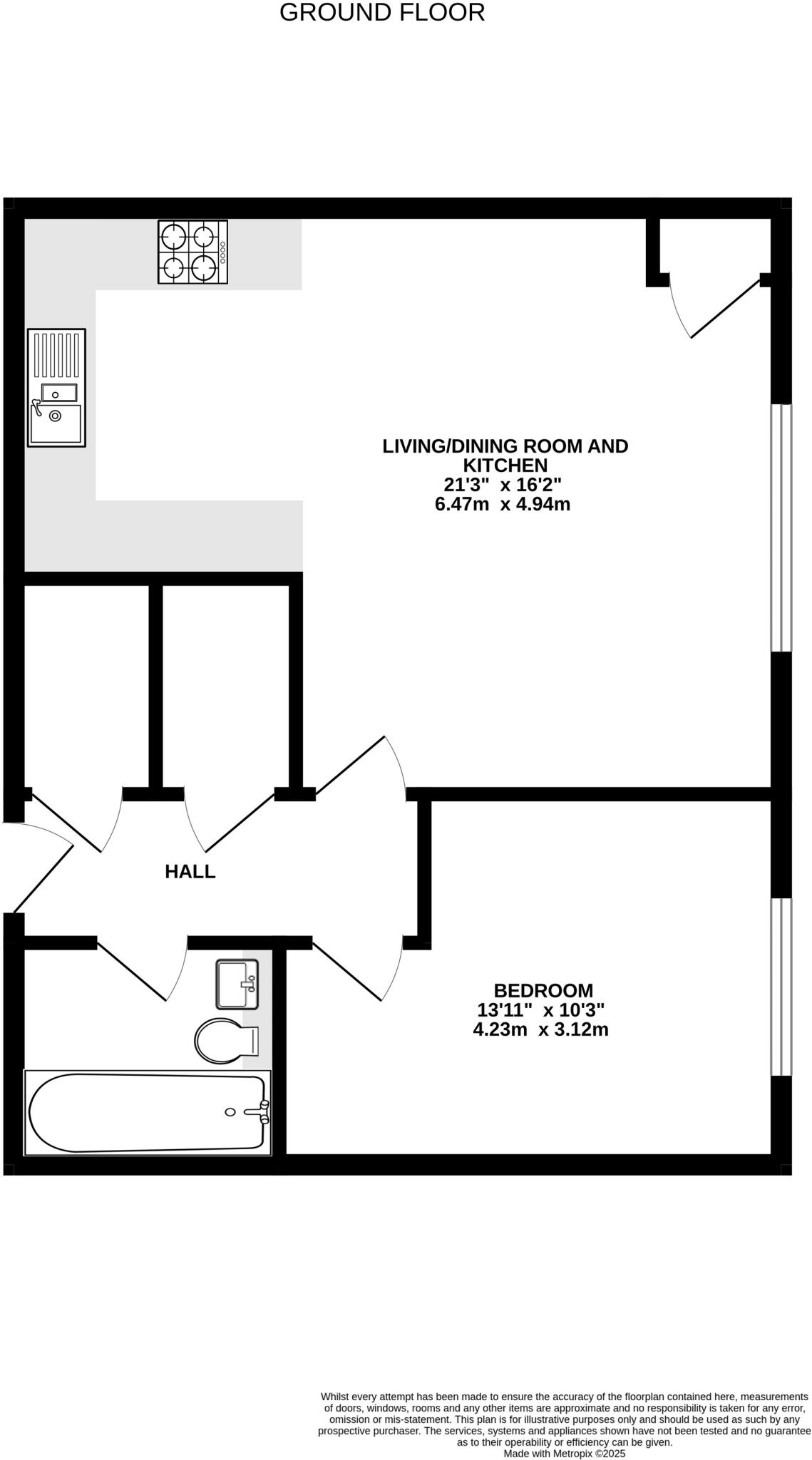
Nestled at the end of a contemporary development, this stylish ground floor apartment offers modern living with tranquil woodland views. Recently constructed in 2020, this one-bedroom flat features an inviting open-plan living area with ample natural light, a well-fitted kitchen, and a comfortable bedroom. Additionally, it comes with one allocated parking space and a small private or communal garden area, perfect for enjoying the surrounding greenery.
Perfect for first-time buyers or investors, this property is offered with a 100% shared ownership option, providing flexibility for future ownership. The apartment's advantageous location grants easy access to local amenities, impressive schools with outstanding ratings, and excellent commuter links. With a low service charge and council tax band, this opportunity is ideal for those seeking comfort, convenience, and a touch of nature in their daily lives. Don't miss out—this charming apartment is a fantastic find that won't last long on the market!
1 bedroom flat for sale in Woodside Close, Bagshot, Surrey, GU19 — £60,000 • 1 bed • 1 bath • 487 ft²
1 bedroom apartment for sale in 21 Newfoundland Road, Deepcut, Camberley, GU16 — £65,250 • 1 bed • 1 bath • 567 ft²
2 bedroom apartment for sale in Woodland Glade, Mytchett, Camberley, Surrey, GU16 — £204,750 • 2 bed • 1 bath • 444 ft²
1 bedroom apartment for sale in Sopwith Drive, Farnborough, GU14 — £126,000 • 1 bed • 1 bath • 538 ft²
2 bedroom flat for sale in Woodland Glade, Mytchett, Surrey, GU16 — £204,750 • 2 bed • 1 bath • 750 ft²
1 bedroom apartment for sale in Sopwith Drive, Farnborough, GU14 — £96,000 • 1 bed • 1 bath • 624 ft²






































