**Standout Features:**
- Recently constructed ground floor apartment
- 25% shared ownership with staircasing option to 100%
- Allocated parking space
- No onward chain
- Scenic woodland views and low-maintenance communal grounds
- EPC rating B (83), Council Tax Band B
- Affordable service charge at £174.38
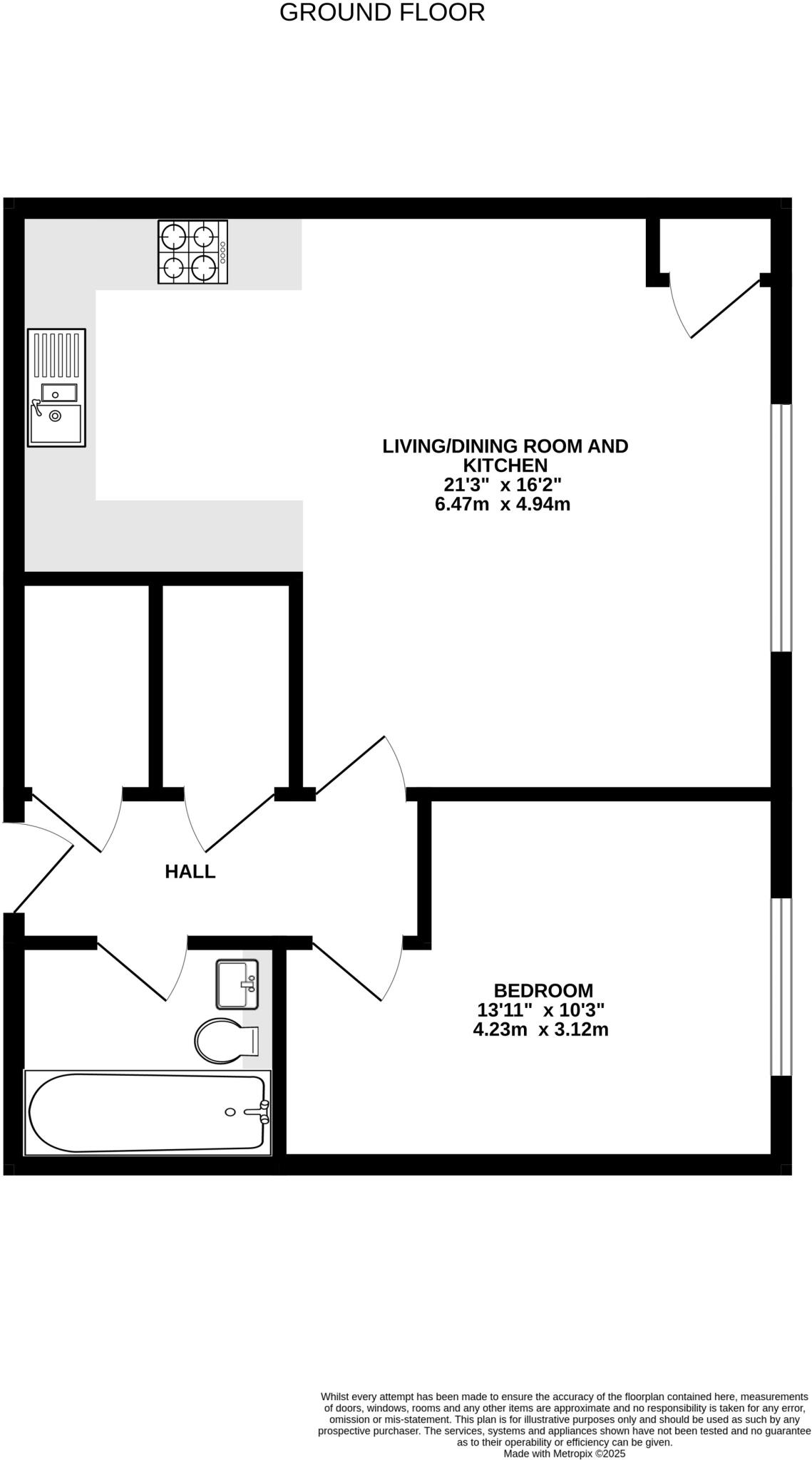
This modern and inviting ground floor apartment is a fantastic opportunity for first-time buyers or downsizers looking for a convenient and low-maintenance living space. Boasting one double bedroom, a well-designed open-plan living area, and a stylish fitted kitchen, the layout is both functional and aesthetically pleasing. Situated at the end of a contemporary development, residents can enjoy tranquil views of the surrounding woodlands.
With a shared ownership model, you can invest in a comfortable home without breaking the bank, while benefiting from an allocated parking space and nearby access to local amenities, schools, and excellent commuter links. Enjoy a compact yet inviting atmosphere, perfect for singles or couples, all while being part of an affluent community. Don’t miss this unique chance to enter the property market—schedule a viewing today and envision the potential of your new home!
1 bedroom flat for sale in Woodside Close, Bagshot, Surrey, GU19 — £240,000 • 1 bed • 1 bath • 488 ft²
1 bedroom apartment for sale in 21 Newfoundland Road, Deepcut, Camberley, GU16 — £65,250 • 1 bed • 1 bath • 567 ft²
1 bedroom apartment for sale in Sopwith Drive, Farnborough, GU14 — £96,000 • 1 bed • 1 bath • 624 ft²
2 bedroom apartment for sale in White Wood Vale, Frimley, Camberley, GU16 — £150,000 • 2 bed • 1 bath • 731 ft²
2 bedroom flat for sale in Woodland Glade, Mytchett, Surrey, GU16 — £204,750 • 2 bed • 1 bath • 750 ft²
2 bedroom flat for sale in Woodland Glade, Mytchett, Camberley, Surrey, GU16 — £315,000 • 2 bed • 1 bath • 750 ft²






































