Spacious five-bedroom home with 12 acres and versatile outbuilding.
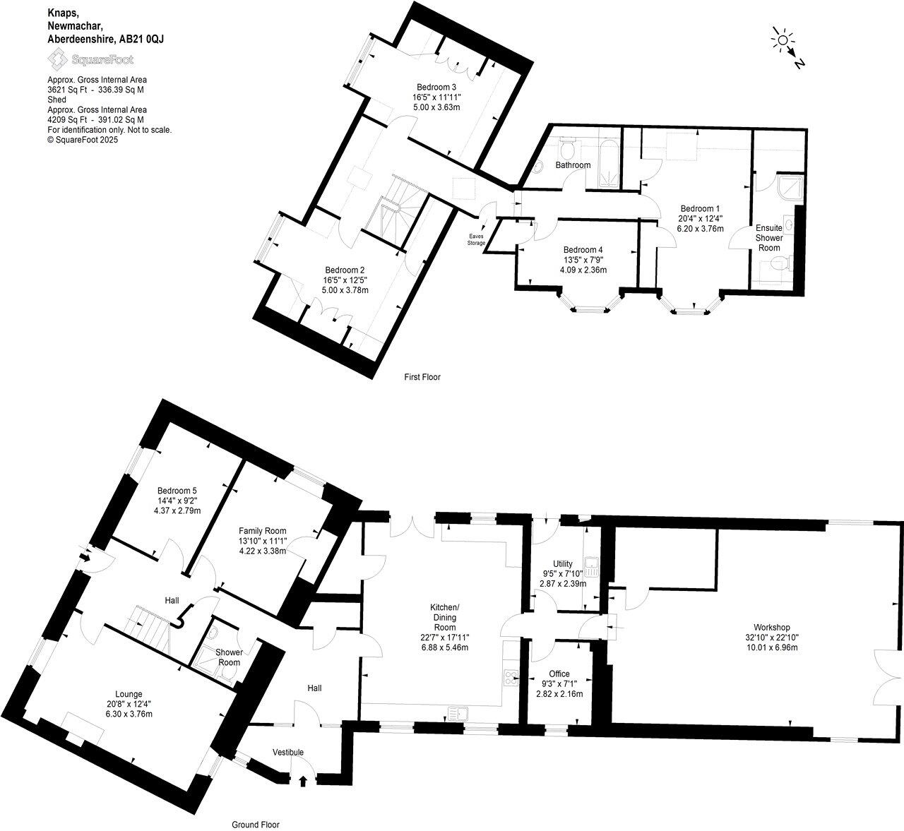
5 double bedrooms including principal ensuite and flexible family room space
Around 12.73 acres total; c.10.17 acres sown to grass, mostly fenced
Large 30m x 12.8m multipurpose agricultural shed added in 2010
South-west aspect, well-tended gardens, greenhouse and polytunnel
2009 extension linking farmhouse to steading increased accommodation
Private water supply and septic tank; oil central heating (maintenance needed)
Private track access — very rural, car-dependent location
Fast broadband; average mobile signal
Set within around 12.73 acres of rolling Aberdeenshire countryside, this traditional stone farmhouse offers a rare combination of comfortable family accommodation and substantial usable land. The house combines the charm of the original stone-built cottage with a 2009 extension that created generous living spaces, a modern country kitchen, and practical ground-floor utility and workshop areas. The south-west aspect and well-tended gardens provide sheltered patio space, productive kitchen garden beds, and fruit trees for family outdoor living.
For those with equestrian or smallholding interests the property is particularly well suited. About 10.17 acres have recently been sown to grass and are mostly fenced, and the modern 30m x 12.8m multi-purpose agricultural shed (2010) offers extensive storage or straightforward conversion to stabling. Ample parking and a large gravel yard/front forecourt support trailer or machinery use and easy turning.
Practicalities are straightforward but important to note: services include private water and mains electricity, with drainage to a septic tank and oil central heating. EPC band C and council tax band B are in place. The house sits at the end of a private track in a remote location — excellent for privacy and rural living but meaning everyday amenities are reached by car; Newmachar village is the nearest centre. Broadband speeds are fast, mobile signal average.
Overall this is a well-maintained family farmhouse with flexible outbuildings and extensive grounds for equestrian, hobby farming, or simply a spacious rural lifestyle. Buyers seeking a private country home with room to develop smallholding facilities will find genuine potential here, while those wanting immediate town access should consider the remote setting.
4 bedroom detached house for sale in Sunnyside of Lethenty, Fyvie, AB53 8NE, AB53 — £350,000 • 4 bed • 1 bath
Land for sale in Clinkstone & Stodfold Farms, Huntly, Aberdeenshire, AB54 — £3,700,000 • 6 bed • 1 bath • 1071 ft²
Farm for sale in Mill of Kingoodie, Whiterashes, Aberdeen, AB21 0QS, AB21 — £1,150,000 • 4 bed • 1 bath • 1719 ft²
7 bedroom smallholding for sale in Mathas Cottage and Commonty Farm, Ellon AB41 8QX, AB41 — £650,000 • 7 bed • 1 bath • 914 ft²
6 bedroom bungalow for sale in Abercraig,Tullochvenus, Lumphanan, AB31 4RN, AB31 — £425,000 • 6 bed • 1 bath
Farm for sale in Lot 2 Northside & Hillhead, Kingswells, Aberdeen, AB15 — £500,000 • 3 bed • 1 bath • 1512 ft²










































































































