Ready-consent plot near historic town centre for self-build or developer projects.
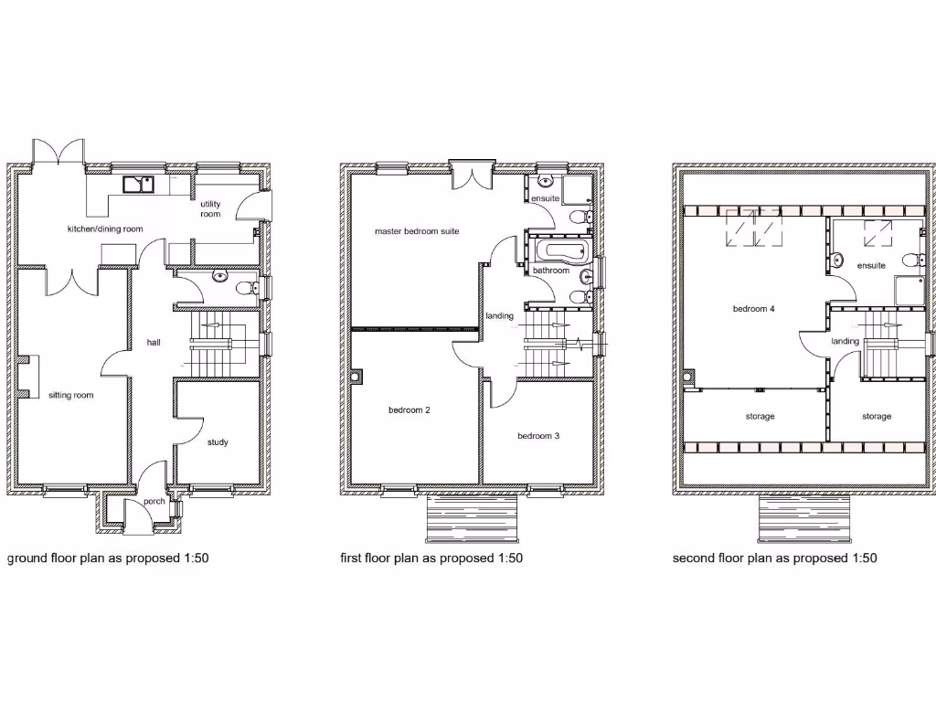
Full planning permission 25/00573/FUL for 174.61 sqm GIA dwelling
Freehold plot approx. 175 sqm in central Ludlow
CIL liability applies; self-build exemptions may be possible
Small plot — limited garden and restricted on-site parking
No flood risk; low local crime
Excellent mobile signal and fast broadband
Approx. 11 rooms (consented layout); council tax unknown
Ideal for self-builders, developers, or buyers seeking planning certainty
A rare central Ludlow building plot with full planning permission (Shropshire Council ref 25/00573/FUL) for a modern two-storey dwelling. The consented design delivers a substantial gross internal floor area of 174.61 sqm, offering flexible accommodation across approximately 11 rooms — ideal for a family home, self-build project or small developer scheme in a sought-after market town.
The site is freehold, around 175 sqm, and lies in a low-crime area with no recorded flood risk. Ludlow’s historic centre, local schools rated Good, regular rail services and the surrounding Shropshire Hills AONB all support strong lifestyle appeal. Mobile signal and broadband are reported as excellent and fast, which suits modern homeworking and connectivity needs.
Buyers should note the plot’s modest footprint: outdoor space and on-site parking will be limited by plot size and the approved layout. A Community Infrastructure Levy (CIL) liability applies to the development; exemptions for self-builders may be available but require an application and evidence. Council tax banding for the completed dwelling is not yet known.
This plot represents a practical, time‑saving opportunity to deliver a ready-consent residence in central Ludlow. It will particularly suit purchasers who value location and planning certainty and who are prepared to work within a compact site and manage CIL/consent administration.
Plot for sale in Steventon New Road, Ludlow, Shropshire, SY8 — £250,000 • 1 bed • 1 bath • 2100 ft²
Plot for sale in New Road, Ludlow, Shropshire, SY8 — £200,000 • 1 bed • 1 bath • 2159 ft²
Land for sale in Rock Green, Ludlow, Shropshire, SY8 — £80,000 • 1 bed • 1 bath • 495 ft²
Land for sale in Fishmore Road, Ludlow, Shropshire, SY8 — £500,000 • 1 bed • 1 bath
Land for sale in Fishmore Road, Ludlow, Shropshire, SY8 — £500,000 • 1 bed • 1 bath
Land for sale in Brickyard, Ludlow, Shropshire, SY8 — £45,000 • 1 bed • 1 bath • 12632 ft²






























