Ready-to-build plot with approved plans in sought-after Ludlow location.
Full planning consent granted (Shropshire Council ref. 25/00347/FUL)
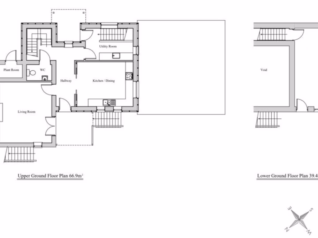
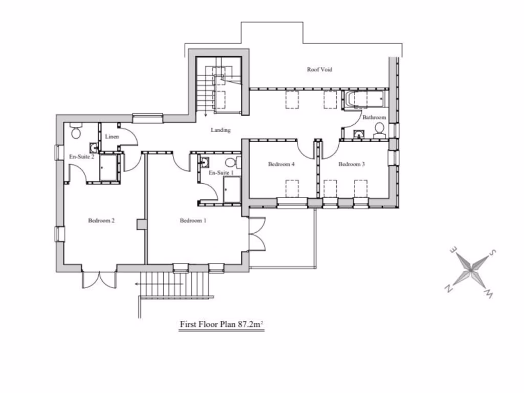
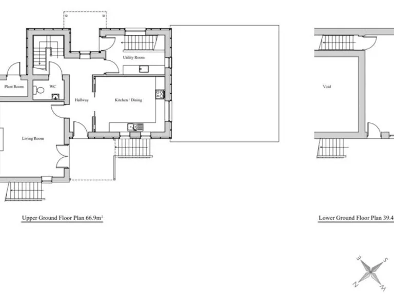
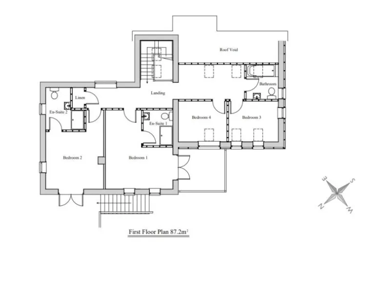
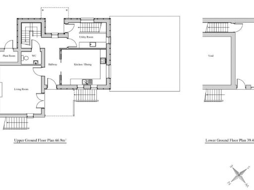
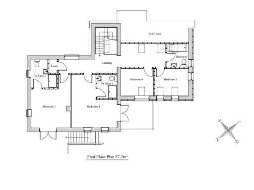
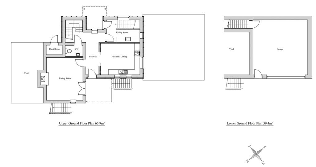
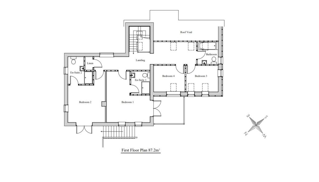
0.35 acre freehold plot with approximately 195 sqm gross internal area
Approved contemporary two-storey design with integral garage and garden
No flood risk; excellent mobile signal and fast broadband
CIL liability applies; exemptions possible but require application
Council tax band currently unknown; buyer to verify
Suitable for self-build or developer; site preparation and build costs extra
Plot located on edge of Ludlow, near schools and town amenities
This sizable 0.35-acre freehold plot on Steventon New Road comes with full planning consent (ref. 25/00347/FUL) for a contemporary two-storey dwelling of 195 sqm GIA. The approved scheme proposes a modern, energy-efficient home with large windows, metal/aluminum roofing and an integral garage, ready for a developer or self-builder to start construction.
The site suits buyers seeking a near-town development opportunity in Ludlow — a historic market town with good local schools, fast broadband, excellent mobile signal and low crime. The generous plot allows for substantial gardens, landscaping and parking while retaining privacy at the plot edges.
Buyers should note material matters: a Community Infrastructure Levy (CIL) liability applies to the site, although self-build exemptions may be available subject to application and qualification. Council tax is currently unknown and build costs, connections and any site preparation are not included in the sale price.
This plot is a straightforward acquisition for someone prepared to proceed with the approved plans or adapt them (subject to permissions). It offers the benefit of planning certainty in a sought-after town edge location, balanced by the usual self-build considerations and upfront infrastructure costs.
Plot for sale in Steventon New Road, Ludlow, Shropshire, SY8 — £135,000 • 1 bed • 1 bath
Plot for sale in New Road, Ludlow, Shropshire, SY8 — £200,000 • 1 bed • 1 bath • 2159 ft²
Land for sale in Rock Green, Ludlow, Shropshire, SY8 — £80,000 • 1 bed • 1 bath • 495 ft²
Land for sale in Fishmore Road, Ludlow, Shropshire, SY8 — £500,000 • 1 bed • 1 bath
Land for sale in Fishmore Road, Ludlow, Shropshire, SY8 — £500,000 • 1 bed • 1 bath
Land for sale in Brickyard, Ludlow, Shropshire, SY8 — £45,000 • 1 bed • 1 bath • 12632 ft²






























