**Standout Features:**
- Grade II listed Georgian barn conversion
- 5 spacious bedrooms and 3 bathrooms
- Gated driveway, double garage, and carport
- Large internal gym space and workshop
- Desirable rural setting near Ongar, Hatfield Heath, and Epping
- Beautifully landscaped garden with outdoor seating area
- Original features: high ceilings, character brick fireplace, wooden beams
**Potential Concerns:**
- Listed property status may impose renovation restrictions
- Council tax is on the higher side
- Crime rate is average for the area
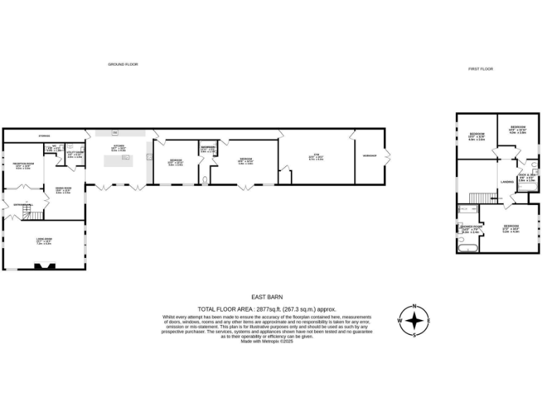
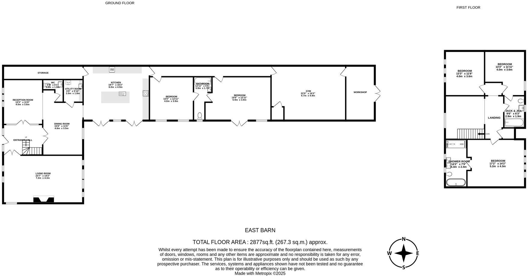
Discover East Barn, a stunning 5-bedroom detached barn conversion where rustic elegance merges with modern living. Enjoy the warm ambiance of a spacious lounge with a cozy brick fireplace and garden access, perfect for family gatherings. The open-plan design includes a dedicated dining area and well-equipped kitchen with a breakfast bar, complemented by two sizable ground floor bedrooms connected by a stylish Jack and Jill bathroom—a great feature for guests or family.
Venture upstairs to find a luxurious master suite with en-suite and picturesque views, along with two additional bedrooms offering versatility for guests or office space. The property boasts a large gym and a workshop, catering to both leisure and productivity. Outside, the landscaped garden invites relaxation and al fresco dining, while the double garage and carport provide ample storage and parking options.
Situated in a serene hamlet, just a short drive from essential amenities and reputable schools, this exceptional home is ideal for families, creatives, or anyone seeking a peaceful retreat. With its combination of character, space, and charm, this unique property won't last long on the market—schedule your visit today and imagine your future in East Barn!
5 bedroom barn conversion for sale in Abbess Road, Abbess Roding, CM5 — £1,395,000 • 5 bed • 4 bath • 3418 ft²
3 bedroom house for sale in New House Farm Barns, Stondon Road, Ongar, CM5 — £750,000 • 3 bed • 3 bath • 2014 ft²
Barn for sale in Little Canfield,Dunmow,CM6 1SP, CM6 — £970,000 • 5 bed • 5 bath • 2573 ft²
Barn for sale in Abbess Roding, Ongar, CM5 — £1,250,000 • 5 bed • 4 bath • 2562 ft²
4 bedroom barn conversion for sale in Chelmsford Road, High Ongar, CM5 — £825,000 • 4 bed • 3 bath • 2131 ft²
4 bedroom detached house for sale in Braxted Road, Kelvedon, CO5 — £999,995 • 4 bed • 2 bath • 4467 ft²






































































































































