CM5 0JJ - 5 bedroom barn conversion for sale in Abbess Road, Abbess R…

View on Property Piper

5 bedroom barn conversion for sale in Abbess Road, Abbess Roding, CM5

Summary - ASH TREE BARN, ABBESS ROAD CM5 0JJ

5 bed 4 bath Barn Conversion

**Key Features:**
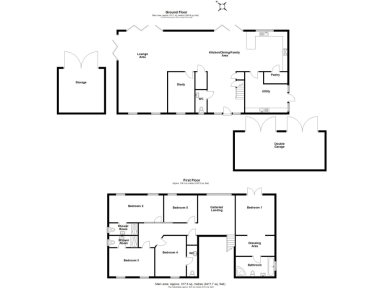
- Stunning converted barn set on approximately one acre
- Open plan living space with high ceilings and expansive views
- Five spacious bedrooms (four with en-suites) perfect for families or guests
- Contemporarily designed kitchen with a large utility room
- Imposing entrance hall with vaulted ceilings and a gallery landing
- Very large double barn-style garage and additional garden store
- Quiet rural setting with easy access to Ongar and Epping town centers
- Chain free, ensuring a straightforward purchase process
- Potential for future renovations and outdoor expansions

Discover this exquisite barn conversion nestled in serene countryside surroundings, where contemporary elegance meets rural charm. Spanning an impressive 3,418 square feet, this property boasts an open plan reception area that bathes in natural light, complemented by a magnificent kitchen – perfect for entertaining or family gatherings. With five generously sized bedrooms, including four with en-suites, it provides ample space for family living or hosting guests.

Enjoy breathtaking agricultural views from your extensive grounds, ideal for outdoor activities or creating your dream garden oasis. The large double barn-style garage adds functional appeal and storage options. Embrace the comfort of modern living in a tranquil setting while remaining close to local amenities.

While the property stands in excellent condition, as with any home of this size, maintenance considerations are important. This unique opportunity awaits discerning buyers looking for a slice of countryside paradise. Act swiftly to view this remarkable home—similar properties may not last long!

Property Details

Image Descriptions

Floorplan Description

Rooms

Textual Property Features

Detected Visual Features

Nearby Schools

Nearest Bars And Restaurants

,,,,}

Nearest General Shops

,,}

Nearest Grocery shops

,,}

Nearest Supermarkets

,,}

Nearest Religious buildings

,,}

Nearest Medical buildings

,,,}

Nearest Airports

,,}

Nearest Leisure Facilities

,,,,}

Nearest Tourist attractions

,,}

Nearest Train stations

,,,,}

Nearest Bus stations and stops

,,,,}

Nearest Hotels

,,}

Tags

Local Market Stats

Similar Properties

Meta

High Res Images

Compatible Images

Low res Images

Thumbnails

Raw Images

High Res Floorplan Images

Compatible Floorplan Images

Low res Floorplan Images

FloorplanImages Thumbnail

Raw Floorplan Images