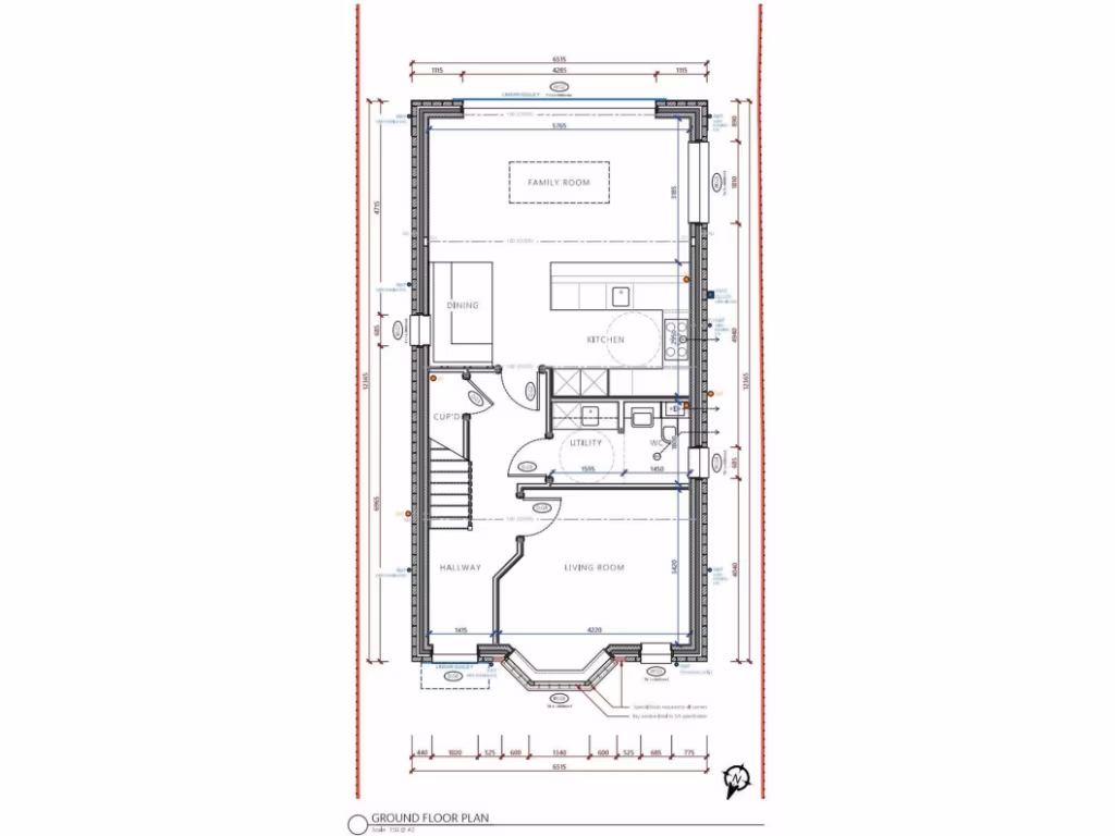
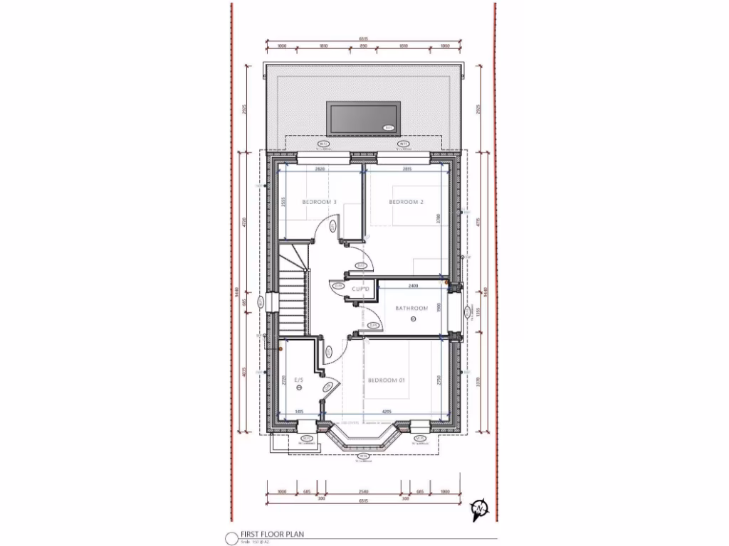
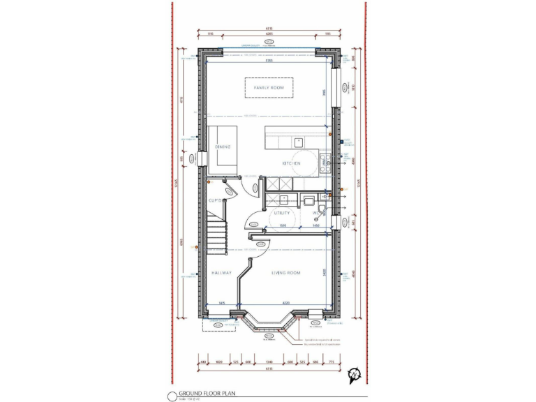
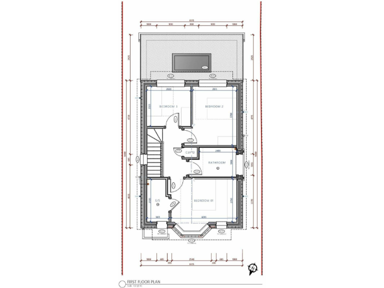
**Standout Features:**
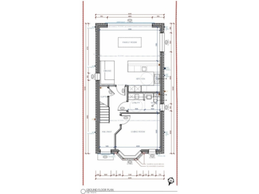
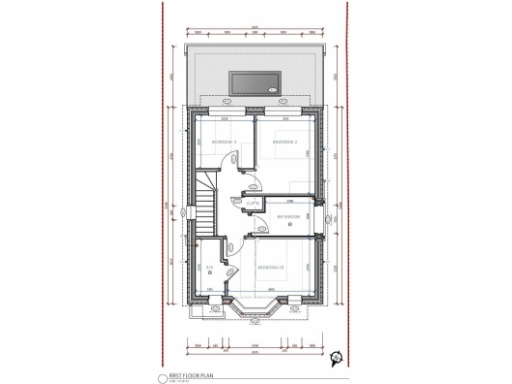
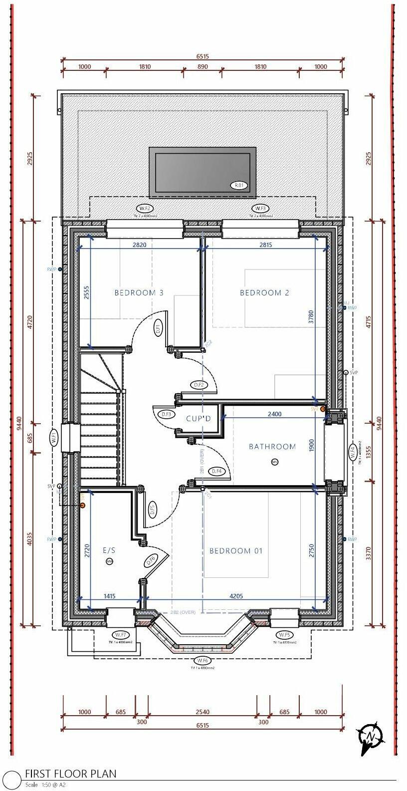
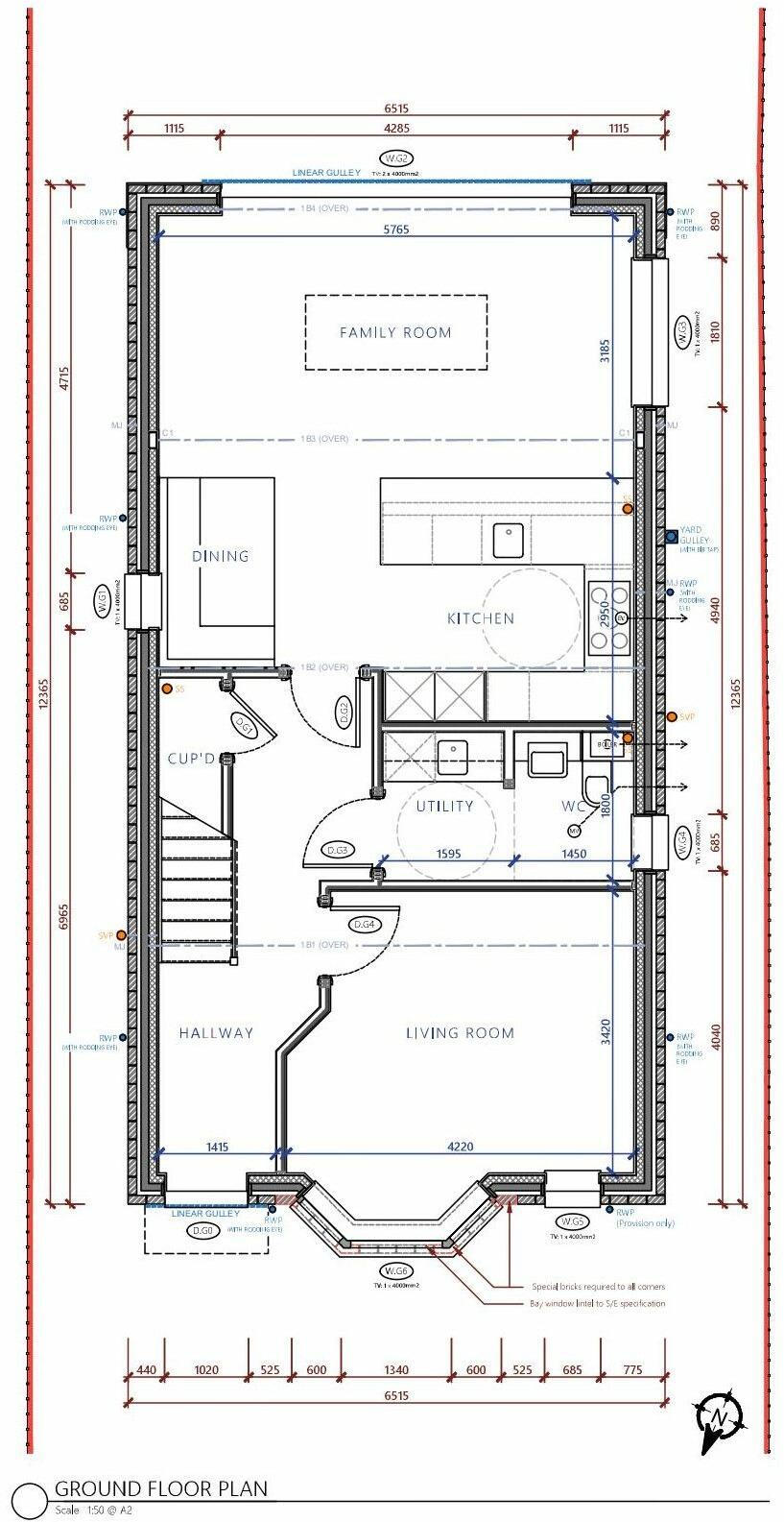
- **Available Plot:** Freehold land with approved planning permission for a 3-bedroom detached house.
- **Size and Location:** Decent-sized plot (approximately 1300 sq ft) situated on sought-after Lacey Avenue in a family-friendly area.
- **New Build Advantages:** Potential for significant stamp duty savings and the opportunity to customize your dream home with quality construction by Catling Ltd, accompanied by a 10-year build warranty.
- **Excellent Connectivity:** Close proximity to local shops, Coulsdon Common, and transport links including Coulsdon South station with fast services to Central London.
**Summary:**
Seize this rare opportunity to acquire a prime building plot on Lacey Avenue, complete with approved planning permission for an elegantly-designed 3-bedroom detached home. Ideal for families or investors, this freehold land allows you to create your dream residence in a peaceful, affluent neighborhood with excellent local amenities, good schools, and convenient transport links. With fast broadband access and exceptional mobile signal, the area is perfect for modern living. Picture yourself celebrating in your new home by Christmas 2025, tailored to your personal specifications. However, be mindful—this exceptional chance may not last long in today’s market, so act swiftly to secure your future in this desirable community.
Land for sale in The Avenue, Coulsdon, CR5 — £265,000 • 1 bed • 1 bath • 1399 ft²
Plot for sale in Outwood Lane, Chipstead, CR5 — £1,250,000 • 1 bed • 1 bath • 3284 ft²
Land for sale in Land Adjacent to 1A Selborne Road, Park Hill Road, Croydon, Surrey, CR0 5JQ, CR0 — £35,000 • 1 bed • 1 bath • 3369 ft²
Plot for sale in Land r/o Cross Road, Croydon, Surrey,, CR0 — £50,000 • 1 bed • 1 bath • 786 ft²
Land for sale in Purley, Croydon, CR8 — £1,100,000 • 1 bed • 1 bath • 934 ft²
6 bedroom detached house for sale in Plot + Build Opportunity in Kelsey Lane, Beckenham, Greater London, BR3 — £1,970,000 • 6 bed • 1 bath • 3659 ft²














