**Standout Features:**
- Plot with full planning permission for a contemporary 6-bedroom home
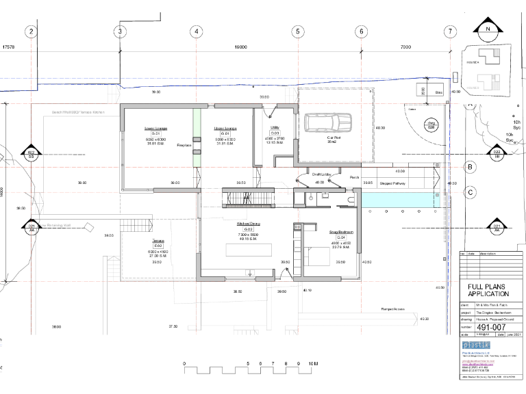
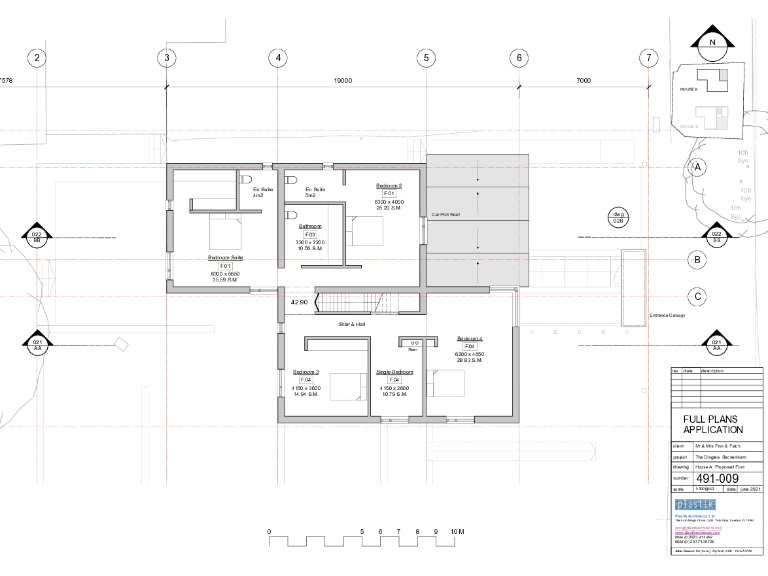
- Designed by Plastik Architects with circa 3,659 sqft of living space
- Option to add a basement for additional amenities (storage, gym, cinema)
- West-facing rear garden with sun terrace and BBQ/outdoor kitchen potential
- Private driveway and carport included; quiet, tree-lined Kelsey Lane location
- Estimated total cost of £1.97m for plot and build with significant stamp duty savings
This exceptional plot in central Beckenham offers a rare chance to design and build your dream family home from the ground up. Spanning approximately 3,659 sqft, you'll enjoy flexibility in the construction process to tailor this contemporary, two-storey residence to your taste—all under a fixed-price contract. The West-facing garden awaits your personal landscaping touch, while the surrounding area is perfect for family living with its proximity to parks and highly-rated schools.
This is not just an investment; it's a lifestyle opportunity set amidst vibrant local amenities and excellent transport links to London. The lush Kelsey Park and Beckenham Place Park are mere minutes away, providing expansive green space for leisure and adventure. With construction timelines and a unique building opportunity like this, don’t miss the chance to customize a home that promises both comfort and individuality. Given its potential, this property won’t be available for long—seize this rare opportunity to create the ideal residence in a thriving community!
Plot for sale in Kelsey Lane, Beckenham, Greater London, BR3 — £950,000 • 6 bed • 1 bath • 3659 ft²
5 bedroom detached house for sale in Parkhill Road, Bexley, DA5 — £950,000 • 5 bed • 3 bath
Land for sale in Marle Place Road, Brenchley, TN12 — £600,000 • 4 bed • 3 bath • 2880 ft²
Plot for sale in Edward Road, Sundridge Park, Kent, BR1 — £975,000 • 6 bed • 6 bath • 5934 ft²
6 bedroom detached house for sale in Dura Den Close, Beckenham Place Park, Beckenham, BR3 — £1,750,000 • 6 bed • 4 bath • 3382 ft²
3 bedroom detached house for sale in North Cray Road, Sidcup, DA14 — £450,000 • 3 bed • 2 bath • 2234 ft²


































