Approved appeal consent for three detached homes on a generous, well-connected suburban plot..
Approx. 1,950 sqm very large development plot
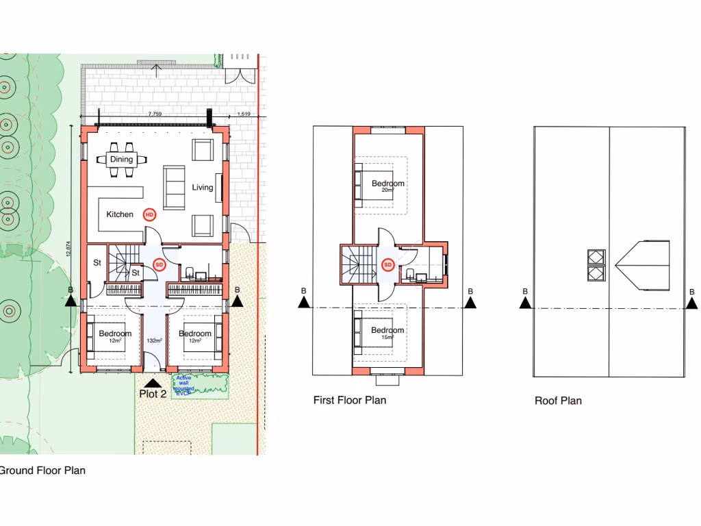
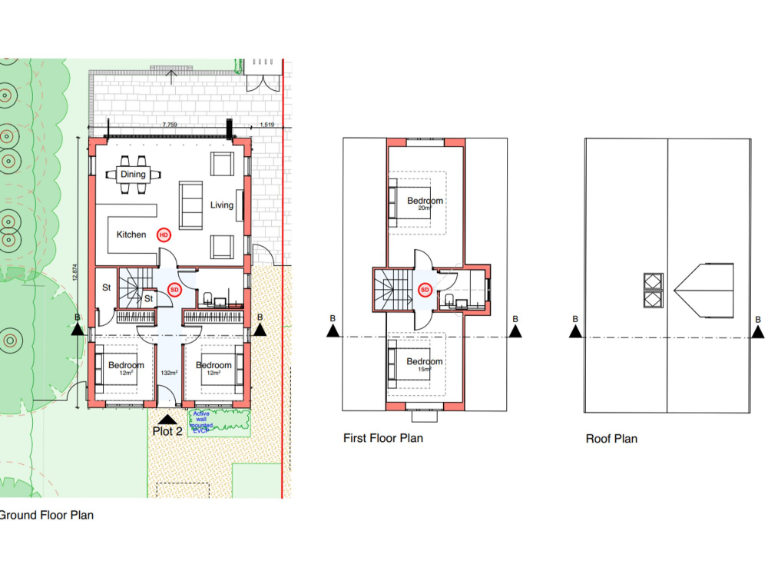
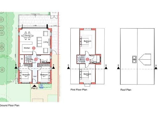
A rare infill development site in Purley with approved planning (on appeal) to replace the existing house with three detached homes. The permission covers one five-bedroom two-storey house and two four-bedroom one-and-a-half-storey houses, each with parking and secure cycle storage. The plot is generous (approx. 1,950 sqm) and sits on a gentle slope, with mature boundary trees that afford privacy but may affect layouts and construction access.
This opportunity suits small developers, builders or investors seeking a near-central Croydon suburb with strong local amenities and fast broadband. The site is within a 20-minute walk of Reedham station and close to bus routes, shops on Brighton Road and schools highly rated for primary and secondary education. An estimated GDV and local comparables are available on request to support feasibility work.
Buyers should budget for demolition of the existing dwelling, build costs and any planning conditions tied to the appeal approval. The approval was granted on appeal (not by initial consent), so purchasers should review conditions and consider contingency for works to trees, groundworks on the sloping site and construction access. Council tax in the area is noted as expensive — a consideration for future homeowners and affordability modelling.
All relevant documents (approval and conditions, D&A, indicative GDV, planning floorplans and brochure) are available for due diligence. The site offers clear development upside in a very affluent area with low crime, excellent connectivity and fast broadband — a pragmatic project for experienced developers or investors prepared to manage demolition and build risk.
Plot for sale in Northwood Avenue, Purley, CR8 — £660,000 • 1 bed • 1 bath • 5091 ft²
4 bedroom semi-detached house for sale in Foxley Lane, West Purley, CR8 — £950,000 • 4 bed • 2 bath • 2432 ft²
Land for sale in Honister Heights, Purley, CR8 — £50,000 • 1 bed • 1 bath
Land for sale in Site at Kempsfield, 1 Reedham Park Drive, Purley, London, CR8 4BQ, CR8 — £895,000 • 1 bed • 1 bath • 5382 ft²
4 bedroom semi-detached house for sale in Woodcote Road, Purley, CR8 — £800,000 • 4 bed • 1 bath • 1536 ft²
Plot for sale in Canterbury Road, Croydon, London CR0 — £650,000 • 1 bed • 1 bath






















































