**Standout Features:**
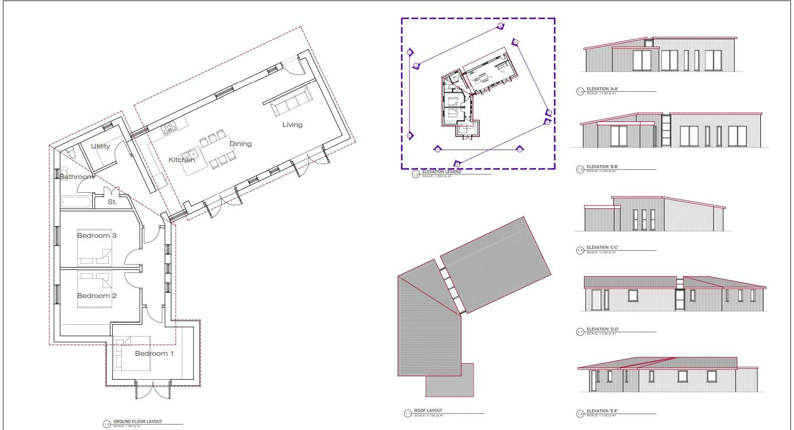
- Approximately 1/3 acre of land with **planning permission** (24/02429/FULL).
- **Private gated driveway** and extensive gardens.
- Large garage and storage sheds included.
- Situated in a **sought-after location** near Paddock Wood town center and the mainline station.
- **No onward chain**, allowing for swift transactions.
**Summary:**
This is a rare opportunity to secure a generous plot of land in the highly desirable area of Chantlers Hill, Paddock Wood, with the advantage of approved planning permissions for development. Spanning around 1/3 of an acre, the property features a private gated driveway and expansive gardens, perfect for creating a tranquil outdoor space or developing your dream home. Its convenient location ensures easy access to essential amenities, including a Waitrose supermarket and excellent commuter links to London, making it ideal for families and investors alike.
Moreover, the area is surrounded by critically acclaimed schools, including Brenchley and Matfield Primary, and offers a rich community feel, with local villages providing additional amenities and services. While the boundary lines are not yet finalized, the potential for customization allows for creativity in your development plans. This plot, devoid of chain complexities, is set in a low-crime, affluent village, making it an attractive opportunity for those looking to invest in a promising and vibrant community. Don’t miss out on this exclusive chance—viewings are highly recommended before this unique plot is snapped up!
3 bedroom detached house for sale in DEVELOPMENT OPPORTUNITY - 24/02869/FULL - Watermans Lane, Tonbridge, TN12 6ND, TN12 — £1,100,000 • 3 bed • 2 bath • 1141 ft²
Land for sale in Tonbridge Road, Penshurst, TN11 — £255,000 • 1 bed • 1 bath • 3358 ft²
Land for sale in Little Boundes Close, Tunbridge Wells, Kent, TN4 — £400,000 • 1 bed • 1 bath
Land for sale in Marle Place Road, Brenchley, TN12 — £600,000 • 4 bed • 3 bath • 2880 ft²
4 bedroom detached house for sale in Windmill Hill, Brenchley, Tonbridge, Kent, TN12 — £700,000 • 4 bed • 1 bath • 3450 ft²
Plot for sale in Plot 2, Lytlewood & Russettings, Riding Lane, Hildenborough, TN11 — £675,000 • 1 bed • 1 bath • 542 ft²






































