### Standout Features:
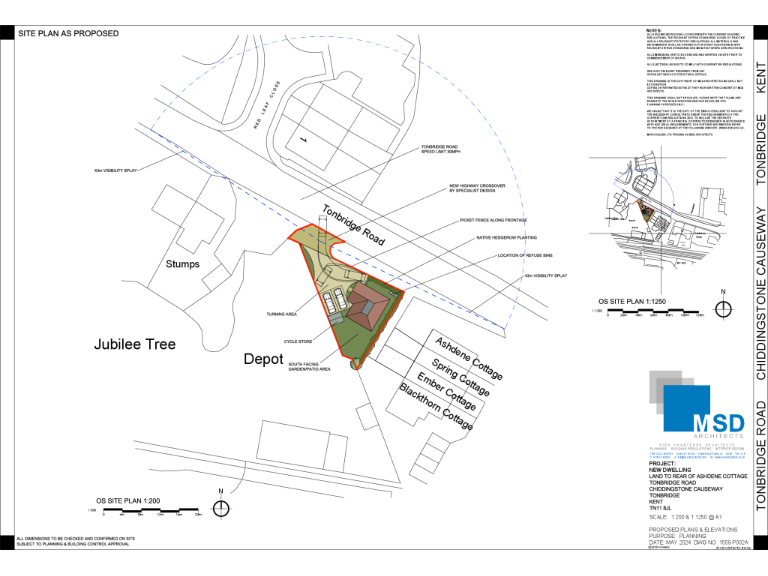
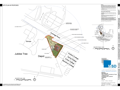
- **Development Opportunity**: Planning permission granted for a three-bedroom detached dwelling.
- **Rural Village Location**: Quiet and affluent setting near Chiddingstone Causeway.
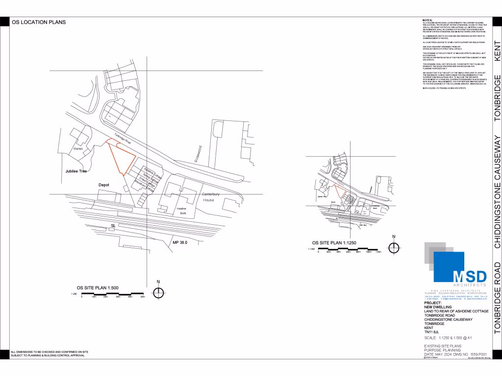
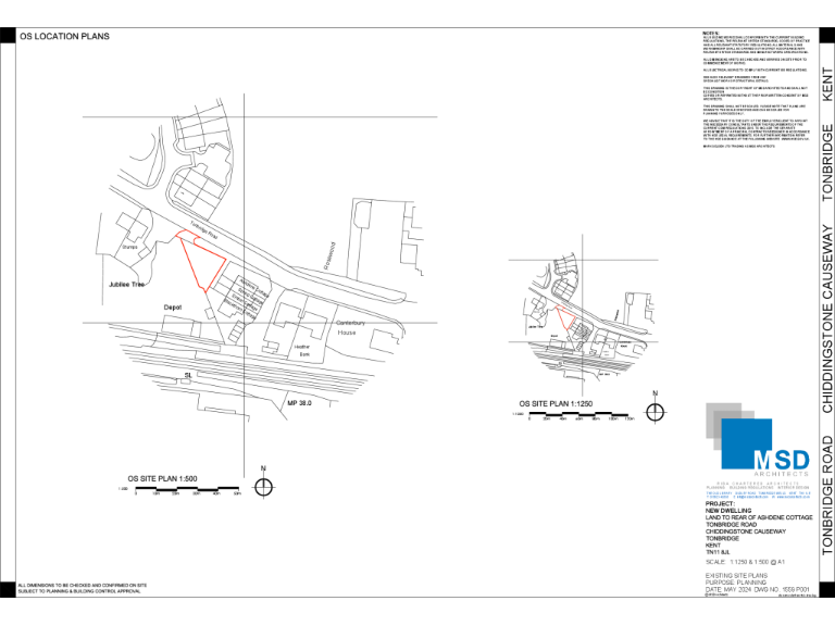
- **Large Plot Size**: Approximately 312m² with potential for landscaping.
- **Close to Amenities**: Easy reach to schools, public transport, and village facilities.
### Summary:
Discover a rare development opportunity in the tranquil village of Chiddingstone Causeway, just 4 miles west of Tonbridge. This generously sized land parcel has planning permission approved for a charming three-bedroom detached dwelling, complete with new access and all necessary works. The village offers a host of amenities including a pub, village hall, and well-rated schools, making it ideal for families seeking a peaceful lifestyle with convenient access to local services.
Enjoy the benefits of living in a picturesque rural area while also benefiting from excellent mobile connectivity and average broadband speeds. With the added potential for customization and renovation, this plot is a canvas for your dream home or a profitable property investment. Don’t miss this exceptional chance to secure a slice of countryside living—properties like this are rare and may not last long on the market.
Plot for sale in Plot 2, Lytlewood & Russettings, Riding Lane, Hildenborough, TN11 — £675,000 • 1 bed • 1 bath • 542 ft²
Land for sale in Planning Application: 24/02429/FULL DEVELOPMENT OPPORTUNITY – Chantlers Hill, Paddock Wood, Tonbridge, Kent, TN12 6LU, TN12 — £350,000 • 3 bed • 2 bath
Land for sale in The Ridgewaye, Southborough, TN4 — £1,350,000 • 1 bed • 1 bath • 6523 ft²
3 bedroom detached house for sale in DEVELOPMENT OPPORTUNITY - 24/02869/FULL - Watermans Lane, Tonbridge, TN12 6ND, TN12 — £1,100,000 • 3 bed • 2 bath • 1141 ft²
Plot for sale in The Village, Chiddingstone, Edenbridge, Kent, TN8 — £575,000 • 1 bed • 1 bath
Land for sale in New Barn Lane, Orpington, Kent, TN16 — £5,000 • 1 bed • 1 bath


























































