**Standout Features:**
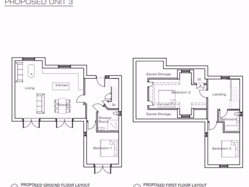
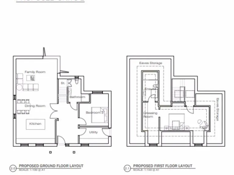
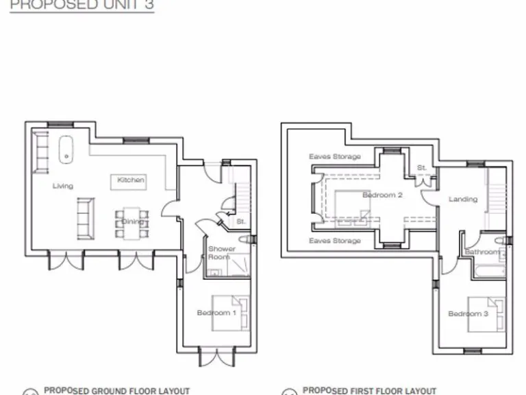
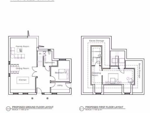
- Planning permission granted for demolition and construction of three dwellings (24/02869/FULL).
- Versatile detached two/three-bedroom bungalow currently on the plot.
- Electric security gates leading to a private driveway.
- Large wraparound garden with southerly aspect, great for outdoor living.
- Off-street parking and timber outbuildings included.
- Quiet, desirable location near Brenchley and Paddock Wood.
**Potential Concerns:**
- Current bungalow may require updates or renovations.
- Broadband speeds are very slow, which could affect connectivity.
- Electric storage heaters may not be energy-efficient.
**Summary Description:**
Seize this unique development opportunity priced at £1,100,000 - £1,200,000 in the sought-after rural area near Brenchley, Matfield, and Paddock Wood. This spacious plot features a detached two/three-bedroom bungalow nestled within a generous garden, offering significant potential for expansion or renovation. With planning permission already secured for the construction of three modern dwellings, your vision for this property can come to life.
Easily accessible amenities are just a short drive away; Paddock Wood boasts a Waitrose and mainline train services to London, while the surrounding villages provide community-centric conveniences such as a primary school, local pubs, and various recreational options. Additionally, you'll benefit from a tranquil lifestyle enveloped in nature, complemented by a low crime rate and a strong community vibe. This is a rare opportunity to invest in a property that promises not only comfort but also potential for future growth. Don't miss out on this exclusive chance—schedule your viewing today!
5 bedroom detached house for sale in Knowle Road, Brenchley, TN12 — £750,000 • 5 bed • 3 bath • 3500 ft²
Plot for sale in Plot 2, Lytlewood & Russettings, Riding Lane, Hildenborough, TN11 — £675,000 • 1 bed • 1 bath • 542 ft²
Land for sale in Planning Application: 24/02429/FULL DEVELOPMENT OPPORTUNITY – Chantlers Hill, Paddock Wood, Tonbridge, Kent, TN12 6LU, TN12 — £350,000 • 3 bed • 2 bath
4 bedroom detached house for sale in Windmill Hill, Brenchley, Tonbridge, Kent, TN12 — £700,000 • 4 bed • 1 bath • 3450 ft²
Land for sale in Bankside, Goudhurst Road, Cranbrook, Kent. TN17 2PZ, TN17 — £950,000 • 4 bed • 5 bath • 4700 ft²
3 bedroom barn conversion for sale in Hawkbrand House, Knowle Road, TN12 — £325,000 • 3 bed • 2 bath • 1600 ft²


































