RG20 9JZ - Office for sale in Business Hub, Harts Lane, Burghclere, RG…

View on Property Piper

Office for sale in Business Hub, Harts Lane, Burghclere, RG20 9JZ, RG20

Summary - BEACON HOUSE, HARTS LANE RG20 9JZ

1 bed 1 bath Office

**Standout Features:**
- Modern office unit in an affluent village setting
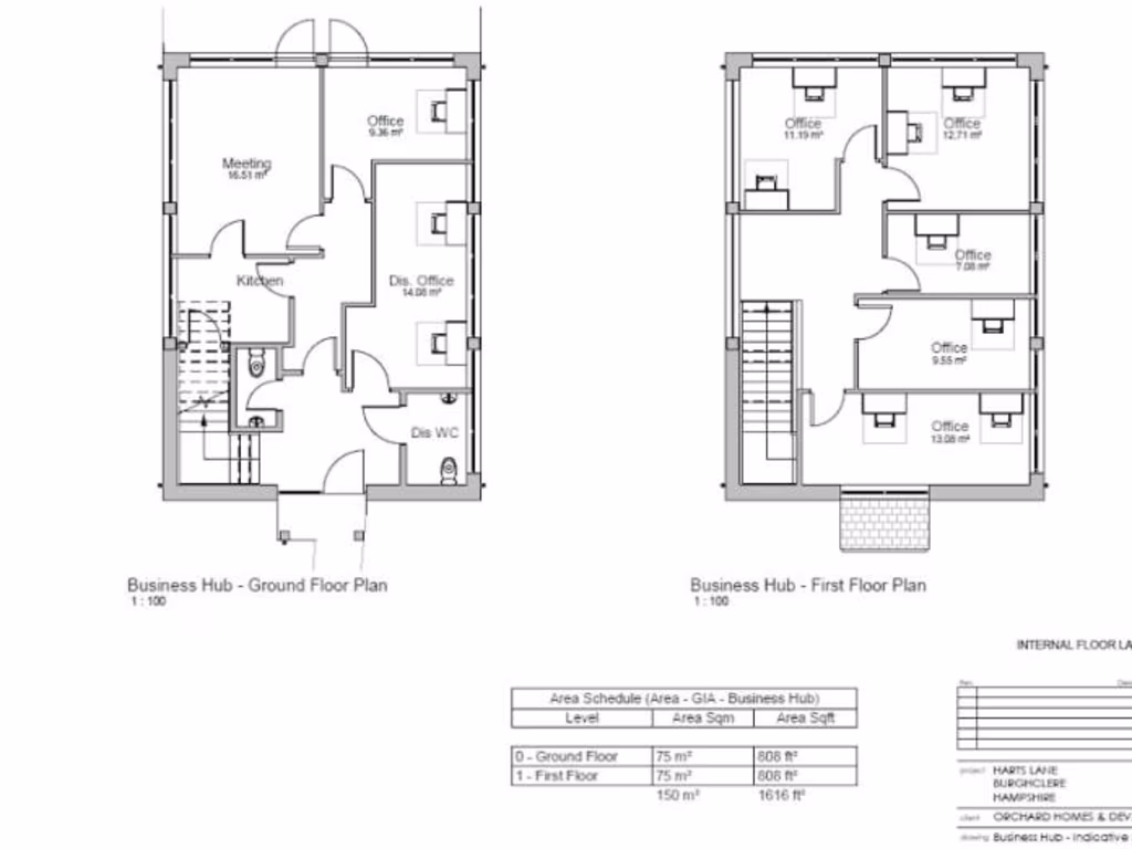
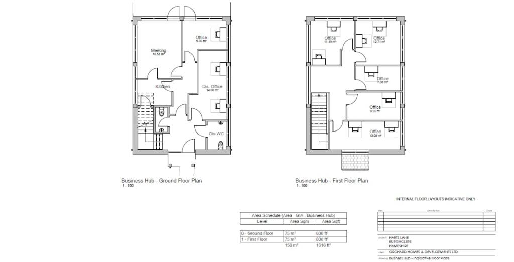
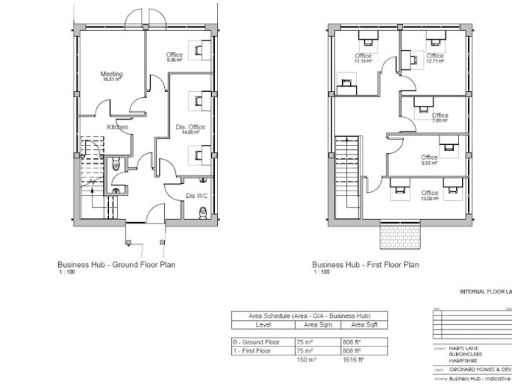
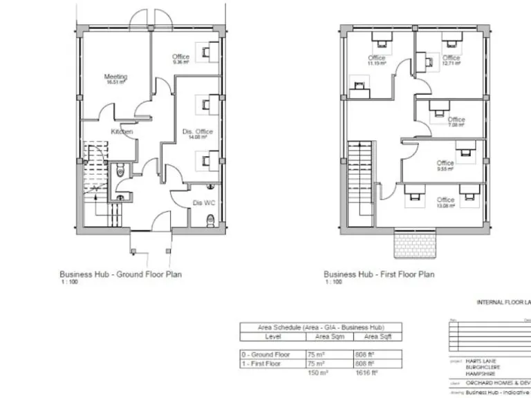
- Total area: 1,616 sq ft
- Convenient transport links via A34, M3 & M4 motorways
- Surrounded by a residential development of 17 homes
- Suitable for various commercial uses, subject to planning approval
- Freehold proposals available with potential restrictions
- Excellent mobile signal; average broadband speeds
- Low crime rate in the area

**Summary:**
The Business Hub in Burghclere offers a unique opportunity for investors or small businesses seeking a contemporary office space in a charming rural village. With a generous total space of 1,616 square feet, this modern unit is thoughtfully designed for practicality, featuring brick and glass elements that blend well with the serene surroundings. The property is perfectly positioned within a residential development and provides easy access to main transport routes, just 4 miles from Newbury Town Centre, connecting you directly to London via rail.

While the office is currently a blank canvas, its flexible zoning permits a variety of commercial uses, making it a compelling investment opportunity. However, potential buyers should explore planning permissions for any desired changes. The tranquil village atmosphere—complete with local amenities like a pub, schools, and a place of worship—creates a comfortable working environment away from the hustle and bustle of city life. Take advantage of this chance to secure a modern business unit in a desirable location before it’s gone!

Property Details

Brochure Descriptions

Image Descriptions

Textual Property Features

Detected Visual Features

Nearby Schools

Nearest Bars And Restaurants

,,,,}

Nearest General Shops

,,}

Nearest Grocery shops

,,}

Nearest Supermarkets

,,}

Nearest Religious buildings

,,}

Nearest Medical buildings

,,,}

Nearest Leisure Facilities

,,,,}

Nearest Tourist attractions

,,}

Nearest Train stations

,,,,}

Nearest Bus stations and stops

,,,,}

Nearest Hotels

,,}

Tags

Local Market Stats

Similar Properties

Meta

High Res Images

Compatible Images

Low res Images

Thumbnails

Raw Images