Quiet conservation-area home with scope to extend and add value.
Bright reception with period bay window and high ceilings
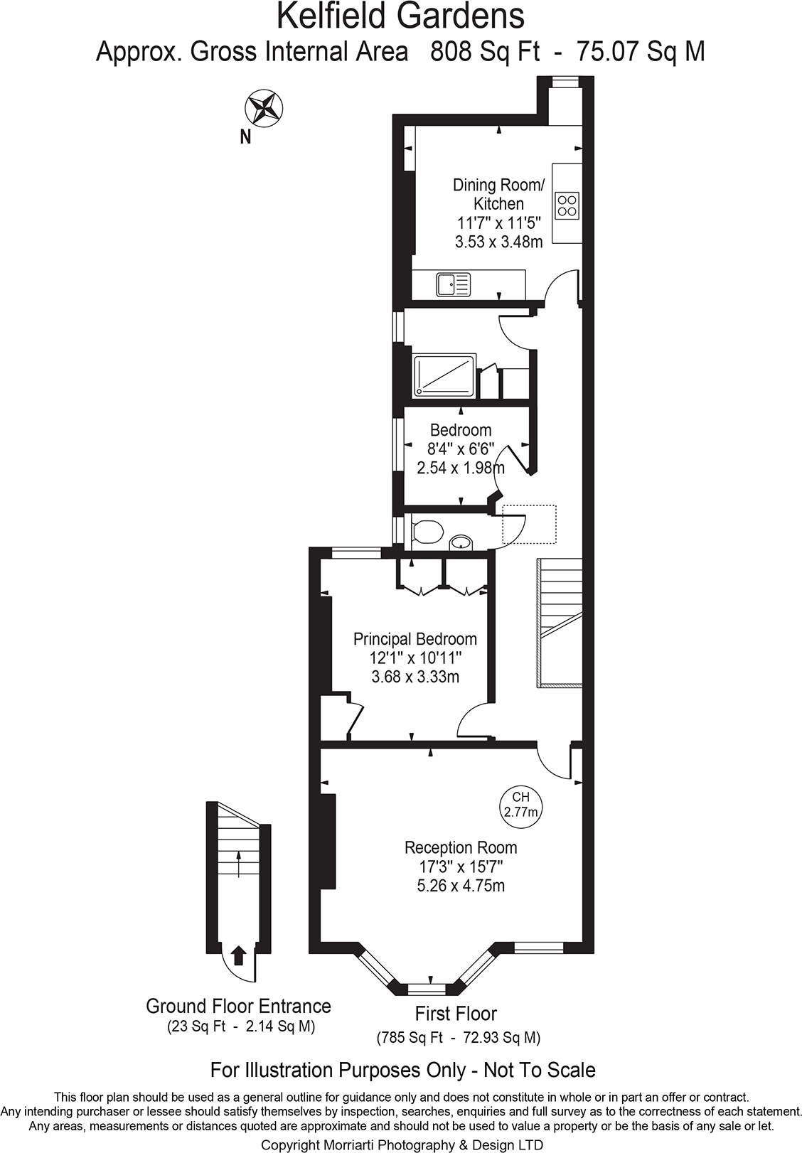
Two double bedrooms with scope to reconfigure
Share of freehold tenure provides ownership upside
Unmodernised throughout — requires full renovation work
Scope to extend into the loft subject to necessary consents
No visible rear garden; outdoor space is limited
Excellent transport links and close to Kensington Memorial Park
Area records above-average crime — consider security measures
Nestled within a handsome Edwardian terrace in the St Quintin Conservation Area, this two-bedroom apartment offers period charm and clear scope for value uplift. The reception room’s bay window, high ceilings and original fireplace create an elegant, light-filled living space that responds well to sympathetic refurbishment.
The layout includes a bright reception, kitchen/breakfast room, two bedrooms, bathroom and separate WC, arranged in a straightforward plan. The property is unmodernised and needs renovation throughout, making it ideal for a buyer looking to personalise finishes and improve rental or resale value. There is also scope to extend into the loft (subject to necessary planning and building consents) to materially increase usable floor area.
Practical strengths include a share of freehold tenure, a convenient W10 location close to Latimer Road station, Kensington Memorial Park and the amenities of Notting Hill. Broadband and mobile signal are strong, and the street is leafy and residential. Buyers should note the property is in an area with above-average crime and that there appears to be no rear garden; refurbishment costs and any loft-conversion works will require budgeting and planning approvals.
Overall this is a characterful West London home offering a clear route to add value through updating and sensible extension—well suited to buyers who want a project in a desirable conservation setting.
2 bedroom flat for sale in St Quintin Avenue, London, W10 — £800,000 • 2 bed • 1 bath • 702 ft²
2 bedroom flat for sale in St. Quintin Avenue, North Kensington, London W10 — £890,000 • 2 bed • 1 bath • 957 ft²
4 bedroom terraced house for sale in Highlever Road, London, W10 — £1,995,000 • 4 bed • 3 bath • 1964 ft²
2 bedroom flat for sale in Finstock Road, London, W10 — £1,000,000 • 2 bed • 1 bath • 739 ft²
2 bedroom apartment for sale in Russell Road, London, W14 8, W14 — £950,000 • 2 bed • 1 bath • 920 ft²
2 bedroom apartment for sale in St. Marks Road, North Kensington, W10 — £800,000 • 2 bed • 1 bath • 735 ft²


















































