Characterful two-bedroom with private garden near transport and shops.
Private rear garden — rare for a ground-floor London flat
Edwardian features: high ceilings, bay window, original mouldings
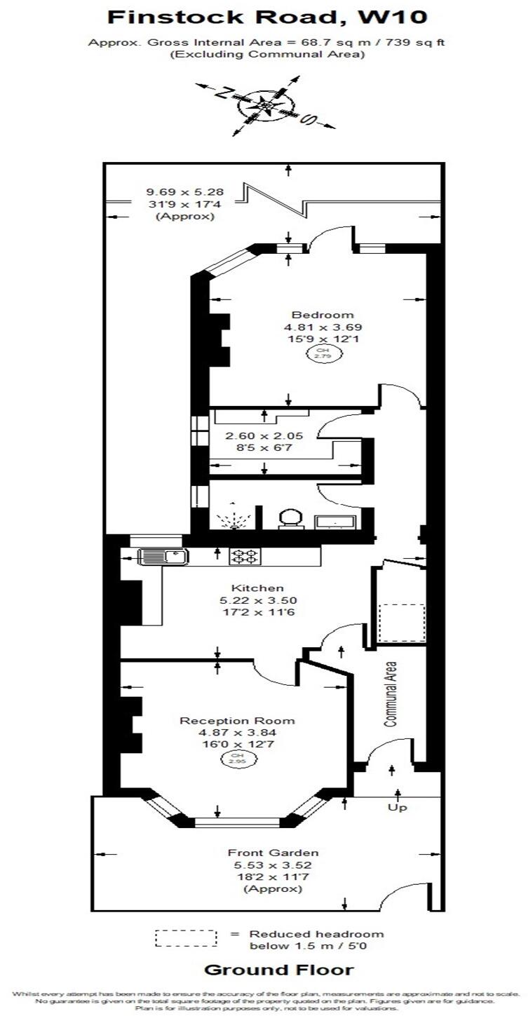
Approximately 739 sq ft; two bedrooms and separate reception
Contemporary kitchen with space for a dining table
Share of freehold with 998-year lease remaining
Walking distance to Ladbroke Grove and Latimer Road stations
Council tax above average; budget accordingly
Local crime levels above average; consider security measures
Set on the ground floor of an attractive Edwardian building in the St Quintin Conservation Area, this two-bedroom flat combines period charm with useful modern updates. High ceilings, a bay-windowed reception and original mouldings give the living space strong character, while a contemporary kitchen provides everyday practicality and room for dining.
A private rear garden is a rare find for a ground-floor London flat and extends usable living space during warmer months. The apartment is spacious at about 739 sq ft and comes with a very long lease and share of freehold, reducing typical leasehold constraints for first-time buyers.
Location is a key draw: walking distance to Ladbroke Grove and Latimer Road stations with easy access to Westfield, Portobello Road and local shops and cafés. Potential buyers should note practical downsides: council tax is above average, local crime statistics are above average, and the upper flat is also being sold, which may affect privacy and timing for renovations.
Overall, this is a characterful, well‑located starter home for someone who values period detail and outdoor space, and who is comfortable addressing minor cosmetic updates over time.
2 bedroom flat for sale in St. Quintin Avenue, North Kensington, London W10 — £890,000 • 2 bed • 1 bath • 957 ft²
2 bedroom flat for sale in St Quintin Avenue, London, W10 — £800,000 • 2 bed • 1 bath • 702 ft²
2 bedroom flat for sale in St Quintin Avenue, North Kensington, W10 — £700,000 • 2 bed • 1 bath • 700 ft²
2 bedroom flat for sale in Nightingale Road, London, NW10 — £500,000 • 2 bed • 1 bath • 768 ft²
2 bedroom flat for sale in St Quintin Avenue, North Kensington, London, W10 — £1,000,000 • 2 bed • 2 bath • 1067 ft²
2 bedroom flat for sale in St. Lukes Road, London, W11 — £735,000 • 2 bed • 1 bath • 725 ft²






























