WD3 4JX - 7 bed old farmstead estate in Farm Lane, WD3 4JX

View on Property Piper

7 bedroom detached house for sale in Farm Lane, Loudwater, Rickmansworth, WD3

Summary - THE OLD FARMSTEAD, FARM LANE, LOUDWATER WD3 4JX

7 bed 5 bath Detached

Substantial period home with annexes and large landscaped grounds near fast rail links.
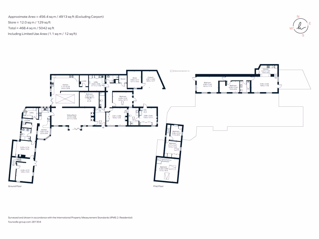
Approximately 4,913 sqft of flexible living space
Set well back in a private gated enclave, this substantial period property offers nearly 5,000 sq ft of flexible living across a main house and two independent annexes. The main residence impresses with a vaulted reception room and feature fireplace, a large kitchen/dining area with range oven, Aga and lantern skylight that opens onto meticulously landscaped gardens. Wellness facilities include three modern shower rooms plus a luxury sauna and steam room, ideal for multigenerational living or entertaining.

An attached three-bedroom annexe and a separate two-bedroom annexe provide genuine self-contained accommodation for extended family, guests or rental income. Practical benefits include triple glazing, solar panels, very large private gardens and off-street parking for several vehicles. The location on Loudwater Estate places the house equidistant to Rickmansworth and Chorleywood, with fast rail links to London and excellent local schools.

Buyers should note the property’s age and solid brick construction: insulation may be limited and some upgrading could be required to optimise energy efficiency. Heating uses a mix of boiler/radiators and electric systems, and the council tax band is described as quite expensive — both important running-cost considerations. Overall, the house is a rare and flexible estate for those seeking space, privacy and scope to modernise.

Property Details

Image Descriptions

Floorplan Description

Textual Property Features

Target Audience

AI Tags

Detected Visual Features

EPC Details

Nearby Schools

Nearest Bars And Restaurants

,,,,}

Nearest General Shops

,,}

Nearest Grocery shops

,,}

Nearest Supermarkets

,,}

Nearest Religious buildings

,,}

Nearest Medical buildings

,,,}

Nearest Airports

}

Nearest Leisure Facilities

,,,,}

Nearest Tourist attractions

,,}

Nearest Train stations

,,,,}

Nearest Bus stations and stops

,,,,}

Nearest Hotels

,,}

Tags

Local Market Stats

Similar Properties

Meta

High Res Images

Compatible Images

Low res Images

Thumbnails

Raw Images

High Res Floorplan Images

Compatible Floorplan Images

Low res Floorplan Images

FloorplanImages Thumbnail

Raw Floorplan Images