CF42 5ER - Land for sale in Corbett Street, Treherbert, CF42

View on Property Piper

Land for sale in Corbett Street, Treherbert, CF42

Summary - 34 34 Corbett Street, Treherbert CF42 5ER

1 bed 1 bath Land

**Standout Features:**

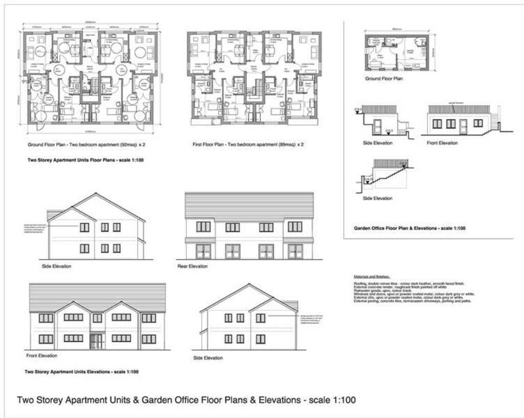
- Full planning permission for two blocks of residential apartments (planning no. 21/0665/10)
- Ideal for development into 8 self-contained apartments and support facilities
- Convenient location near A4061, with access to shops, schools, and local amenities
- Sizable plot includes off-street parking, gardens, and terraces
- Scenic views of the Rhondda valley and surrounding green spaces

**Notable Concerns:**
- Area classification indicates potential socio-economic challenges (ageing community)
- Broadband speeds currently slow

**Summary Description:**

Seize this unique opportunity to develop a prime plot of land on Corbett Street in Treherbert, complete with full planning permission for a residential care facility. The approved plans include two blocks of self-contained residential apartments with a total of eight two-bedroom units along with a dedicated support building featuring essential facilities like a laundry, office, and medical storage.

Nestled in a peaceful neighborhood, this elevated plot benefits from stunning views of the Rhondda valley and is surrounded by established roads, providing easy access to the nearby A4061. Local amenities, including shops and schools, cater to the community, making it an attractive option for potential residents. With ample parking and outdoor space for gardens and terraces, this development presents an exceptional opportunity to create a residential haven in a vibrant yet accessible location. Act quickly—properties with such potential in this serene setting don't last long!

Property Details

Brochure Descriptions

Image Descriptions

Textual Property Features

Detected Visual Features

Nearest Bars And Restaurants

,,,,}

Nearest General Shops

,,}

Nearest Grocery shops

,,}

Nearest Supermarkets

,,}

Nearest Religious buildings

,,}

Nearest Medical buildings

,,,}

Nearest Airports

}

Nearest Leisure Facilities

,,,,}

Nearest Tourist attractions

,,}

Nearest Train stations

,,,,}

Nearest Bus stations and stops

,,,,}

Nearest Hotels

,,}

Tags

Local Market Stats

AirBnB Data

Similar Properties

Meta

High Res Images

Compatible Images

Low res Images

Thumbnails

Raw Images