**Standout Features:**
- **Freehold Parcel**: Complete ownership of the land.
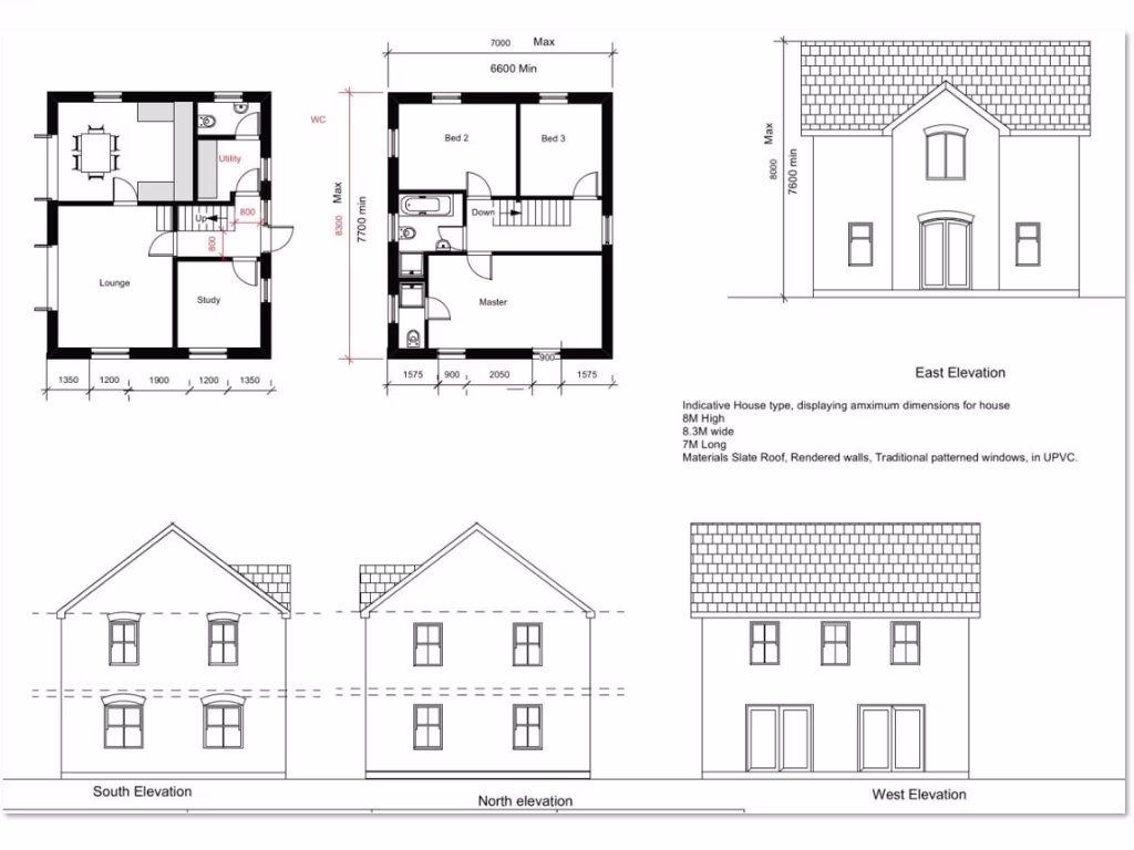
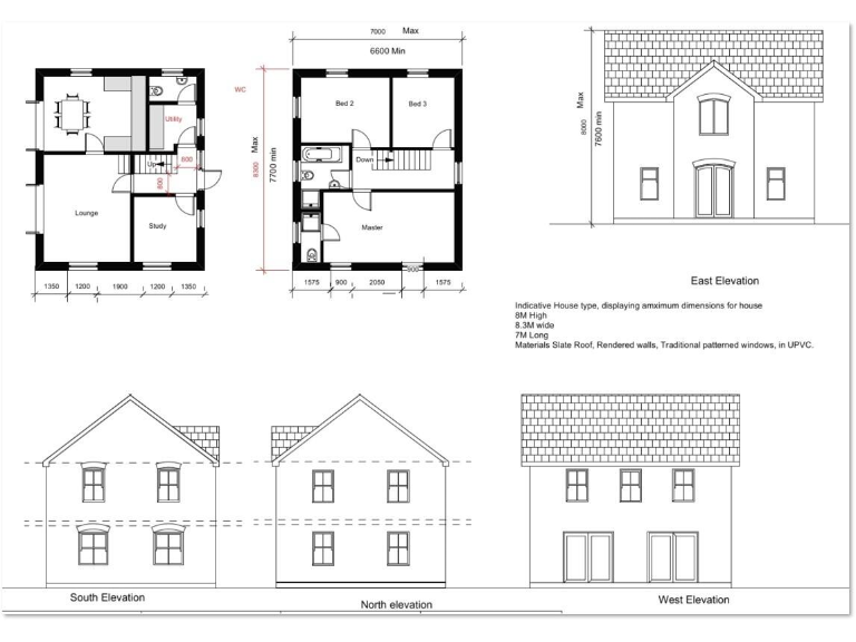
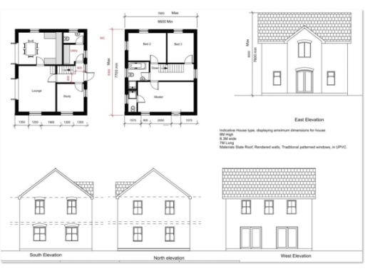
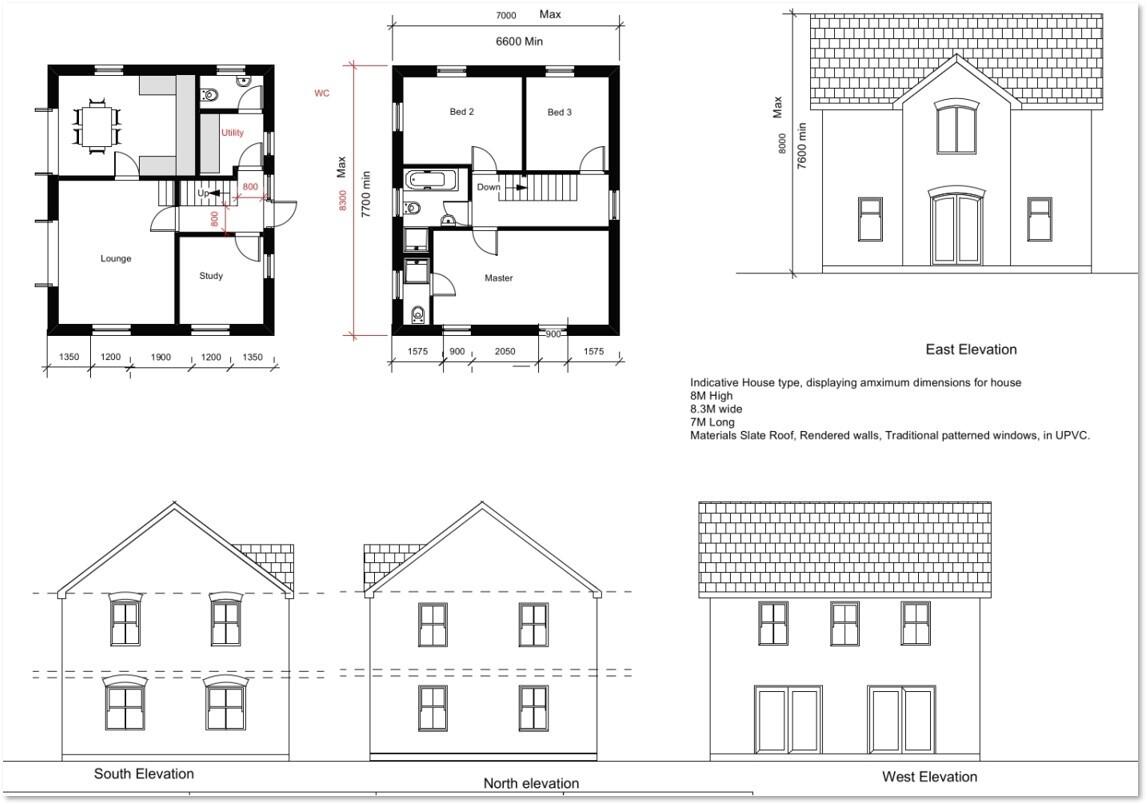
- **Planning Approved**: Permission granted for a 3-bedroom detached house (Application No. 24/0696/OUT).
- **Decent Plot Size**: Approximately 0.065 acres, ideal for residential development.
- **Low Crime Rate**: Located in a safe, suburban community.
**Potential Downsides:**
- **Derelict Condition**: Currently an overgrown, unmaintained plot.
- **Broadband Speed**: Slow internet connectivity may be a concern for some buyers.
**Summary:**
Unlock your vision for the future with this prime piece of freehold land located in the heart of CF41 7PW. With planning permission already approved for a detached three-bedroom house, this property represents a rare opportunity for investors or first-time buyers seeking to make their mark. Measuring approximately 0.065 acres, the rectangular plot is conveniently situated facing Ystrad Road, enhancing its accessibility.
While the site is currently derelict and overgrown, this presents a unique renovation opportunity to create a home tailored to your preferences. The low crime rate in this suburban community adds to its charm, making it an excellent location for families or those looking to invest in a growing area. Don't miss this chance—such development opportunities are hard to find, especially at an attractive price of £60,000. Envision your future here and seize the potential of this land today!
Land for sale in 57-61 Ernest Street, Merthyr Tydfil, CF47 — £50,000 • 1 bed • 1 bath
Land for sale in Land at High Street, Ynysybwl, Rhondda Cynon Taff, CF37 — £85,000 • 1 bed • 1 bath
Land for sale in Pleasant View Tonypandy, Tonypandy, CF40 — £24,995 • 1 bed • 1 bath
Land for sale in East Road, Tylorstown, Ferndale, CF43 — £60,000 • 1 bed • 1 bath
Land for sale in Building Plot Valley View, Abercynon, Mountain Ash, CF45 — £65,000 • 1 bed • 1 bath
Plot for sale in Building plot- Land-Site adjacent to Priddfaen Goch, Dan-y Coedcae Road, Graig, Pontypridd, CF37 — £125,000 • 1 bed • 1 bath


















