**Standout Features:**
- **Property Type:** Freehold land with approved planning permission
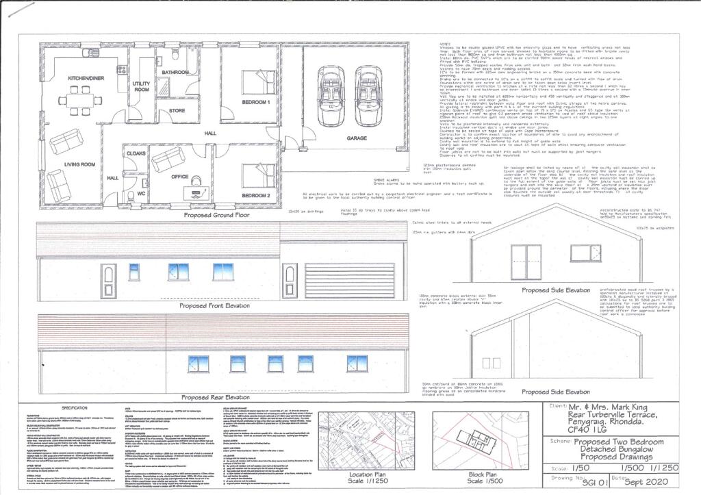
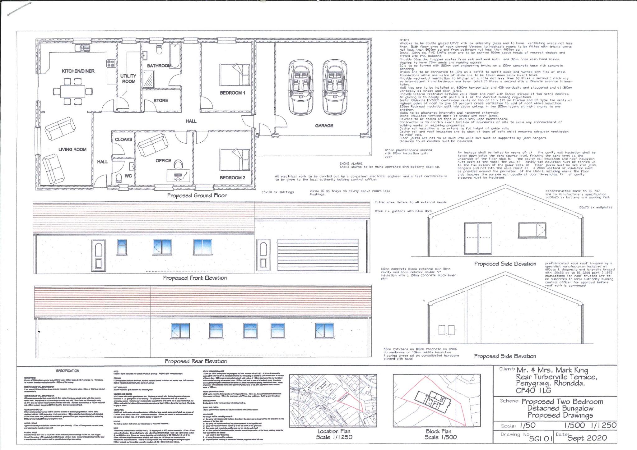
- **Planned Development:** Two-bedroom bungalow with integral double garage
- **Proposed Layout:** Open concept living area, utility room, and office/snug
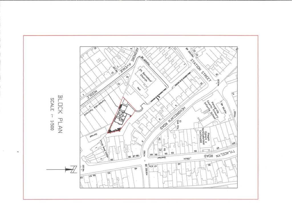
- **Size:** Spacious 5,726 sq ft plot in a city location
- **Accessibility:** Close proximity to local shops, schools, and transport links (bus and rail)
- **Area Info:** Situated in Penygraig, a community with significant residential potential
- **Price:** Affordable at £55,000, ideal for first-time buyers or investors
**Summary:**
Discover a unique investment opportunity in the heart of Penygraig with this generous 5,726 sq ft freehold plot of land. With full planning permission for a two-bedroom bungalow featuring an integral double garage, this property allows you to design your ideal living space. The proposed open-concept layout includes a lounge, kitchen/diner, utility room, and additional office/snug, catering to modern lifestyle demands.
Conveniently located near local amenities including shops, schools, and leisure facilities, this plot is well-connected to public transport and major roadways, ensuring ease of access to surrounding areas. While the community has an above-average crime rate and socio-economic challenges, the potential for development in a demanding market makes this a compelling option for both first-time buyers looking for a renovation project and seasoned investors seeking rental potential. Don’t miss this opportunity—planning details are available upon request, and properties like this in Penygraig are in high demand!
Land for sale in Bransby Road, Penygraig, CF40 1, CF40 — £55,000 • 1 bed • 1 bath
Land for sale in 57-61 Ernest Street, Merthyr Tydfil, CF47 — £50,000 • 1 bed • 1 bath
Plot for sale in Lewis Terrace, Porth, CF39 — £18,000 • 1 bed • 1 bath
Land for sale in Land at High Street, Ynysybwl, Rhondda Cynon Taff, CF37 — £85,000 • 1 bed • 1 bath
Land for sale in Ystrad Road, Pentre, CF41 — £60,000 • 1 bed • 1 bath • 902 ft²
Land for sale in Pleasant View Tonypandy, Tonypandy, CF40 — £24,995 • 1 bed • 1 bath














