Bright, efficient home with generous private lawn and EV-ready parking for growing households.
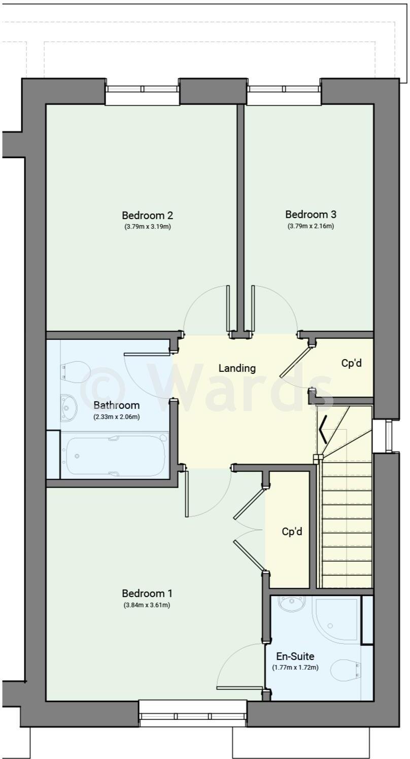
Three bedrooms and two bathrooms with ensuite to main bedroom
This newly built semi-detached home (2024) offers efficient, modern living across three bedrooms and two bathrooms. The entrance hall leads to a fitted kitchen with Bosch integrated appliances and an open-plan living/dining room with French doors to a generous, enclosed rear lawn and patio — good for families and entertaining. Practical touches include Hive smart heating, EV charging wiring at the allocated parking space, and quality Roca and Vado sanitaryware in bathroom and en-suite.
At about 535 sq ft, the property is compact; room sizes are well planned but purchasers should note the overall small internal footprint. The plot is described as large, providing an unusually generous garden for a property of this size. The home is freehold, gas-heated via boiler and radiators, and sits in a small town / town-fringe location with nearby primary and secondary schools rated Good by Ofsted.
This house suits first-time buyers or young families wanting a low-maintenance, move-in-ready home with modern energy controls and EV-ready parking. The local area is noted as deprived — consider this when assessing long-term value and local services. Flood risk is reported as none.
Buyers should verify all information independently, including dimensions and services. While fixtures and appliances are specified, their ongoing condition and any warranty terms should be checked at viewing or via paperwork.
 3 bedroom semi-detached house for sale in Maude Close, The Maude, New Romney, Kent, TN28 — £420,000 • 3 bed • 2 bath • 1140 ft²
 3 bedroom semi-detached house for sale in Maude Close, The Maude, New Romney, Kent, TN28 — £420,000 • 3 bed • 2 bath • 1140 ft² 4 bedroom semi-detached house for sale in Maude Close, The Maude, New Romney, Kent, TN28 — £485,000 • 4 bed • 2 bath • 1636 ft²
 4 bedroom semi-detached house for sale in Maude Close, The Maude, New Romney, Kent, TN28 — £485,000 • 4 bed • 2 bath • 1636 ft² 3 bedroom semi-detached house for sale in Maude Close, The Maude, New Romney, Kent, TN28 — £375,000 • 3 bed • 2 bath • 1095 ft²
 3 bedroom semi-detached house for sale in Maude Close, The Maude, New Romney, Kent, TN28 — £375,000 • 3 bed • 2 bath • 1095 ft² 3 bedroom semi-detached house for sale in Maude Close, The Maude, New Romney, Kent, TN28 — £248,000 • 3 bed • 2 bath • 1095 ft²
 3 bedroom semi-detached house for sale in Maude Close, The Maude, New Romney, Kent, TN28 — £248,000 • 3 bed • 2 bath • 1095 ft² 4 bedroom detached house for sale in The Maude, Maude Close, New Romney, Kent, TN28 — £545,000 • 4 bed • 2 bath • 1711 ft²
 4 bedroom detached house for sale in The Maude, Maude Close, New Romney, Kent, TN28 — £545,000 • 4 bed • 2 bath • 1711 ft² 4 bedroom semi-detached house for sale in Maude Close, The Maude, New Romney, Kent, TN28 — £320,500 • 4 bed • 2 bath • 1636 ft²
 4 bedroom semi-detached house for sale in Maude Close, The Maude, New Romney, Kent, TN28 — £320,500 • 4 bed • 2 bath • 1636 ft²






































































