Contemporary new build with large private garden and EV wiring.
Brand new 2024 semi-detached home, 1,095 sq ft
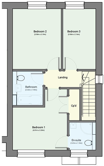
A modern three-bedroom semi-detached house completed in 2024, offering 1,095 sq ft of well-planned living across two floors. The open-plan ground floor has a fitted kitchen with Bosch integrated appliances and a living/dining room with French doors opening onto a large, landscaped rear garden. The property is freehold, fitted with elegant Roca and Vado sanitaryware, mains gas central heating and wiring for an EV charger.
This home is being marketed with a Home for Life Lifetime Lease example price of £248,000 for eligible buyers aged 60+ (typical saving around 33%); the full market price is £375,000. The Lifetime Lease lets an over‑60s buyer purchase a percentage share (up to 50%) of the property value instead of full market purchase — exact cost varies by age and circumstances. It remains possible to buy at full market value if not using the Lifetime Lease.
Practical positives include allocated off-street parking, a sizable garden and contemporary finishes throughout. The plot is notably large compared with the house footprint, offering scope for low-maintenance outdoor use or future landscaping. There is no reported flood risk.
Buyers should note the surrounding area is classified as deprived, which may affect local services and long-term resale dynamics. Internal images shown were of a show home and actual finishes/layouts may vary; interested parties should verify dimensions, fixtures, fittings and tenure details themselves.
3 bedroom semi-detached house for sale in Maude Close, The Maude, New Romney, Kent, TN28 — £375,000 • 3 bed • 2 bath • 1095 ft²
3 bedroom semi-detached house for sale in Maude Close, The Maude, New Romney, Kent, TN28 — £420,000 • 3 bed • 2 bath • 1140 ft²
4 bedroom semi-detached house for sale in Maude Close, The Maude, New Romney, Kent, TN28 — £485,000 • 4 bed • 2 bath • 1636 ft²
4 bedroom detached house for sale in The Maude, Maude Close, New Romney, Kent, TN28 — £545,000 • 4 bed • 2 bath • 1711 ft²
3 bedroom semi-detached house for sale in Dove Close, Hythe, Kent, CT21 — £231,500 • 3 bed • 2 bath • 1371 ft²
3 bedroom detached house for sale in Dymchurch Road,
Hythe,
Kent,
CT21 4AA, CT21 — £384,995 • 3 bed • 1 bath










































































