Develop a contemporary three-bedroom home close to Prestbury village and riverside views.
- Planning permission granted (Cheshire East ref: 20/3515M)
- Freehold large plot close to Prestbury village
- Riverside views to the rear
- Approved detached house ~1,485 sq ft (3 beds)
- Occasional lower-ground basement shown on plans
- Requires full build — construction costs not included
- Broadband slow; average mobile signal
- Very low crime in very affluent area
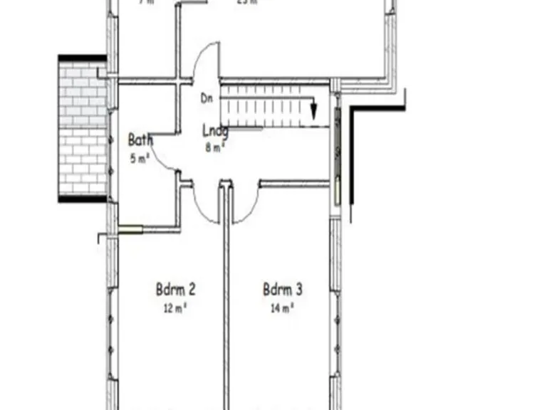
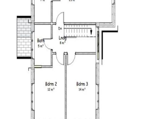
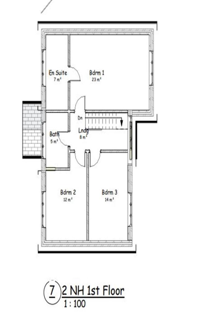
A rare parcel of freehold land in an affluent Prestbury setting, offered with full planning permission (Cheshire East ref: 20/3515M) for a modern detached house of about 1,485 sq ft. The approved scheme provides a ground-floor living room, kitchen, study, entrance WC and integral garage, plus three first-floor bedrooms (principal with en-suite) and a main bathroom. An occasional lower-ground basement is shown on the plans.
The plot sits close to Prestbury village with pleasant riverside views to the rear and off-street parking accessed from the front driveway. The area benefits from very low crime, good local schools and a settled, comfortable-suburban character — attractive for owner-occupiers or a small developer project.
Buyers should note this is a cleared development site requiring full construction works to implement the approved home; costs and build times will be additional to the purchase price. The basement shown on the plans may increase construction complexity and cost. Broadband speeds are reported as slow and average mobile signal should be expected.
Planning documentation and detailed drawings are available on the Cheshire East portal (ref: 20/3515M). The site is freehold, not in a flood-risk area, and represents a straightforward opportunity to deliver a contemporary detached family home in a highly desirable location.
5 bedroom detached house for sale in Prestbury Road, Wilmslow, Cheshire, SK9 — £1,595,000 • 5 bed • 4 bath • 603 ft²
Plot for sale in Coppice Road, SK12 — £900,000 • 1 bed • 1 bath
5 bedroom detached house for sale in Prestbury Road, Wilmslow, Cheshire, SK9 — £1,595,000 • 5 bed • 4 bath • 603 ft²
5 bedroom detached house for sale in PLOT Collar House Drive, Prestbury, SK10 — £2,575,000 • 5 bed • 1 bath • 9000 ft²
5 bedroom detached house for sale in Private Lane Off Prestbury Road, Over Alderley, Cheshire, SK10 — £1,000,000 • 5 bed • 4 bath • 4265 ft²
6 bedroom detached house for sale in Lacey Green, Wilmslow, Cheshire, SK9 — £499,950 • 6 bed • 3 bath • 4327 ft²


























