Rare 0.54-acre self-build plot with consent for a five-bed modern Regency home..
Planning permission granted (Cheshire East ref: 24/1000M)
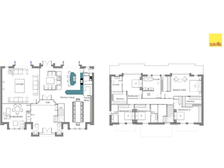
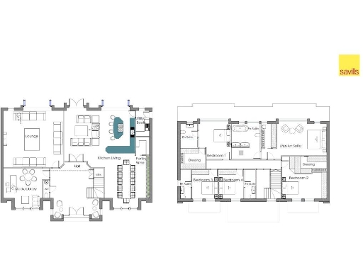
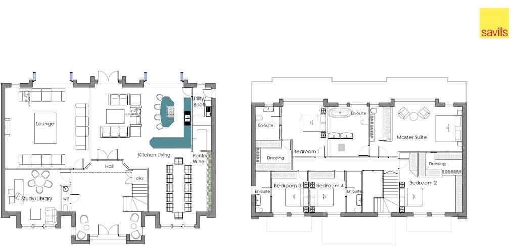
Plot 2, 9 Prestbury Road offers a rare self-build opportunity on a generous 0.54 acre plot with planning permission (Cheshire East ref: 24/1000M) for a striking five-bedroom, four-bathroom modern Regency residence. The consented design includes two formal reception rooms, a large open-plan living/dining/kitchen, utility/boot room, pantry, downstairs WC and a detached double garage — a layout aimed squarely at family life and entertaining.
Set on one of Wilmslow’s most desirable roads, the plot is around a mile from the town centre and train station with regular services to Manchester and London. Excellent local amenities, strong independent and state schooling close by, easy access to Bollin Valley countryside and Manchester Airport all add to the location’s pull for families and professionals.
The scheme includes a generous reception hall, galleried landing and the potential to create further accommodation in the roof space subject to design amendments and necessary consents — useful for households needing extra rooms. Practical notes: broadband speeds in the area are reported as slow despite excellent mobile signal; the overall advertised property size is listed as small, and council tax details are not provided.
This is a planning-led opportunity for a buyer wanting to build a substantial, contemporary Regency-style home in an affluent setting. Buyers should factor in build costs, any design changes for a second-floor conversion, and local service provision to fully realise the site’s potential.
5 bedroom detached house for sale in Prestbury Road, Wilmslow, Cheshire, SK9 — £1,595,000 • 5 bed • 4 bath • 603 ft²
6 bedroom detached house for sale in Lacey Green, Wilmslow, Cheshire, SK9 — £499,950 • 6 bed • 3 bath • 4327 ft²
Plot for sale in Lees Lane, Wilmslow, Cheshire, SK9 — £1,250,000 • 4 bed • 4 bath • 4638 ft²
Plot for sale in Building Plot Hawthorn Grove, Wilmslow, SK9 — £600,000 • 1 bed • 1 bath • 2066 ft²
Plot for sale in Coppice Road, SK12 — £900,000 • 1 bed • 1 bath
4 bedroom detached house for sale in Lees Lane, Wilmslow, Cheshire, SK9 — £1,250,000 • 4 bed • 4 bath • 4638 ft²


















