**Standout Features:**
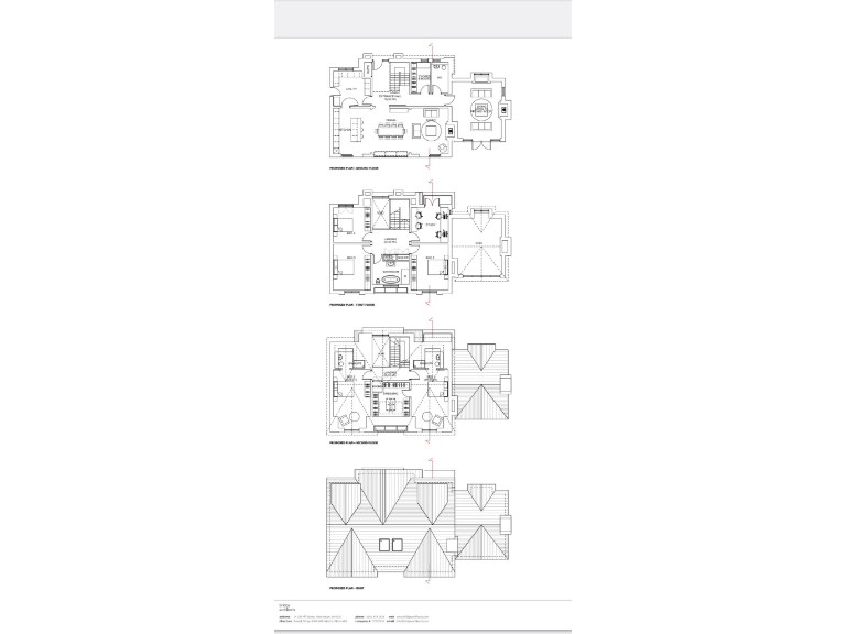
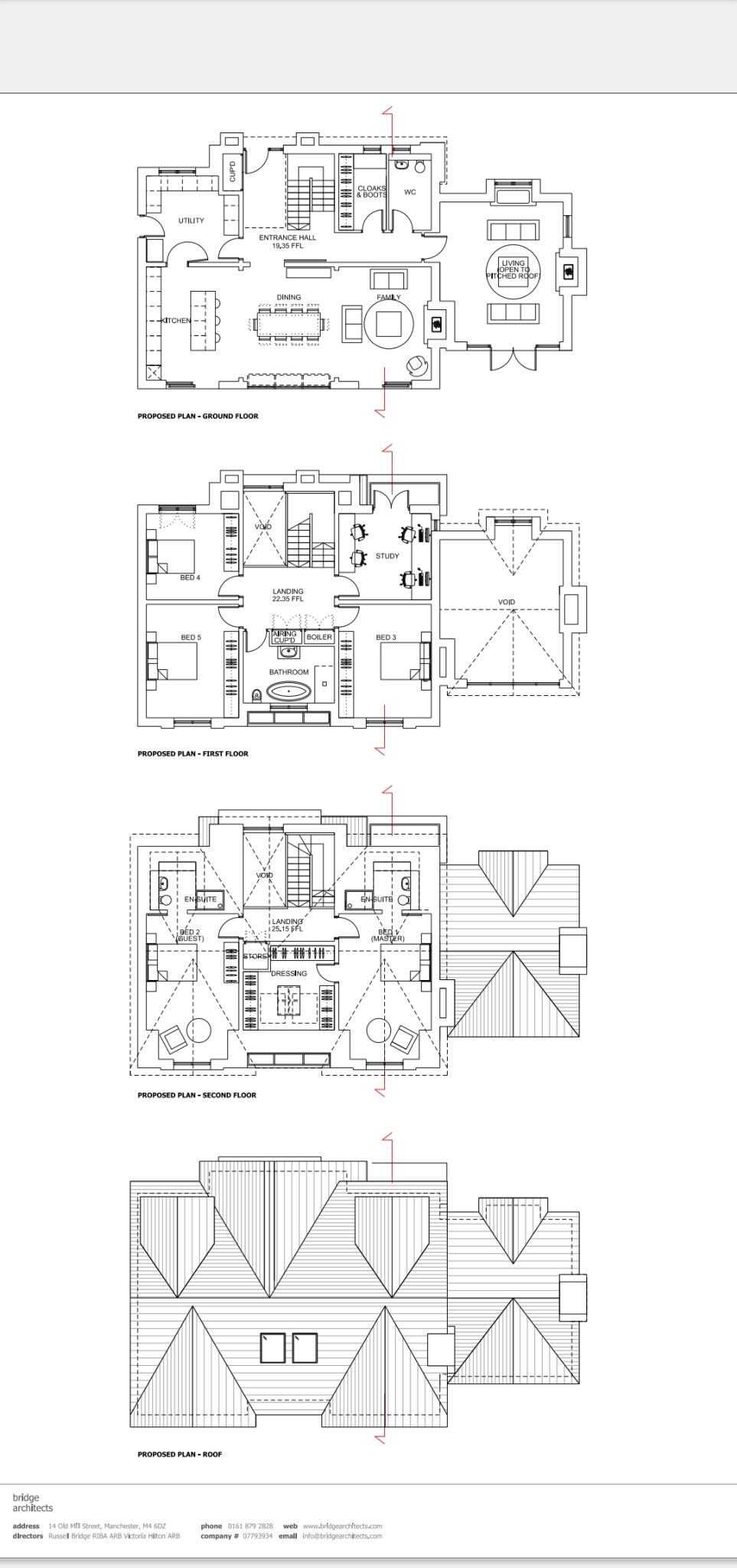
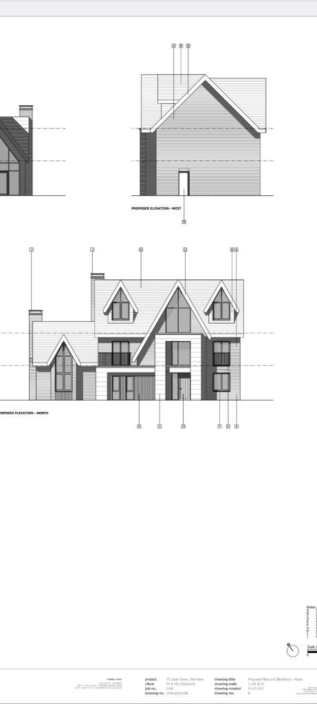
- Building plot with full planning permission granted for a bespoke detached home (Reference No. 24/0574M)
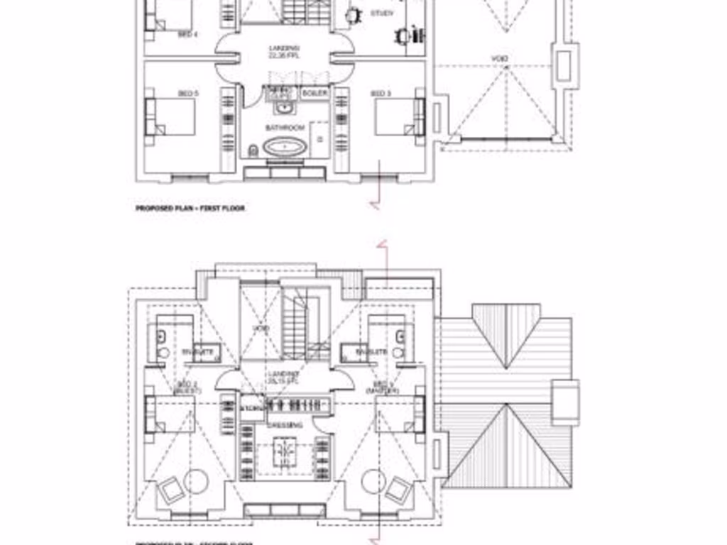
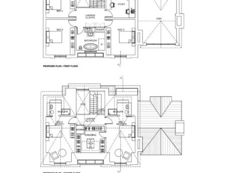
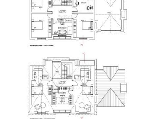
- Expansive total size of 4,327 sq ft, including a proposed 3,401 sq ft house and a 926 sq ft garage
- Private gated driveway leading to a secluded position
- Excellent location in Wilmslow, SK9 4BG, offering peace and privacy
- Quick access to top-rated local schools, perfect for families
**Summary:**
Don’t miss this rare opportunity to build your dream home in a tranquil and private setting off Lacey Green Road. This sizeable building plot comes with full planning permission to construct a stunning modern detached home, complete with garaging, allowing you to design a space that suits your lifestyle perfectly. The total area measures an impressive 4,327 sq ft, with the flexibility to create various configurations.
Located in Wilmslow, this plot is ideal for builders, developers, or self-builers looking for a prime piece of land in a sought-after area. Families will appreciate the proximity to excellent schools, while the private gated driveway enhances the feeling of exclusivity and security. Viewings are strictly by appointment, so act quickly to secure this exceptional property before it’s gone. Explore the potential of creating a sanctuary tailored to your desires—this opportunity won’t last long!
5 bedroom detached house for sale in Prestbury Road, Wilmslow, Cheshire, SK9 — £1,595,000 • 5 bed • 4 bath • 603 ft²
5 bedroom detached house for sale in Prestbury Road, Wilmslow, Cheshire, SK9 — £1,595,000 • 5 bed • 4 bath • 603 ft²
Plot for sale in Building Plot Hawthorn Grove, Wilmslow, SK9 — £600,000 • 1 bed • 1 bath • 2066 ft²
Plot for sale in Coppice Road, SK12 — £900,000 • 1 bed • 1 bath
Plot for sale in Lees Lane, Wilmslow, Cheshire, SK9 — £1,250,000 • 4 bed • 4 bath • 4638 ft²
4 bedroom detached house for sale in Lees Lane, Wilmslow, Cheshire, SK9 — £1,250,000 • 4 bed • 4 bath • 4638 ft²














































































































