Turnkey family living with large entertaining spaces and a sunny private garden.
- Newly renovated throughout to a high standard
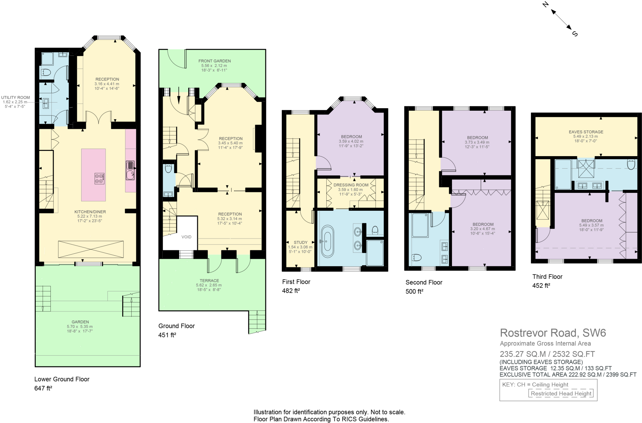
- Large footprint: approximately 2,532 sq ft across multiple storeys
- South-facing garden with full-height rear doors for indoor–outdoor flow
- Principal bedroom with dressing room, en suite and home office
- Lower-ground open-plan kitchen/dining, media room and utility
- Vendor-declared insurance claim for a past leak; may affect premiums
- No recorded central heating system (electric heaters assumed)
- Solid brick walls assumed with no cavity insulation; potential upgrade needed
A substantial four-bedroom mid-terraced townhouse arranged over multiple floors, newly renovated to a high standard and offering generous family accommodation across approximately 2,532 sq ft. The principal floor includes a bedroom with dressing room, luxurious en suite and a dedicated home office; three further bedrooms occupy the upper levels with two more bathrooms. The lower-ground level provides an impressive open-plan kitchen and dining space with bespoke units, central island and full-height doors that open onto a south-facing garden, plus a separate media room, utility and shower room.
This house benefits from strong natural light, high ceilings in the reception rooms, period character details and a contemporary finish throughout — an appealing combination for buyers seeking turnkey family living close to Fulham Road. Parsons Green amenities, riverside green spaces and outstanding local schools lie within easy reach, and Parsons Green station is about 0.4 miles away for District Line connections.
Important practical points are stated plainly: the vendor has declared a past insurance claim for a leak, which may increase premiums or affect some insurers; please discuss this with your solicitor and insurance broker. The property currently has no central heating system recorded (electric heaters assumed) and walls are assumed to be solid brick with no added cavity insulation, which may prompt future energy-efficiency works. The plot and front forecourt are modest in size and council tax is described as quite expensive.
Overall, this is a spacious, recently refurbished family home in a very desirable SW6 location, offering immediate move-in condition and good scope for buyer-led improvements to heating and insulation where required.
5 bedroom house for sale in Waldemar Avenue, London, SW6 — £2,600,000 • 5 bed • 3 bath • 2152 ft²
4 bedroom terraced house for sale in Pursers Cross Road, London, SW6 — £2,150,000 • 4 bed • 2 bath • 1667 ft²
4 bedroom terraced house for sale in Fulham Park Gardens, London, SW6 — £3,250,000 • 4 bed • 3 bath • 2874 ft²
6 bedroom terraced house for sale in Doria Road, Fulham, London, SW6 — £4,500,000 • 6 bed • 5 bath • 2969 ft²
5 bedroom terraced house for sale in Elthiron Road, London, SW6 — £2,750,000 • 5 bed • 4 bath • 2247 ft²
5 bedroom terraced house for sale in Felden Street, Fulham, London, SW6 — £2,650,000 • 5 bed • 3 bath • 2487 ft²






















































































































