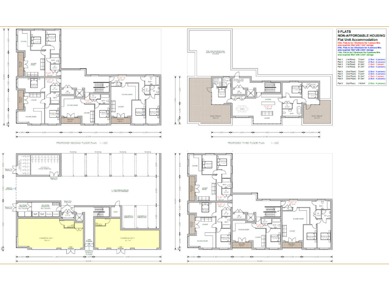
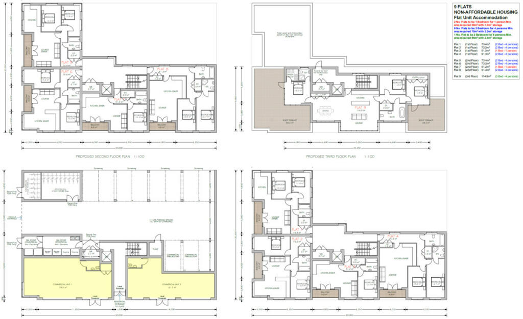
**Standout Features:**
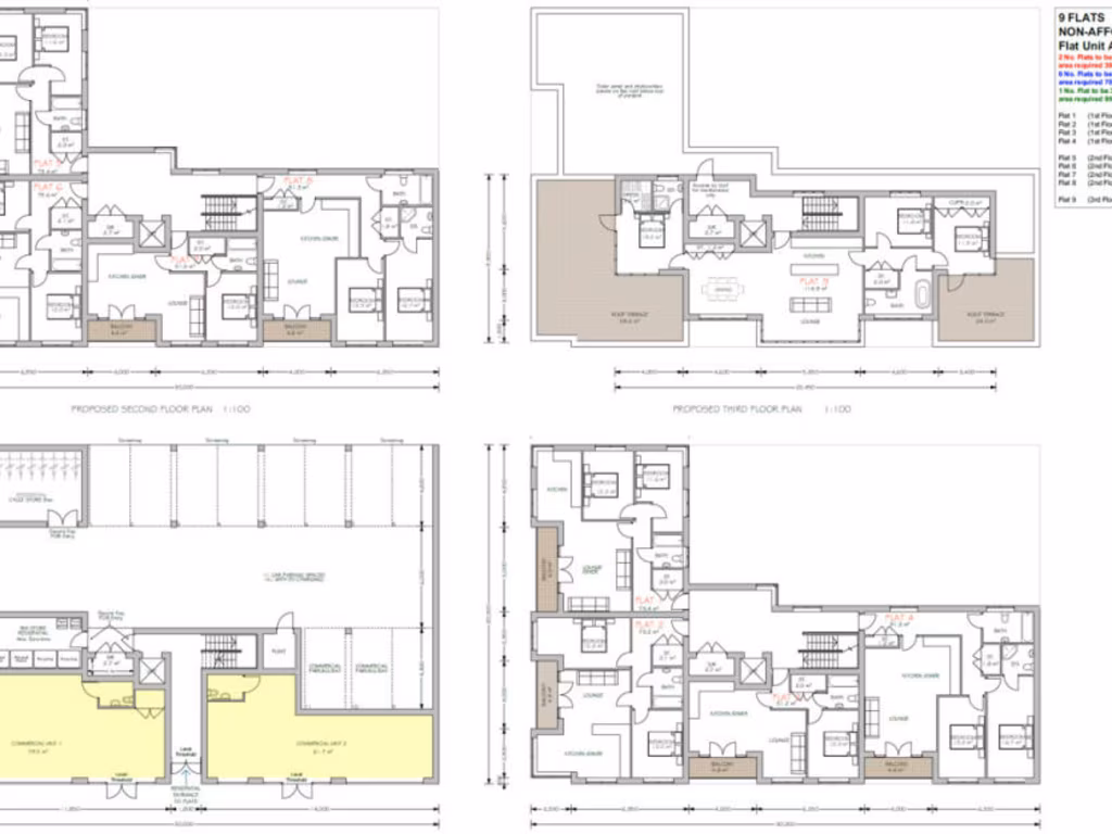
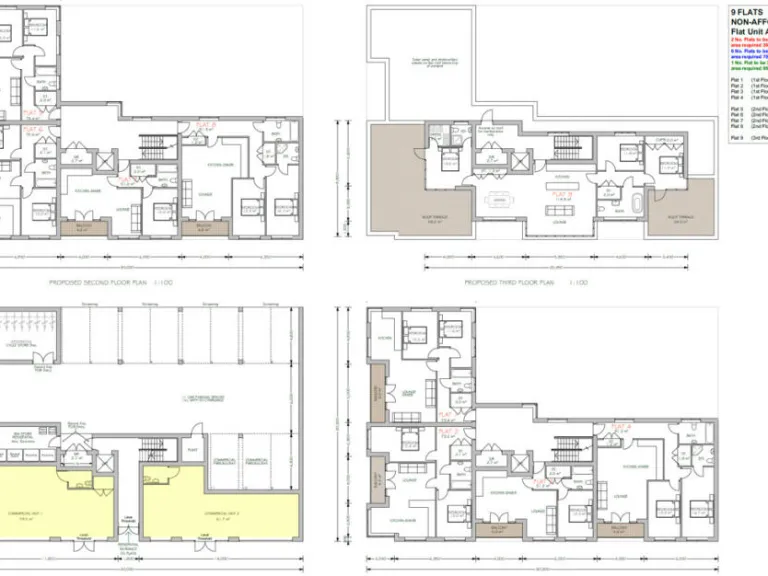
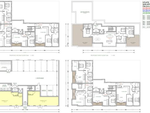
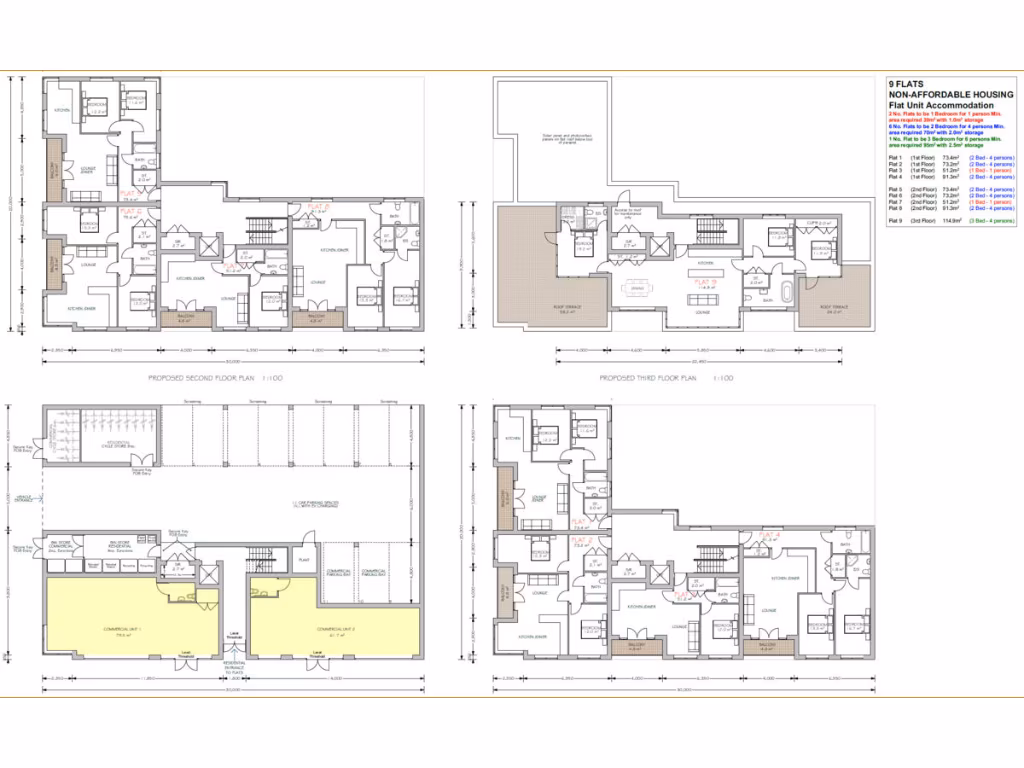
- New build site with planning permission for 9 apartments and 2 commercial units
- Prime location near Leigh-On-Sea Broadway with excellent connectivity to central London
- Modern design with private balconies for all apartments, including a luxurious penthouse
- Allocated parking spaces available
- Proximity to well-rated local schools and essential amenities
**Overview:**
Presenting a unique opportunity for investors and developers, this new build site on London Road in Leigh-on-Sea comes with planning permission for nine distinct apartments and two well-sized commercial units. Each apartment features private balconies, offering blessed outdoor space, with the highlight being a stunning three-bedroom penthouse complete with a sun terrace—perfect for those seeking luxurious living.
Strategically located just a stroll away from the vibrant Leigh-On-Sea Broadway, residents will enjoy easy access to shops, cafes, and bars, alongside quick connections via the London Fenchurch Street line. Families will also appreciate the area’s abundance of highly-rated schools, including outstanding secondary institutions.
However, potential buyers should note that the property has an above-average crime rate in the local area. The overall maintenance and structural elements will require careful consideration. As an attractive package for both residential and commercial use, this exceptional site offers the chance to create a thriving community. Don’t miss out on exploring the potentials of this prime property—invest today to secure your future in a desirable coastal location.
Land for sale in West Road, Westcliff-on-sea, SS0 — £900,000 • 1 bed • 1 bath • 12500 ft²
Commercial development for sale in Lot, 22-26 Leigh Hill, Leigh-on-Sea SS9 2DN, SS9 — £1,250,000 • 1 bed • 1 bath • 4356 ft²
Plot for sale in Alexandra Street, Southend-On-Sea, SS1 — £2,250,000 • 27 bed • 27 bath
Land for sale in Sutton Road, Southend-on-sea, SS2 — £800,000 • 1 bed • 1 bath • 16242 ft²
Property for sale in London Road, Southend-On-Sea, SS1 — £1,050,000 • 1 bed • 1 bath
Land for sale in Leigh Hill, Leigh-On-Sea, SS9 — £1,250,000 • 1 bed • 1 bath • 3000 ft²






















