W8 6JH - 2 bed light filled kensington flat in 69 Lexham Gardens, W8…

View on Property Piper

2 bedroom flat for sale in Lexham Gardens, Kensington, W8

Summary - Flat F, 69 Lexham Gardens W8 6JH

2 bed 1 bath Flat

Bright two-bedroom home in a prime central location with long leasehold security.
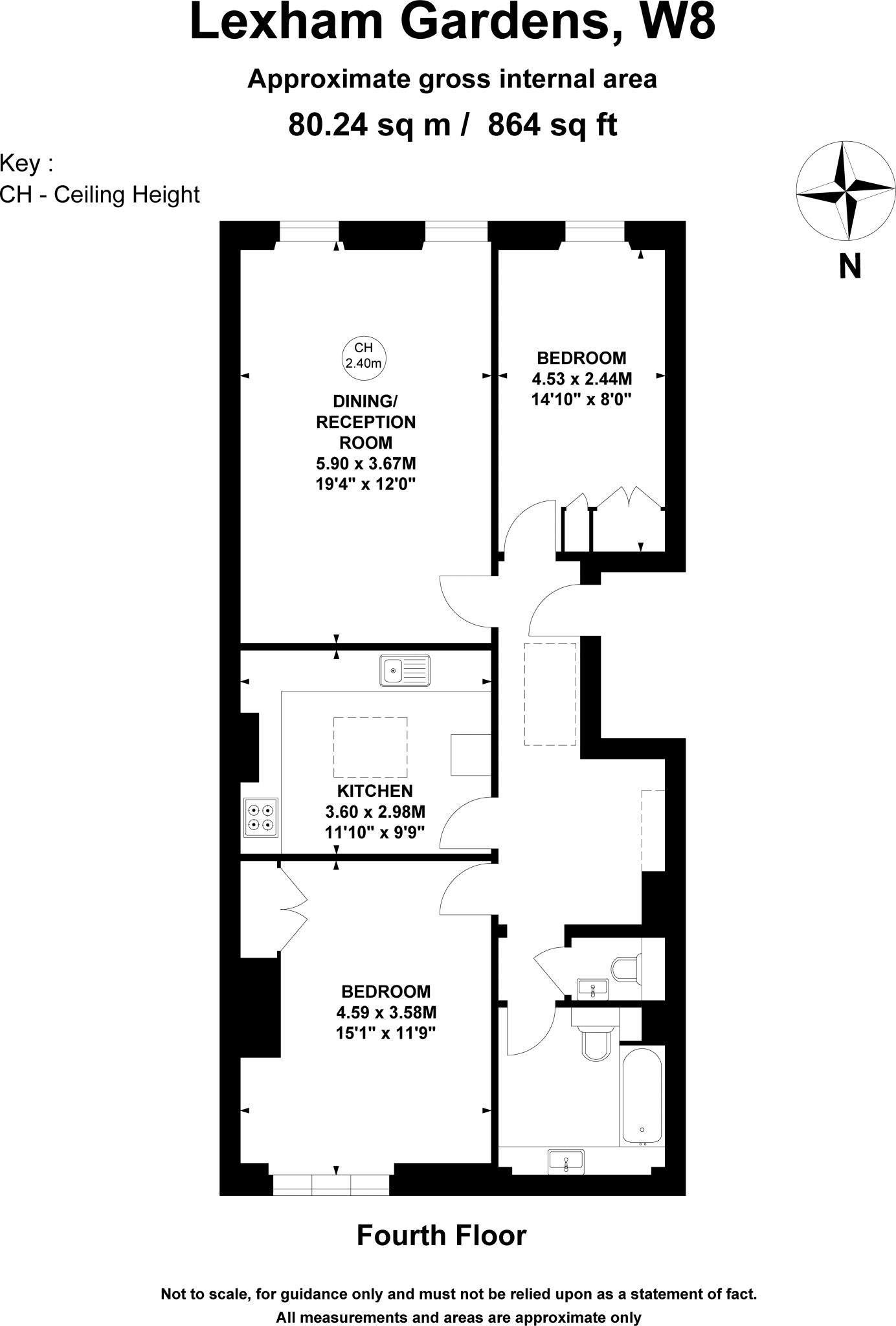
- Spacious 871 sq ft two-bedroom upper-floor flat with large reception room
- Share of freehold with very long lease (c.953 years)
- Excellent natural light from large windows throughout
- Separate kitchen; modern fittings but compact workspace
- Service charge approx £2,730 pa; ground rent £20 pa
- Council tax described as expensive
- Solid brick walls assumed uninsulated — potential energy upgrade needed
- Located in inner‑city Kensington with strong transport and amenities
Set on Lexham Gardens in Kensington, this upper‑floor two-bedroom apartment combines classic period charm with bright, modern interiors. The 871 sq ft layout centres on a generous dining/reception room and separate kitchen, providing flexible living space for everyday life or entertaining. Large windows flood the rooms with natural light and highlight original exterior features typical of the Victorian terrace.

The flat comes with a long lease (share of freehold) and effectively no short‑term lease risk, making it straightforward for buyers and investors. Running costs include an average annual service charge of £2,730 and a small ground rent of £20; council tax is noted as expensive. Heating is by mains gas boiler and radiators; glazing is double glazed though installation date is unknown.

Practical points to note: the building’s solid brick walls are assumed uninsulated, so there may be scope and cost to improve thermal efficiency. The apartment sits in an inner‑city, cosmopolitan area with excellent transport links, local amenities and top private and state schools nearby—appealing to professionals, small families and buy‑to‑let buyers seeking stable central London rental demand.

Overall, this is a well‑located, well‑proportioned two‑bedroom home that offers immediate comfort with scope for energy upgrades and cosmetic personalisation. Its location and long lease make it a pragmatic purchase for buyers prioritising position and light-filled living in Kensington.

Property Details

Brochure Descriptions

Image Descriptions

Floorplan Description

Rooms

Textual Property Features

Target Audience

AI Tags

Detected Visual Features

EPC Details

Nearby Schools

Nearest Bars And Restaurants

,,,,}

Nearest General Shops

,,}

Nearest Grocery shops

,,}

Nearest Supermarkets

,,}

Nearest Religious buildings

,,}

Nearest Medical buildings

,,,}

Nearest Airports

,,}

Nearest Leisure Facilities

,,,,}

Nearest Tourist attractions

,,}

Nearest Train stations

,,,,}

Nearest Bus stations and stops

,,,,}

Nearest Hotels

,,}

Tags

Local Market Stats

AirBnB Data

Similar Properties

Meta

High Res Images

Compatible Images

Low res Images

Thumbnails

Raw Images

High Res Floorplan Images

Compatible Floorplan Images

Low res Floorplan Images

FloorplanImages Thumbnail

Raw Floorplan Images