LL22 7SF - Office for sale in Pensarn Industrial Estate, Abergele, LL2…

View on Property Piper

Office for sale in Pensarn Industrial Estate, Abergele, LL22 7SF, LL22

Summary - Pensarn Industrial Estate, Abergele, LL22 7SF LL22 7SF

1 bed 1 bath Office

**Standout Features:**

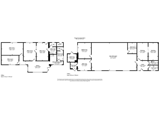
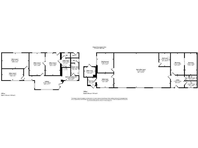
- Two spacious commercial units
- Total area of 2,811 sq. ft.
- Freehold tenure, great investment potential
- Large staff car park and easy access to A55 Expressway
- Proximity to Abergele and Pensarn train stations
- Multiple office and utility spaces

**Concise Summary:**

This exceptional freehold opportunity comprises two expansive commercial units situated in Pensarn Industrial Estate, Abergele, LL22 7SF. Ideal for investors and business owners alike, the properties offer an impressive total space of 2,811 sq. ft. with an open-plan office area, multiple meeting rooms, and a large workshop—creating a flexible environment suitable for various business needs. The sizeable staff parking and easy access to the A55 Expressway enhance convenience for both employees and clients.

While the units offer a robust industrial design, there's potential for modernization and customization to suit your specific requirements. Local amenities and transport links are just a short walk away, making it a practical choice for operations. Although the area has had high crime rates and lower broadband speeds, the solid construction and strategic location promise long-term value. Don’t miss out on this prime commercial investment—viewings are highly recommended to appreciate the full potential!

Property Details

Brochure Descriptions

Image Descriptions

Floorplan Description

Rooms

Textual Property Features

Detected Visual Features

Nearest Bars And Restaurants

,,,,}

Nearest General Shops

,,}

Nearest Grocery shops

,,}

Nearest Supermarkets

,,}

Nearest Religious buildings

,,}

Nearest Medical buildings

,,,}

Nearest Leisure Facilities

,,,,}

Nearest Tourist attractions

,,}

Nearest Train stations

,,,,}

Nearest Bus stations and stops

,,,,}

Nearest Hotels

,,}

Tags

Local Market Stats

Similar Properties

Meta

High Res Images

Compatible Images

Low res Images

Thumbnails

Raw Images

High Res Floorplan Images

Compatible Floorplan Images

Low res Floorplan Images

FloorplanImages Thumbnail

Raw Floorplan Images