New build village home with garage and garden, walkable to station.
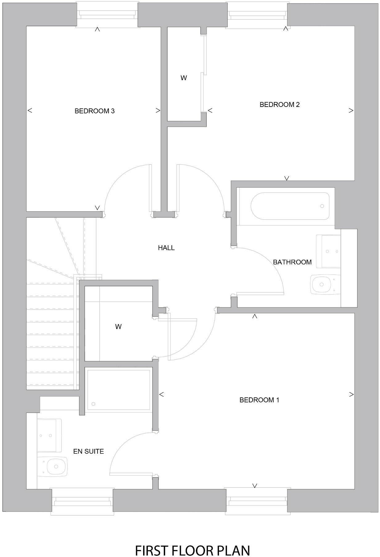
Three bedrooms, principal with en-suite and walk-in wardrobe
The Drummore is a newly built three-bedroom end-of-terrace home arranged over two floors, offering a family-friendly layout with an open-plan kitchen/dining room that opens directly to the garden and a separate living room to the front. The property measures about 1,053 sq ft and includes a principal bedroom with en-suite and walk-in wardrobe, a family bathroom, utility store and useful built-in storage throughout.
Specification highlights include a German-designed kitchen with Siemens appliances, fitted wardrobes in the principal bedroom, gas central heating with programmable controls, an EV charger duct to garage or private parking, and solar panels to help with energy efficiency. The home comes with a garage, private garden and fast broadband with excellent mobile signal.
This home sits in the second phase of a traditional-style Longniddry Village development, close to the village amenities and within walking distance of the train station, with planned communal features such as a play park, sports pitch and wildflower meadow. New buyers reserving selected plots before the end of November may qualify for up to £10,000 cashback, subject to entry deadlines and terms.
Important considerations: the development is in an area flagged as very deprived, which may affect local services and prices; buyers should check local school catchments and community plans. The property is freehold and sold as new build, so finishings and landscaping may still be completed by the developer.
3 bedroom end of terrace house for sale in Longniddry Village Phase 2,
Coal Road,
Longniddry,
EH32 0FP, EH32 — £402,500 • 3 bed • 2 bath • 1053 ft²
3 bedroom terraced house for sale in Longniddry Village Phase 2,
Coal Road,
Longniddry,
EH32 0FP, EH32 — £389,000 • 3 bed • 2 bath • 1053 ft²
3 bedroom terraced house for sale in Longniddry Village Phase 2,
Coal Road,
Longniddry,
EH32 0FP, EH32 — £380,000 • 3 bed • 2 bath • 1053 ft²
4 bedroom semi-detached house for sale in Longniddry Village Phase 2,
Coal Road,
Longniddry,
EH32 0FP, EH32 — £535,000 • 4 bed • 3 bath • 1561 ft²
3 bedroom end of terrace house for sale in Longniddry Village Phase 2,
Coal Road,
Longniddry,
EH32 0FP, EH32 — £399,000 • 3 bed • 2 bath • 1053 ft²
3 bedroom terraced house for sale in Longniddry Village Phase 2,
Coal Road,
Longniddry,
EH32 0FP, EH32 — £380,000 • 3 bed • 2 bath • 1053 ft²






























