**Standout Features:**
- Newly constructed 3-bedroom end-of-terrace home
- Modern designer German kitchen with Siemens appliances
- Bright, open-plan kitchen/dining area with garden access
- En-suite bedroom with walk-in wardrobe
- Energy-efficient with an EV charger duct ready for future installation
- Gas central heating with programmable controls
- Ample storage throughout, including a separate utility space
- Convenient parking options with an attached garage plus driveway
**Notable Concerns:**
- Newly developed area may result in ongoing construction nearby
- Potential for a lack of established community services initially
Welcome to your future family home in Longniddry Village, an enviable destination that marries modern comfort with traditional charm. This beautifully crafted 3-bedroom end-of-terrace house features a stylish German kitchen equipped with high-end Siemens appliances, perfect for culinary enthusiasts. The inviting open-plan design extends to a private garden, ideal for entertaining or unwinding after a long day.
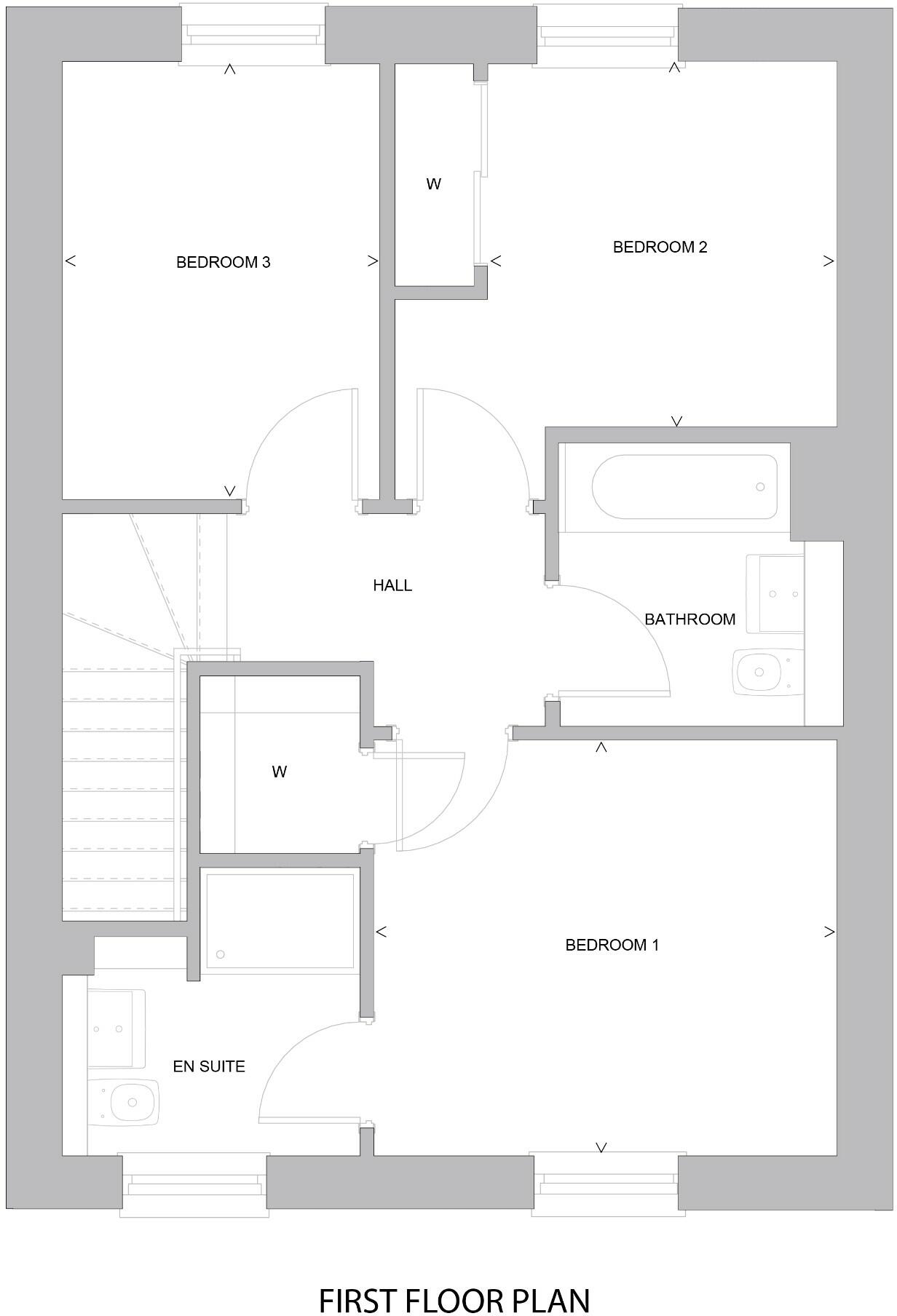
Upstairs, enjoy the luxury of a spacious master bedroom complete with an en-suite and walk-in wardrobe, along with two additional well-proportioned bedrooms and a family bathroom. With sustainable features like an EV charger duct and fast broadband, this home not only looks great but is set up for the future. Situated in a vibrant village community with conveniences just a walk away, including shops and schools, this property is perfect for families seeking both comfort and convenience.
Seize the opportunity to be part of this unique development while you can—this blend of contemporary design amidst East Lothian’s scenic backdrop is a rare find. Whether you envision cozy family dinners or weekend gatherings in your garden, this home is a canvas for your life. Don’t let this chance slip away!
3 bedroom end of terrace house for sale in Longniddry Village Phase 2,
Coal Road,
Longniddry,
EH32 0FP, EH32 — £389,000 • 3 bed • 2 bath • 1053 ft²
3 bedroom end of terrace house for sale in Longniddry Village Phase 2,
Coal Road,
Longniddry,
EH32 0FP, EH32 — £402,500 • 3 bed • 2 bath • 1053 ft²
3 bedroom terraced house for sale in Longniddry Village Phase 2,
Coal Road,
Longniddry,
EH32 0FP, EH32 — £399,000 • 3 bed • 2 bath • 1053 ft²
3 bedroom terraced house for sale in Longniddry Village Phase 2,
Coal Road,
Longniddry,
EH32 0FP, EH32 — £380,000 • 3 bed • 2 bath • 1053 ft²
3 bedroom terraced house for sale in Longniddry Village Phase 2,
Coal Road,
Longniddry,
EH32 0FP, EH32 — £389,000 • 3 bed • 2 bath • 1053 ft²
3 bedroom terraced house for sale in Longniddry Village Phase 2,
Coal Road,
Longniddry,
EH32 0FP, EH32 — £389,000 • 3 bed • 2 bath • 1053 ft²






























