CB24 5LT - 3 bedroom house for sale in Bridge Farm, Earith Road, Willi…

View on Property Piper

3 bedroom house for sale in Bridge Farm, Earith Road, Willingham, Cambridgeshire, CB24 5LT, CB24

Summary - Bridge Farm, Earith Road, Willingham CB24 5LT

3 bed 1 bath House

18.77 acres, equestrian facilities and planning consent — sold whole or in two lots..
- Total area 18.77 acres (available whole or in two lots)
- Lot 1: 3-bed cottage, yard, buildings and approx. 10.90 acres
- Lot 2: approx. 6.44 acres of Grade 2 grassland
- Existing planning consent for a 10-stable livery and menage
- Grain store and hay barn with three-phase electricity
- Cottage subject to Agricultural Occupancy Condition (restrictive)
- Nitrate Vulnerable Zone; drainage rates payable
- Very slow broadband; shared sewage treatment, EPC E
A rare smallholding opportunity set within 18.77 acres (7.59 ha) on Earith Road, offered either as a whole or in two lots. Lot 1 includes a three-bedroom semi-detached cottage, a large concrete yard, a substantial range of agricultural buildings, equestrian facilities and about 10.90 acres of Grade 2 grassland. Lot 2 offers a further c.6.44 acres of Grade 2 grassland, usable for grazing or hay.

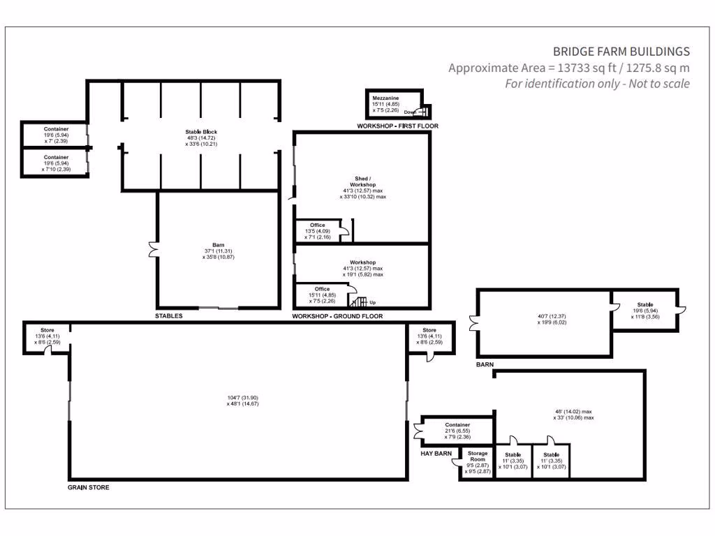
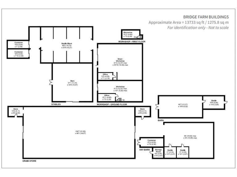
The buildings include a large grain store with three-phase power, workshop space, hay barn, timber barns and an eight‑stable block plus a 40m x 20m menage. Planning consent (Ref: 20/03848/FUL) already exists to operate a livery with ten stables and the menage — useful for equestrian or commercial diversification, subject to compliance with conditions. The cottage has a south-facing garden, garage and basic accommodation (kitchen, living room, utility; two doubles, one single and family bathroom).

Important constraints are explicit: the cottage is tied to an Agricultural Occupancy Condition (occupation restricted to those employed locally in agriculture/forestry), the property lies within a Nitrate Vulnerable Zone and drainage rates are payable to the local Internal Drainage Board. Services are basic: solid fuel heating with immersion for hot water, shared sewage treatment, and very slow broadband. The EPC rating for No.1 Bridge Farm Cottage is E.

This is a functional, established farmstead with immediate agricultural and equestrian utility, significant redevelopment or diversification potential (subject to planning), and clear legal/operational obligations that will suit someone seeking working farmland or an equestrian business rather than a commuter family home.

Property Details

Brochure Descriptions

Image Descriptions

Floorplan Description

Rooms

Textual Property Features

Target Audience

AI Tags

Detected Visual Features

EPC Details

Nearby Schools

Nearest Bars And Restaurants

,,,,}

Nearest General Shops

,,}

Nearest Grocery shops

,,}

Nearest Supermarkets

,,}

Nearest Religious buildings

,,}

Nearest Medical buildings

,,,}

Nearest Leisure Facilities

,,,,}

Nearest Tourist attractions

,,}

Nearest Train stations

,,,,}

Nearest Bus stations and stops

,,,,}

Nearest Hotels

,,}

Tags

Local Market Stats

Similar Properties

Meta

High Res Images

Compatible Images

Low res Images

Thumbnails

Raw Images

High Res Floorplan Images

Compatible Floorplan Images

Low res Floorplan Images

FloorplanImages Thumbnail

Raw Floorplan Images