**Standout Features:**
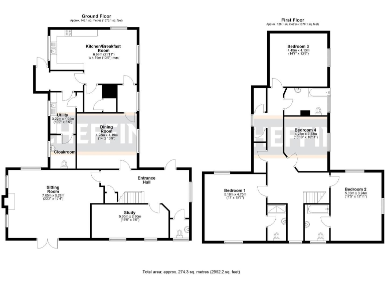
- Impressive 2,952 sq. ft. detached farmhouse on approximately 2.07 acres
- Four spacious double bedrooms, two with ensuite bathrooms
- Expansive living areas including a sitting room, dining room, study, and a large kitchen/dining room
- Detached barn with redevelopment potential, previously had lapsed planning consent
- Quiet rural location near Wicken Fen and Kingfisher Bridge Nature Reserve
- Mature gardens featuring natural ponds and extensive parking with a three-bay cart lodge
- No upward chain, offering a quick transition for keen buyers
Experience the charm and tranquility of this substantial detached farmhouse, perfect for families or those seeking a peaceful retreat. Spanning almost 3,000 square feet, the residence boasts generous living spaces, ensuring comfort and versatility for everyday life and entertaining. The countryside views are spectacular, providing a serene backdrop to your daily routine, while the expansive gardens offer plenty of room for outdoor enjoyment. With a detached barn awaiting your vision, there are opportunities to increase the property's value through redevelopment (subject to planning consent).
Positioned near beautiful natural reserves and within reach of local amenities, this home really captures the essence of rural living without sacrificing convenience. With no upward chain, now is the time to seize this unique opportunity to create your ideal countryside escape. Schedule a viewing today; properties of this caliber don’t stay on the market for long!
6 bedroom house for sale in Oak Lane, Littleport, Ely, CB6 — £850,000 • 6 bed • 4 bath • 2912 ft²
4 bedroom detached house for sale in Drury Lane, Wicken, Ely, CB7 — £800,000 • 4 bed • 3 bath • 2678 ft²
5 bedroom detached house for sale in Hasse Road, Soham, Ely, CB7 — £1,048,000 • 5 bed • 3 bath • 3708 ft²
4 bedroom detached house for sale in Grange Road, Wimblington, March, Cambs, PE15 0YH, PE15 — £858,500 • 4 bed • 3 bath • 1969 ft²
5 bedroom detached house for sale in Euximoor, Christchurch, Wisbech, PE14 — £750,000 • 5 bed • 2 bath • 3057 ft²
4 bedroom detached house for sale in White House Road, Little Ouse, Ely, CB7 — £550,000 • 4 bed • 3 bath • 2660 ft²






















































































































































