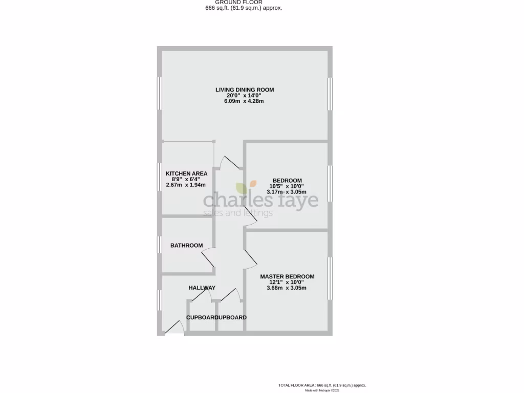
Light open-plan apartment ideal for first-time buyers or investors.
Open-plan dual-aspect living room with views over a green space
Two double bedrooms with hallway storage and airing cupboard
Allocated off-street parking space to the rear
uPVC double glazing; modern electric room heaters (no gas)
Leasehold with 104 years remaining; ground rent £125
Service charge approximately £1,680 per year
Total internal size ~666 sq ft — modest but well-planned
No flood risk; fast broadband and excellent mobile signal
This ground-floor apartment sits on Lansdowne Park and looks over a pleasant green — a straightforward, low-maintenance home for first-time buyers. The open-plan living, dining and fitted kitchen is bright and dual-aspect, giving a light, airy feel despite the apartment’s modest footprint.
The layout includes two double bedrooms, a modern bathroom and generous built-in storage in the hallway. Practical details are already in place: uPVC double glazing, secure entry phone, allocated off-street parking and good broadband and mobile signals.
Buyers should note this is a leasehold flat with 104 years remaining, an annual service charge around £1,680 and a small ground rent of £125. Heating is by modern electric room heaters rather than gas central heating — efficient for occasional use but potentially more costly for continuous heating.
Overall the property presents a sensible, competitively priced option at £160,000 for a first home or rental investment. It offers ready-to-live-in convenience with some running costs to factor into budgets (service charge, electric heating). No flooding risk and local schools and amenities are within reach.
2 bedroom ground floor flat for sale in Nuthatch Road, Calne, SN11 — £170,000 • 2 bed • 1 bath • 636 ft²
2 bedroom apartment for sale in Scholars Way, Melksham, SN12 — £156,850 • 2 bed • 1 bath • 541 ft²
2 bedroom flat for sale in Hercules Road, Calne, SN11 — £180,000 • 2 bed • 1 bath • 603 ft²
2 bedroom apartment for sale in Anson Avenue, Calne, SN11 — £160,000 • 2 bed • 1 bath • 570 ft²
2 bedroom apartment for sale in Hillier Road, Devizes, SN10 — £145,250 • 2 bed • 1 bath • 582 ft²
2 bedroom flat for sale in Buzzard Road, Calne, SN11 — £165,000 • 2 bed • 2 bath • 729 ft²


























































































