Well-located, chain-free one-bed with parking near Kingston and the Thames.
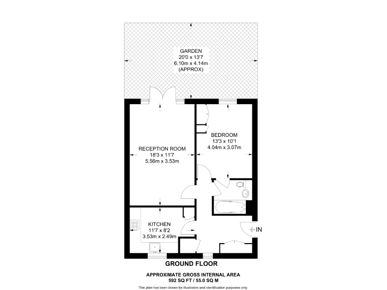
Ground-floor one-bedroom flat with garden access
A generous one-bedroom ground-floor flat in a secure, gated development moments from Canbury Gardens and the River Thames. The light-filled reception room opens onto a charming communal garden, providing outdoor space that’s rare for flats at this price. Allocated off-street parking adds practical convenience for drivers.
Internally the layout is sensible: a good-sized bedroom served by an en-suite/Jack-and-Jill bathroom, plus a separate, smart kitchen and comfortable living/dining area. The apartment sits within a relatively modern block (constructed 1996–2002) and benefits from double glazing and mains gas central heating via a boiler and radiators.
Practical matters to note: the property is leasehold with 96 years remaining and an average service charge of £2,244 per year. There is a medium flooding risk for the area; buyers should obtain specialist advice and appropriate insurance. Chain-free sale and excellent local transport links to Kingston station make this a straightforward purchase for a first-time buyer seeking a well-located, low-maintenance home with outside space.
1 bedroom flat for sale in Surbiton, Kingston Upon Thames, KT1 — £250,000 • 1 bed • 1 bath • 427 ft²
1 bedroom flat for sale in Albany Park Road, Kingston upon Thames, Greater London, KT2 — £310,000 • 1 bed • 1 bath • 526 ft²
1 bedroom flat for sale in Canbury Park Road, Kingston Upon Thames, KT2 — £375,000 • 1 bed • 1 bath • 582 ft²
1 bedroom flat for sale in Morecoombe Close, Kingston Hill, Kingston upon Thames, KT2 — £375,000 • 1 bed • 1 bath • 577 ft²
1 bedroom apartment for sale in Uxbridge Road, Kingston Upon Thames, KT1 — £300,000 • 1 bed • 1 bath • 415 ft²
3 bedroom apartment for sale in Samuel Gray Gardens, Kingston Upon Thames, KT2 — £775,000 • 3 bed • 2 bath • 1059 ft²


























