Ideal starter home near Kingston station with garden and parking.
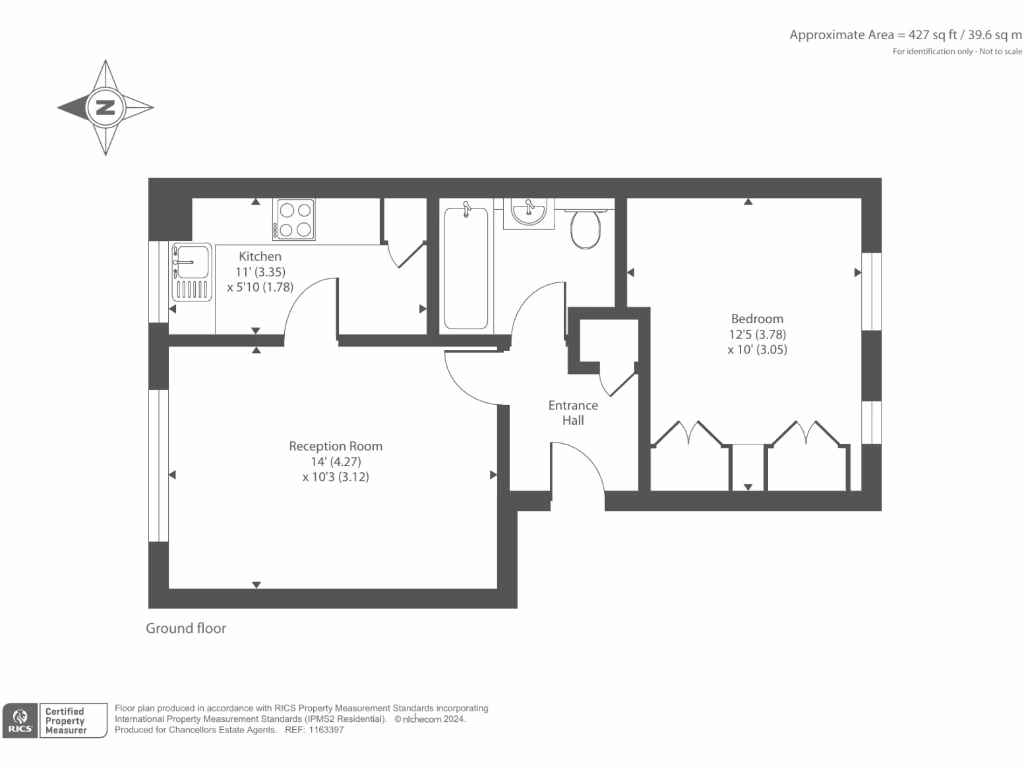
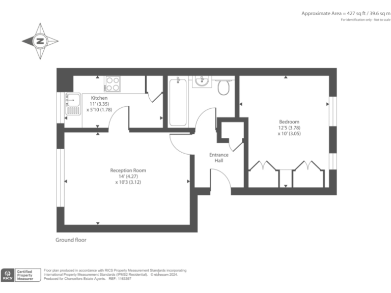
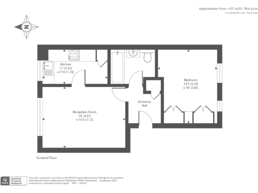
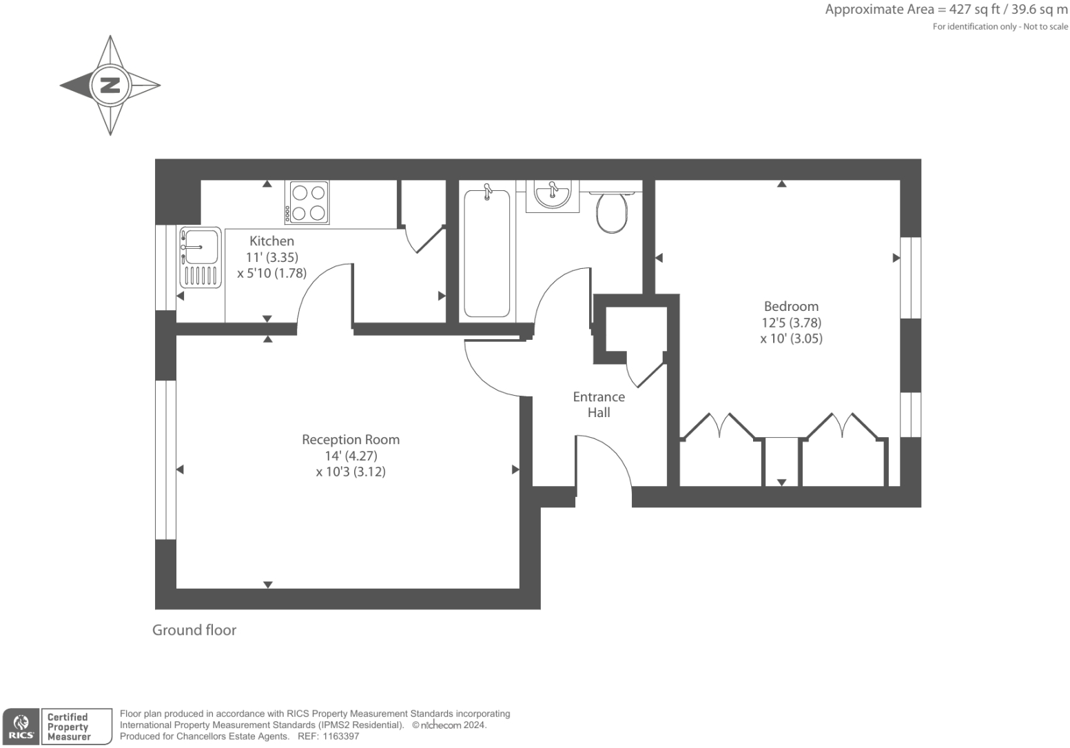
Chain-free one-bedroom ground-floor apartment
Bright, low-maintenance one-bedroom apartment offering straightforward access to Kingston town centre and London. The ground-floor layout includes a modern living room, double bedroom, fitted kitchen and a private garden — a rare outside space for flats in this area. Off-street parking and fast broadband make it practical for everyday life.
The property is sold chain-free with a long lease (around 988 years remaining) and a share of freehold, reducing long-term tenure risk for buyers. Electric storage heating and double glazing keep maintenance simple; council tax is described as affordable. Broadband speeds and mobile signal are excellent, supporting home working and streaming.
Notable cautions: the area records very high crime levels and the site has a medium flood risk, both of which should be investigated before purchase. The flat is small (about 427 sq ft) and uses electric heating, which may affect running costs. Overall, this suits a first-time buyer or investor seeking a convenient, easily managed property with garden and parking.
1 bedroom flat for sale in Kingsworthy Close, Kingston Up On Thames, Surrey, KT1 — £275,000 • 1 bed • 1 bath
1 bedroom flat for sale in Kingsworthy Close, Kingston Upon Thames, KT1 — £325,000 • 1 bed • 1 bath • 500 ft²
1 bedroom flat for sale in Samuel Gray Gardens, Kingston, Kingston upon Thames, KT2 — £375,000 • 1 bed • 1 bath • 592 ft²
1 bedroom flat for sale in Kingston upon Thames, Surrey, KT1 — £250,000 • 1 bed • 1 bath • 482 ft²
1 bedroom apartment for sale in Villiers Road, Kingston Upon Thames, KT1 — £300,000 • 1 bed • 1 bath • 444 ft²
1 bedroom flat for sale in Avanté Court, Kingston, Kingston upon Thames, KT1 — £350,000 • 1 bed • 1 bath • 524 ft²










































