Substantial development opportunity with character and flexible land options.
- Grade II listed farmhouse with character sash windows and fireplaces
- Main house about 3,424 sq ft across multiple storeys and attic
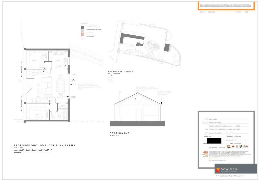
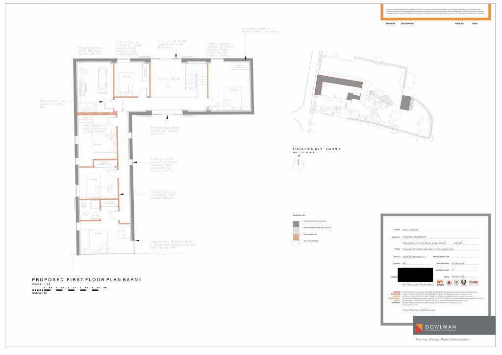
- Full PP to convert attached barn to 5-bed (3,326 sq ft)
- Full PP to convert detached barn to 2-bed (796 sq ft)
- Site extends to around 0.73 acres; further 8.4 acres available separately
- Single-glazed windows and dated fittings; significant renovation likely
- Listed status imposes additional consent and maintenance requirements
- Workshop and outbuildings offer further conversion potential
Village Farm is a substantial Grade II listed farmhouse set in about 0.73 acres in the heart of Eagle. The main house extends to around 3,424 sq ft with generous reception rooms, large attic spaces and character features such as sash windows and original fireplaces (some currently boarded). Single-glazed windows and dated fittings mean the house will benefit from sympathetic upgrading.
Two sizeable barns have full planning permission: Barn One to become a five-bedroom, 3,326 sq ft dwelling and Barn Two to become a two-bedroom, 796 sq ft dwelling. The site offers clear development value for an owner-occupier looking to create additional homes, or a specialist developer able to manage listed-building constraints and listed-status consent conditions.
The plot is very large with brick and pantile/slate outbuildings and scope to subdivide garden areas for the proposed conversions. A further 8.4 acres to the rear (and an adjoining yard) are available separately by negotiation, providing optional agricultural or recreational landholding.
Buyers should note the property’s listed status will complicate works, the house has many single-glazed windows and some rooms require substantial renovation. Services are mains water, electric, oil-fired heating and LPG for some appliances. The property is offered freehold with Council Tax Band C.
5 bedroom detached house for sale in Eagle Moor, Lincoln, LN6 — £1,075,000 • 5 bed • 4 bath • 4801 ft²
4 bedroom farm house for sale in Old Glebe Farmhouse (Barn One), Horncastle Lane, Lincoln, Lincolnshire, LN1 2SZ, LN1 — £620,000 • 4 bed • 3 bath • 2551 ft²
4 bedroom detached house for sale in Hall Farmhouse, Hall Drive, Canwick, Lincoln, Lincolnshire, LN4 2RG, LN4 — £850,000 • 4 bed • 2 bath • 2397 ft²
4 bedroom detached bungalow for sale in Scarle Lane, Eagle, Lincoln, Lincolnshire, LN6 — £350,000 • 4 bed • 1 bath • 1517 ft²
4 bedroom detached house for sale in Little Thorpe Lane, Thorpe-On-The-Hill, Lincoln, LN6 — £900,000 • 4 bed • 3 bath • 5444 ft²
3 bedroom semi-detached house for sale in Harrier Hill, Eagle, Lincoln, LN6 — £270,000 • 3 bed • 1 bath • 965 ft²






















































































































































