Large garden, excellent transport links — scope to extend and personalise.
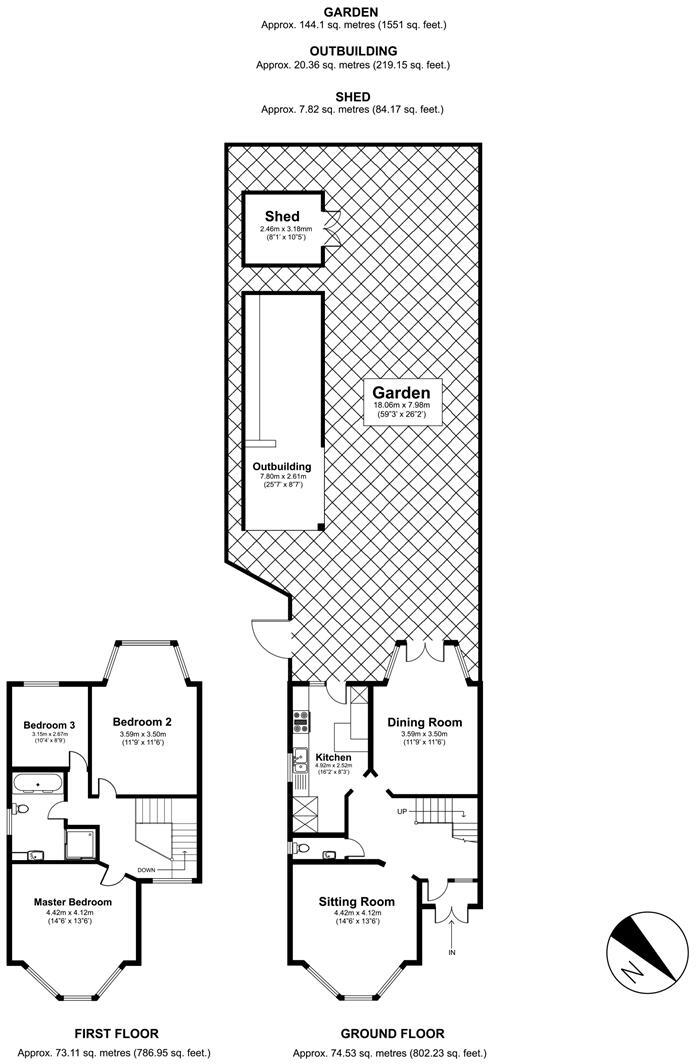
Approx 65ft south-facing garden with patio and mature fruit trees
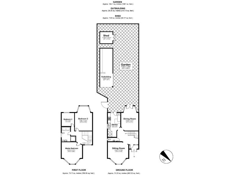
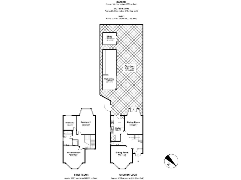
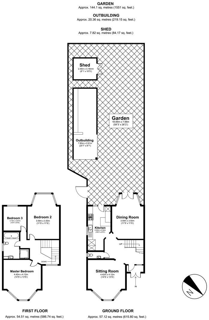
This larger-than-average three-double-bedroom semi-detached house offers generous living space across two reception rooms and flexible family accommodation. Original features including bay windows, stained glass details and wood floors provide character, while the south-facing garden of approximately 65ft delivers strong outdoor appeal and all-day sun.
Practical extras include a private block-paved driveway for two cars, a powered timber outbuilding (former garage), downstairs WC, and gas central heating with double glazing. The location is well connected: within about 0.5 miles of Arnos Grove, Bounds Green and Palmers Green stations, and close to Bowes Park and local parks — convenient for schools, green space and shopping.
There is clear potential to increase value through extension to the rear and loft conversion, subject to the usual planning permissions. Energy and maintenance improvements are likely to add further upside: cavity walls are noted as originally built with no insulation (assumed), and some outbuilding and garden elements will need regular upkeep.
Buyers should note material considerations: the property has one main bathroom plus a downstairs WC, a medium flooding risk, and council tax in Band E (above average). Services and fixtures have not been independently tested; a survey is recommended to verify condition and any works required before purchase.
3 bedroom semi-detached house for sale in Ashridge Gardens, London, N13 — £675,000 • 3 bed • 1 bath • 1000 ft²
4 bedroom semi-detached house for sale in Ashfield Road, Southgate, London, N14 — £750,000 • 4 bed • 2 bath • 1403 ft²
3 bedroom terraced house for sale in Bodiam Close, Enfield, EN1 — £500,000 • 3 bed • 1 bath • 1025 ft²
3 bedroom end of terrace house for sale in Inverness Avenue, Enfield, EN1 — £575,000 • 3 bed • 1 bath • 732 ft²
3 bedroom semi-detached house for sale in Livingstone Road, London, N13 — £750,000 • 3 bed • 2 bath • 1241 ft²
3 bedroom terraced house for sale in Ulster Gardens, Palmers Green, London, N13 — £575,000 • 3 bed • 1 bath • 989 ft²










































































































