Chain-free one-bedroom cottage with solar panels and small garden, ideal as a first home or investment.
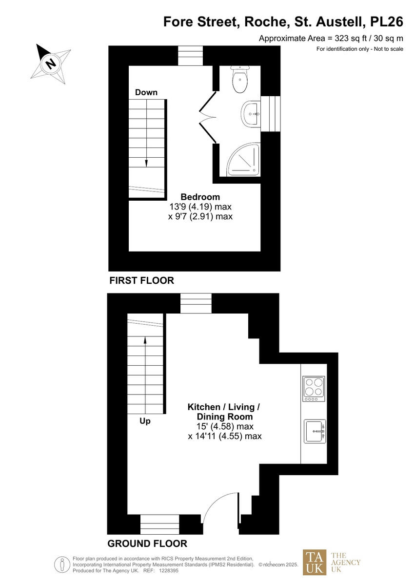
Detached one-bedroom cottage, fully refurbished throughout
A compact, fully refurbished one-bedroom detached cottage in the centre of Roche, offered chain free and ready to move into. The open-plan ground floor creates a light, efficient living and kitchen area, while the first-floor bedroom includes built-in storage and a modern en-suite shower room. At around 323 sq ft the property suits a single occupant, couple or investor seeking a low-maintenance village lock-up-and-leave.
Running costs are helped by newly installed solar panels, uPVC double glazing and modern economy Severn storage heaters, and council tax is very cheap. The house sits on a small plot with a patio, modest garden and an outside store shed — useful for bikes or gardening equipment.
Buyers should note the property is small and was constructed in the mid-20th century with granite/whinstone walls that are assumed uninsulated; further insulation work could improve comfort and efficiency. Heating is electric storage-style rather than gas, so consider ongoing electricity costs despite the solar benefit. The immediate area is a small town fringe with good local amenities but sits in a generally deprived district, which may influence future resale expectations.
For first-time buyers this is an affordable, move-in-ready cottage with modern fixtures and low immediate maintenance. For investors the chain-free status, efficient systems and village location offer straightforward rental potential, though size and local market conditions should be considered.
3 bedroom end of terrace house for sale in Churchtown Close, Roche, St. Austell, Cornwall, PL26 — £230,000 • 3 bed • 1 bath • 739 ft²
2 bedroom end of terrace house for sale in St. Michaels Way, Roche, St. Austell, Cornwall, PL26 — £195,000 • 2 bed • 1 bath • 647 ft²
2 bedroom semi-detached house for sale in Fore Street, Roche, St. Austell, PL26 — £215,000 • 2 bed • 2 bath • 612 ft²
2 bedroom house for sale in St. Michaels Way, Roche, St. Austell, Cornwall, PL26 — £200,000 • 2 bed • 1 bath • 697 ft²
3 bedroom end of terrace house for sale in Victoria Road, Roche, St. Austell, Cornwall, PL26 — £240,000 • 3 bed • 1 bath • 969 ft²
2 bedroom end of terrace house for sale in Trezaise Road, Roche, St. Austell, Cornwall, PL26 — £200,000 • 2 bed • 2 bath • 969 ft²






































