SG4 7TZ - 6 bed walled garden development plot in Hitchin Road, SG4 7…

View on Property Piper

Plot for sale in The Walled Garden, Dower House, Preston, Hertfordshire, SG4 7TZ, SG4

Summary - HARTINGS HITCHIN ROAD PRESTON HITCHIN SG4 7TZ

6 bed 6 bath Plot

Rare 1.21-acre walled garden plot with full planning for a six-bed contemporary family home..
- 1.21 acre plot within a historic walled garden
- Full planning granted for six-bedroom main house
- Leisure pavilion: pool, gym, cinema, secure below-ground parking
- Designed by award-winning architects (MAW)
- Sustainable features: ground source heat pump, PV, green roof
- Requires full new-build delivery; purchaser to manage construction
- Tenure unknown; verify legal and any planning conditions
- Broadband average; excellent mobile signal and very low crime
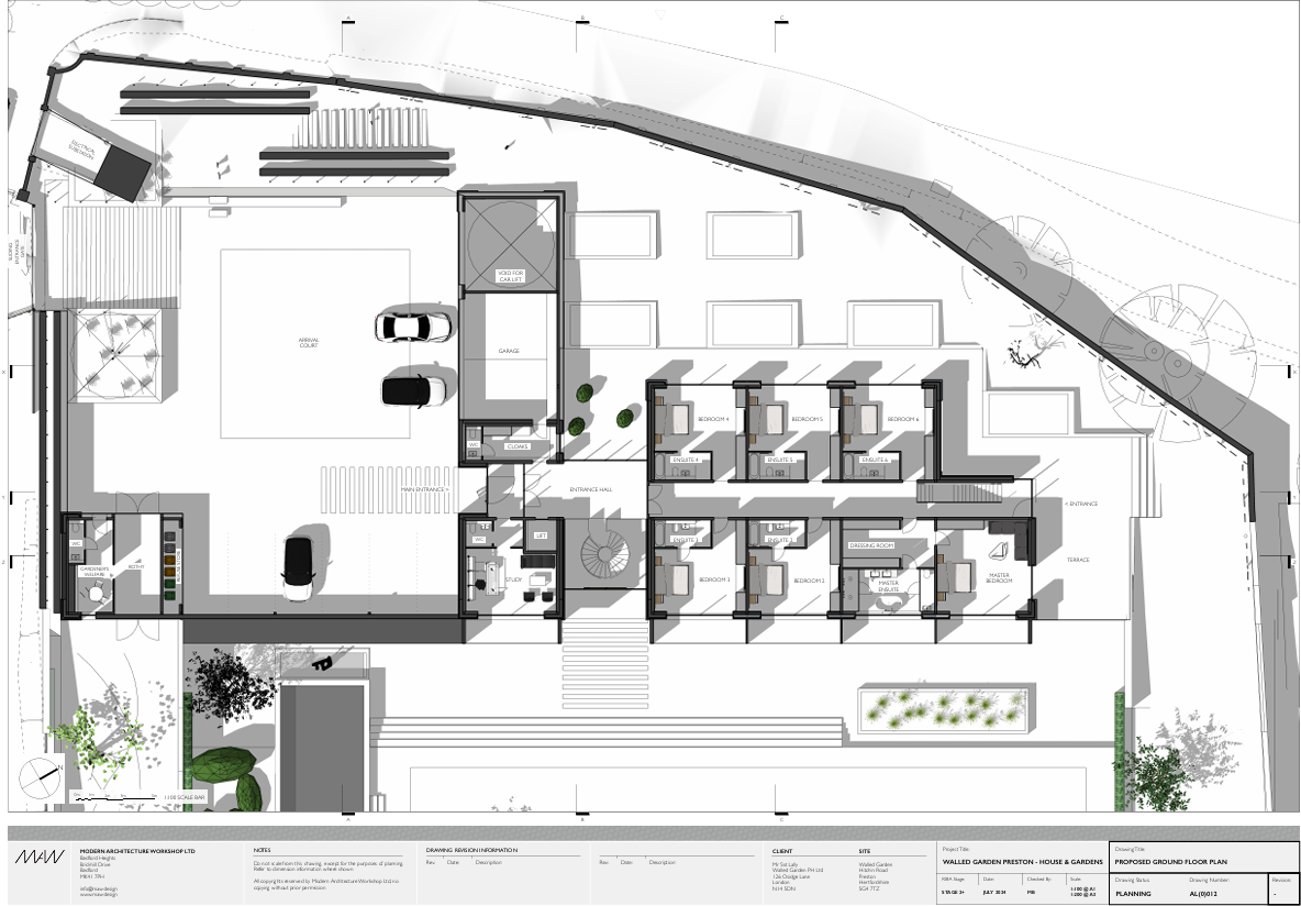
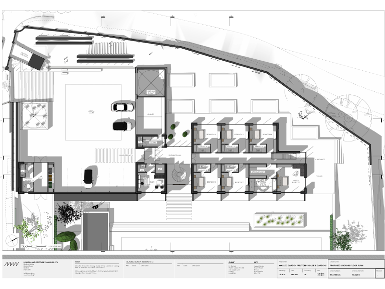
A rare 1.21-acre development plot within a historic walled garden, granted full planning permission for a six-bedroom main house and an adjacent leisure pavilion. The approved designs by award-winning architects (MAW) propose expansive full-height glazing, large open-plan living spaces and a below-ground secure garage for a car collection — a clear opportunity for a high-spec family residence or executive country home.

Sustainability is integral to the proposals: ground source heat pump, photovoltaic panels, green roof and ultra-low energy systems aimed at RIBA 2030 standards. The site offers sweeping countryside views, generous private grounds and direct access to village amenities in Preston, with Hitchin and fast rail links to London within easy reach.

Important practical points: planning is granted but the plot is undeveloped — the purchaser will need to commission construction and factor in build costs and programme. Tenure is currently unknown and should be verified. The historic walled setting may entail additional conservation or planning conditions; buyers should confirm any restrictions before purchase.

This plot suits buyers seeking to deliver a bespoke, future-facing country house who are comfortable managing a substantial new-build project. Average broadband speeds and the rural setting are outweighed by very low crime, excellent mobile signal and proximity to highly regarded schools and commuter routes.

Property Details

Image Descriptions

Floorplan Description

Rooms

Textual Property Features

Target Audience

AI Tags

Detected Visual Features

Nearby Schools

Nearest Bars And Restaurants

,,,,}

Nearest General Shops

,,}

Nearest Grocery shops

,,}

Nearest Supermarkets

,,}

Nearest Religious buildings

,,}

Nearest Medical buildings

,,,}

Nearest Airports

,}

Nearest Leisure Facilities

,,,,}

Nearest Tourist attractions

,,}

Nearest Train stations

,,,,}

Nearest Bus stations and stops

,,,,}

Nearest Hotels

,,}

Tags

Local Market Stats

Similar Properties

Meta

High Res Images

Compatible Images

Low res Images

Thumbnails

Raw Images

High Res Floorplan Images

Compatible Floorplan Images

Low res Floorplan Images

FloorplanImages Thumbnail

Raw Floorplan Images