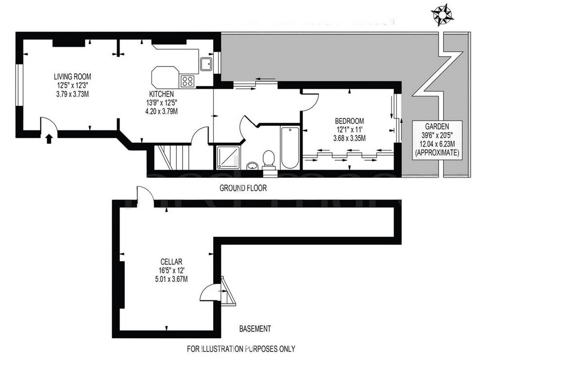
Spacious single-bedroom home with garden, parking and conversion potential.
Refitted bathroom with both bath and separate shower
Large private enclosed rear garden and direct bedroom access
Unusually large basement room — flexible additional space
Allocated off-street parking directly outside the front door
Share of freehold with c.964 years remaining on lease
Solid brick walls likely uninsulated; thermal upgrade potential
Double glazing fitted before 2002; may not meet modern efficiency
Area records above-average crime; local upkeep required
A well-presented one-bedroom ground-floor garden flat offering generous living space and an unusually large basement room. The open-plan kitchen/living/dining area feels bright with wood flooring and integrated appliances, while the double bedroom benefits from fitted wardrobes and direct garden access. The enclosed private rear garden and allocated off-street parking add practical outside space rarely found at this price.
The property is a period conversion with original features and double glazing, gas central heating and a long share of freehold (lease circa 964 years), giving long-term security. The refitted bathroom provides modern convenience with both bath and separate shower. The basement room is a flexible asset — suitable for storage, a home office or a potential conversion subject to building regulations and any necessary works.
Buyers should note some practical considerations: the building’s solid brick walls are assumed uninsulated, and the double glazing was installed before 2002, so thermal efficiency could be improved. The area records above-average crime and the mid-20th-century frontage and driveway show typical upkeep needs. Overall, this flat suits first-time buyers or investors seeking a well-located home with outdoor space and scope to add value through modest improvements.
1 bedroom apartment for sale in Avondale Road, South Croydon, CR2 — £290,000 • 1 bed • 1 bath • 883 ft²
1 bedroom apartment for sale in Birdhurst Road, South Croydon, CR2 — £250,000 • 1 bed • 1 bath • 670 ft²
1 bedroom flat for sale in Moreton Road, South Croydon, CR2 — £280,000 • 1 bed • 1 bath • 982 ft²
1 bedroom flat for sale in Tanfield Road, Croydon, Surrey, CR0 — £220,000 • 1 bed • 1 bath • 382 ft²
1 bedroom flat for sale in St. James's Road, Croydon, CR0 — £230,000 • 1 bed • 1 bath • 452 ft²
1 bedroom ground floor flat for sale in Clyde Road, Croydon, Surrey, CR0 — £240,000 • 1 bed • 1 bath • 506 ft²


























































