Barn conversion opportunity on a large Essex plot with confirmed planning consent..
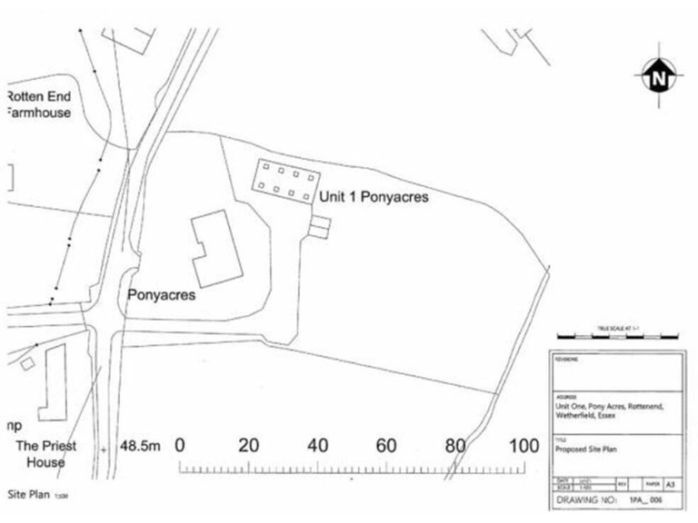
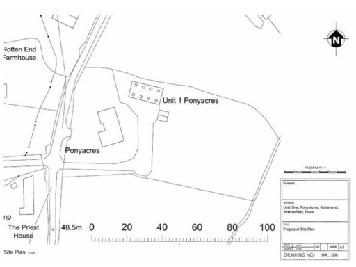
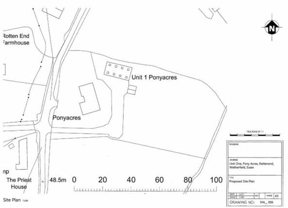
About 1.06 acres of attractive rural land
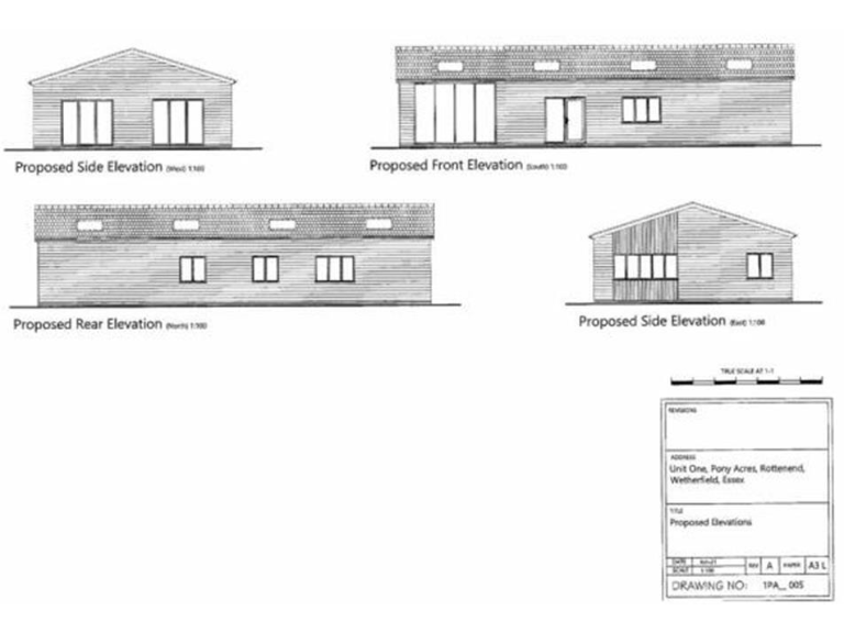
Ponyacres Barn sits in about 1.06 acres of attractive Essex countryside, surrounded by bridleways, footpaths and open views. Full planning permission was granted on appeal in April 2023 (ref 22/00395/FUL) to convert the existing single-storey agricultural barn into a three-bedroom dwelling, offering a clear route to residential use and immediate development potential. The building’s internal footprint is approximately 152.6 sq m, with scope for a mezzanine subject to further consent.
The barn is concrete-built with partial timber cladding and a corrugated metal roof, so purchasers should expect a building that will require conversion works and likely some structural/finish upgrades to achieve a comfortable home. There are practical constraints to note: no mains gas or mains drainage in the location, broadband speeds are very slow and the freehold title is pending registration. A covenant exists requiring a 7% uplift payment to the current sellers or their immediate heirs if an additional dwelling is built on the site.
Access and services are practical but specific. A shingle driveway is planned; the drive must be constructed before the barn build and will remain in the ownership of Ponyacres bungalow. Mobile signal is excellent and crime levels are very low. This site suits buyers seeking a rural project with planning in place — owner-occupiers wanting a bespoke countryside home or small-scale developers comfortable resolving services and conversion works.
Prospective purchasers should review the planning conditions on the Braintree District Council planning website and commission their own surveys. The plot’s size, planning permission and rural setting represent a strong development opportunity, but expect additional costs for conversion, services installation and compliance with the planning conditions and covenant.
Plot for sale in Braintree Road, Panfield, CM7 — £1,500,000 • 1 bed • 1 bath • 5787 ft²
6 bedroom detached house for sale in Braintree Road, Panfield, Braintree, Essex, CM7 — £600,000 • 6 bed • 3 bath • 3319 ft²
5 bedroom detached house for sale in Monk Street, Thaxted, Dunmow, Essex, CM6 — £895,000 • 5 bed • 3 bath • 4000 ft²
Land for sale in Development Opportunity, Great Bardfield, CM7 — £1,000,000 • 1 bed • 1 bath • 4400 ft²
Plot for sale in Bardfield Centre, Great Bardfield, Braintree, Essex, CM7 — £1,000,000 • 1 bed • 1 bath • 4400 ft²
4 bedroom detached house for sale in Hollies Road, Bradwell, CM77 — £1,725,000 • 4 bed • 2 bath • 5645 ft²


























































































